City Pearl

Eladó családi ház
Szeged

+ 12 kép 1/15
85 500 000 Ft85.5 M Ft 427 500 Ft/m2
4 szoba
200 m2
építés éve:1974

Részletes adatok

Telekméret: 1653 m2
Fűtés: Gázkazán
Energetikai besorolás: Nem adta meg a hirdető

Az OTP Bank lakáshitel ajánlataFizetett hirdetés

3662770736
Danka Balázs
referens

Érdekel az OTP Bank kedvezményes lakáshitel ajánlata? *

* A kérdésre „Igen” válasz bejelölése esetén, az „Üzenet küldése” gombra kattintva kijelentem, hogy az OTP Bank Nyrt. Adatkezelési tájékoztatójának tartalmát megismertem és tudomásul vettem.

Eladó családi ház leírása

NAGYCSALÁDOSOK, ÖSSZEKÖLTÖZŐK FIGYELMÉBE!

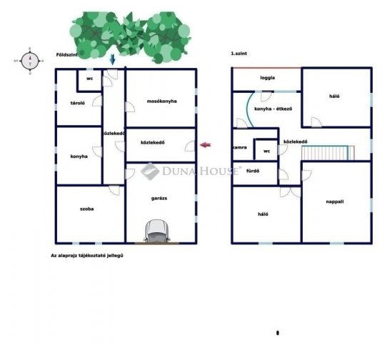
Szeged-Szőreg frekventált részén kínálok megvételre egy, az 1974-ben épült családi házat. Az épület 1670 m2-es területen helyezkedik el.

Az aszfaltozott utcáról nyíló kapun keresztül juthatunk be a rendezett, parkosított udvarra. A 192 m2-es épület belső kétszintes, praktikusan elrendezett lakótérből áll.

Felújítás keretén belül:
- 2008-ban víz-, villany-, gázvezetékek cseréje megtörtént,
- 2016-ban a földszinti rész új burkolatot kapott.

Térelosztása az alábbi:

Az épület földszintjén szoba, konyha, háztartási helyiség, tároló, wc , közlekedő és az utcáról nyíló 22 m2-es garázs került kialakításra.

Az emeletre fa lépcső vezet, a közlekedőből nyílnak a helyiségek: a 3 külön bejáratú szoba, konyha – étkező, fürdő és a szeparált mellékhelyiség. A környezettel való kapcsolatot az étkezőből nyíló, kertre néző 6 m2-es loggia biztosítja.

Az összes helyiség tágas, kellemes életérzést nyújt.

A nyílászárók redőnnyel, szúnyoghálóval felszereltek. A szobák parkettával, a többi helyiség járólappal burkolt.
Falai festettek, fűtése egyedi gáz cirkó radiátor hőleadókkal.
A biztonságról riasztórendszer gondoskodik.

A kerítéssel körbe kerített telek füvesített, termő gyümölcsfákkal, szőlővel beültetett.

- a lakóépületen kívül szerszámos bódé, verem is található
- kert
- fúrt kút
- a telek összközműves (víz, villany, gáz, csatorna)
- az ingatlan aszfaltozott utcában található

Elhelyezkedés szempontjából kiváló. A környéken minden szolgáltató egység pár perc sétával elérhető: iskola, óvoda, gyógyszertár, orvosi rendelő, élelmiszerbolt, húsbolt, posta, gazdabolt, szolárium, pizzéria, cukrászda stb.

Szeged Belvárosától autóval kb. 15 perc útra található. Tömegközlekedés is kiváló, hiszen a közelben áll meg a 60Y-os autóbusz.

Nagycsaládosoknak, valamint két generáció együttélésére is kiválóan alkalmas

További információért, megtekintésért forduljon hozzám bizalommal!

Hirdetés feltöltve: 2025. 11. 13.

4 szobás családi házak ára Szegeden

Ebből az összehasonlításból megtudhatod, hogyan viszonyul a lakás ára a környékbeli családi házak átlagos árához. Ez nem azt jelenti, hogy ennyivel olcsóbb vagy drágább, mint amennyit a lakás ér, hanem hogy ennyivel tér el a környékbeli átlagtól.

Ennek a m² ára
Szeged m² ár
428 e Ft
858 e Ft 50%
Ennek az ára
Szeged átlagár
85.5 M Ft m Ft
105.1 m Ft 19%

Az ingatlan elhelyezkedése

Cím: Szeged

Eladó családi házak a környékről

Eladó családi ház
Eladó családi ház

Mindszent

49.9 M Ft
8 szoba
280 m2
Eladó családi ház
Eladó családi ház

Szeged

79.9 M Ft
5 szoba
135 m2
Eladó családi ház
Eladó családi ház

Szeged

125 M Ft
4 szoba
106 m2
Eladó családi ház
Eladó családi ház

Szeged

99.99 M Ft
6 szoba
217 m2
Eladó családi ház
Eladó családi ház

Szeged

79.9 M Ft
5 szoba
135 m2
Eladó családi ház
Eladó családi ház

Szeged

150 M Ft
9 szoba
208 m2
Eladó családi ház
Eladó családi ház

Szeged, Alsóváros, Szabadság tér

89.9 M Ft
3 + 1 szoba
100 m2
Eladó családi ház
Eladó családi ház

Szeged

214 M Ft
5 szoba
203 m2
Eladó családi ház
Eladó családi ház

Szeged, Újszeged, Radnóti utca

329.9 M Ft
12 + 2 szoba
619 m2
Eladó családi ház
Eladó családi ház

Domaszék

199 M Ft
6 szoba
280 m2
Eladó családi ház
Eladó családi ház

Baks, Kossuth Lajos utca

40 M Ft
3 szoba
300 m2
Eladó családi ház
Eladó családi ház

Szeged

115 M Ft
7 szoba
196 m2
Eladó családi ház
Eladó családi ház

Szeged

15.52 M Ft
31 m2
Eladó családi ház
Eladó családi ház

Szeged, Kecskés István telep, Dettre János utca

120 M Ft
5 szoba
205 m2
Eladó családi ház
Eladó családi ház

Szeged

125 M Ft
4 szoba
106 m2
Eladó családi ház
Eladó családi ház

Szeged

195 M Ft
4 szoba
210 m2
Eladó családi ház
Eladó családi ház

Szeged

225 M Ft
5 szoba
203 m2
Eladó családi ház
Eladó családi ház

Szeged

225 M Ft
5 szoba
203 m2
Eladó családi ház
Eladó családi ház

Szeged

149.9 M Ft
10 szoba
310 m2
Eladó családi ház
Eladó családi ház

Szeged

109 M Ft
2 szoba
980 m2
Eladó családi ház
Eladó családi ház

Hódmezővásárhely

120 M Ft
7 szoba
236 m2
Eladó családi ház
Eladó családi ház

Röszke

15.9 M Ft
3 szoba
80 m2
Eladó családi ház
Eladó családi ház

Szeged, Alsóváros, Szabadság tér

89.9 M Ft
3 + 1 szoba
100 m2
Eladó családi ház
Eladó családi ház

Makó, Királyhegyesi utca

25 M Ft
3 szoba
90 m2

Falusi CSOK ingatlanok

Eladó családi ház
Eladó családi ház

Csengőd, Tompa Mihály utca

34 M Ft
2 szoba
81 m2
Eladó családi ház
Eladó családi ház

Orgovány, Mátyás király utca

16 M Ft
2 szoba
60 m2
Eladó családi ház
Eladó családi ház

Szigetbecse, Makádi út

49 M Ft
2 szoba
84 m2
Eladó családi ház
Eladó családi ház

Devecser

42.9 M Ft
3 szoba
100 m2
Eladó családi ház
Eladó családi ház

Körösladány

14.9 M Ft
2 szoba
65 m2
Eladó családi ház
Eladó családi ház

Nyékládháza, Mátyás király utca

36.9 M Ft
2 szoba
88 m2
Eladó ikerház
Eladó ikerház

Seregélyes

39.9 M Ft
4 szoba
150 m2
Eladó családi ház
Eladó családi ház

Táborfalva

79 M Ft
4 szoba
92 m2