Seven Pearl

Eladó családi ház
Szeged

+ 12 kép 1/15
85 500 000 Ft85.5 M Ft 427 500 Ft/m2
4 szoba
200 m2
építés éve:1974

Részletes adatok

Telekméret: 1653 m2
Fűtés: Gázkazán
Energetikai besorolás: Nem adta meg a hirdető

Az OTP Bank lakáshitel ajánlataFizetett hirdetés

3662300720
Árva Zsófia
referens

Érdekel az OTP Bank kedvezményes lakáshitel ajánlata? *

* A kérdésre „Igen” válasz bejelölése esetén, az „Üzenet küldése” gombra kattintva kijelentem, hogy az OTP Bank Nyrt. Adatkezelési tájékoztatójának tartalmát megismertem és tudomásul vettem.

Eladó családi ház leírása

NAGYCSALÁDOSOK, ÖSSZEKÖLTÖZŐK FIGYELMÉBE!

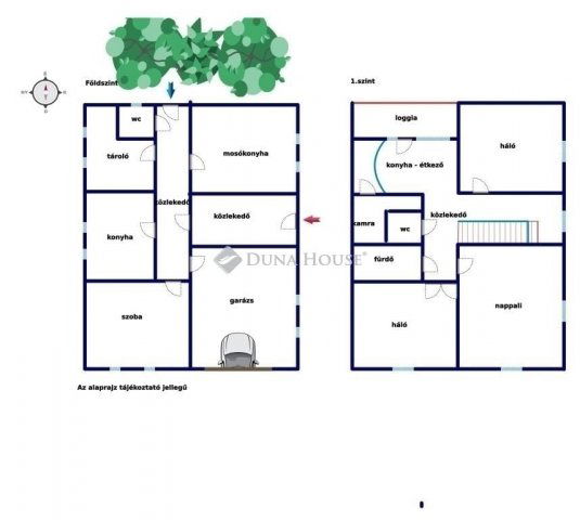
Szeged-Szőreg frekventált részén kínálok megvételre egy, az 1974-ben épült családi házat. Az épület 1670 m2-es területen helyezkedik el.

Az aszfaltozott utcáról nyíló kapun keresztül juthatunk be a rendezett, parkosított udvarra. A 192 m2-es épület belső kétszintes, praktikusan elrendezett lakótérből áll.

Felújítás keretén belül:
- 2008-ban víz-, villany-, gázvezetékek cseréje megtörtént,
- 2016-ban a földszinti rész új burkolatot kapott.

Térelosztása az alábbi:

Az épület földszintjén szoba, konyha, háztartási helyiség, tároló, wc , közlekedő és az utcáról nyíló 22 m2-es garázs került kialakításra.

Az emeletre fa lépcső vezet, a közlekedőből nyílnak a helyiségek: a 3 külön bejáratú szoba, konyha – étkező, fürdő és a szeparált mellékhelyiség. A környezettel való kapcsolatot az étkezőből nyíló, kertre néző 6 m2-es loggia biztosítja.

Az összes helyiség tágas, kellemes életérzést nyújt.

A nyílászárók redőnnyel, szúnyoghálóval felszereltek. A szobák parkettával, a többi helyiség járólappal burkolt.
Falai festettek, fűtése egyedi gáz cirkó radiátor hőleadókkal.
A biztonságról riasztórendszer gondoskodik.

A kerítéssel körbe kerített telek füvesített, termő gyümölcsfákkal, szőlővel beültetett.

- a lakóépületen kívül szerszámos bódé, verem is található
- kert
- fúrt kút
- a telek összközműves (víz, villany, gáz, csatorna)
- az ingatlan aszfaltozott utcában található

Elhelyezkedés szempontjából kiváló. A környéken minden szolgáltató egység pár perc sétával elérhető: iskola, óvoda, gyógyszertár, orvosi rendelő, élelmiszerbolt, húsbolt, posta, gazdabolt, szolárium, pizzéria, cukrászda stb.

Szeged Belvárosától autóval kb. 15 perc útra található. Tömegközlekedés is kiváló, hiszen a közelben áll meg a 60Y-os autóbusz.

Nagycsaládosoknak, valamint két generáció együttélésére is kiválóan alkalmas

További információért, megtekintésért forduljon hozzám bizalommal!

Hirdetés feltöltve: 2025. 11. 07. Utoljára módosítva: 2025. 11. 08.

4 szobás családi házak ára Szegeden

Ebből az összehasonlításból megtudhatod, hogyan viszonyul a lakás ára a környékbeli családi házak átlagos árához. Ez nem azt jelenti, hogy ennyivel olcsóbb vagy drágább, mint amennyit a lakás ér, hanem hogy ennyivel tér el a környékbeli átlagtól.

Ennek a m² ára
Szeged m² ár
428 e Ft
855 e Ft 50%
Ennek az ára
Szeged átlagár
85.5 M Ft m Ft
104.8 m Ft 18%

Az ingatlan elhelyezkedése

Cím: Szeged

Eladó családi házak a környékről

Eladó családi ház
Eladó családi ház

Szeged

54.89 M Ft
3 szoba
110 m2
Eladó családi ház
Eladó családi ház

Szeged, Alsóváros, Szabadság tér

89.9 M Ft
3 + 1 szoba
100 m2
Eladó családi ház
Eladó családi ház

Röszke

15.9 M Ft
3 szoba
80 m2
Eladó családi ház
Eladó családi ház

Hódmezővásárhely

120 M Ft
7 szoba
236 m2
Eladó családi ház
Eladó családi ház

Makó

87.5 M Ft
6 + 1 szoba
300 m2
Eladó családi ház
Eladó családi ház

Hódmezővásárhely, Kishomok, Új-Kishomok

60 M Ft
3 szoba
100 m2
Eladó családi ház
Eladó családi ház

Szeged

225 M Ft
5 szoba
203 m2
Eladó családi ház
Eladó családi ház

Mórahalom

63 M Ft
3 szoba
94 m2
Eladó családi ház
Eladó családi ház

Szeged

225 M Ft
5 szoba
203 m2
Eladó családi ház
Eladó családi ház

Tiszasziget

49.9 M Ft
4 szoba
160 m2
Eladó családi ház
Eladó családi ház

Szeged

160 M Ft
5 szoba
187 m2
Eladó családi ház
Eladó családi ház

Domaszék

199 M Ft
6 szoba
280 m2
Eladó családi ház
Eladó családi ház

Szeged

15.24 M Ft
31 m2
Eladó családi ház
Eladó családi ház

Szeged

99.99 M Ft
6 szoba
217 m2
Eladó családi ház
Eladó családi ház

Szeged

109 M Ft
2 szoba
980 m2
Eladó családi ház
Eladó családi ház

Szeged

129.5 M Ft
1 + 3 szoba
122 m2
Eladó családi ház
Eladó családi ház

Szeged

109 M Ft
2 szoba
980 m2
Eladó családi ház
Eladó családi ház

Szeged

149.9 M Ft
10 szoba
310 m2
Eladó családi ház
Eladó családi ház

Makó, Ráday 9/b

42 M Ft
1 szoba
150 m2
Eladó családi ház
Eladó családi ház

Szeged

19.9 M Ft
2 szoba
35 m2
Eladó családi ház
Eladó családi ház

Szeged, Alsóváros, Szabadság tér

89.9 M Ft
3 + 1 szoba
100 m2
Eladó családi ház
Eladó családi ház

Makó, Béke utca

115 M Ft
4 szoba
146 m2
Eladó családi ház
Eladó családi ház

Szeged

259 M Ft
6 szoba
314 m2
Eladó családi ház
Eladó családi ház

Szeged

195 M Ft
4 szoba
210 m2

Falusi CSOK ingatlanok

Eladó családi ház
Eladó családi ház

Varsány

39.9 M Ft
6 szoba
160 m2
Eladó családi ház
Eladó családi ház

Zákány, Május 1. utca

39.9 M Ft
2 szoba
112 m2
Eladó családi ház
Eladó családi ház

Mezőfalva

39 M Ft
3 szoba
77 m2
Eladó családi ház
Eladó családi ház

Fülöpszállás

299 M Ft
14 + 5 szoba
680 m2
Eladó családi ház
Eladó családi ház

Gasztony

29.4 M Ft
2 szoba
83 m2
Eladó családi ház
Eladó családi ház

Homokmégy

15.9 M Ft
2 + 1 szoba
78 m2
Eladó családi ház
Eladó családi ház

Kenyeri

21.8 M Ft
2 szoba
75 m2
Eladó téglalakás
Eladó téglalakás

Nagyharsány

22.5 M Ft
3 szoba
71 m2