Astora Márvány8

Eladó családi ház
Szada

+ 17 kép 1/20
124 990 000 Ft124.99 M Ft 1 436 667 Ft/m2
3 szoba
87 m²
építés éve:2005

Részletes adatok

Telekméret: 564 m2
Fűtés: Gázkazán
Parkolás: Garázs
Energetikai besorolás: Nem adta meg a hirdető

Az OTP Bank lakáshitel ajánlataFizetett hirdetés

+36 70 772
Takács Dávid
referens

Érdekel az OTP Bank kedvezményes lakáshitel ajánlata? *

* A kérdésre „Igen” válasz bejelölése esetén, az „Üzenet küldése” gombra kattintva kijelentem, hogy az OTP Bank Nyrt. Adatkezelési tájékoztatójának tartalmát megismertem és tudomásul vettem.

Eladó családi ház leírása

Képzelje el: egy téli estén hazaér, begyújt a kandallóba, és másnap reggel – amikor a tűz már rég kialudt – a ház még mindig meleg. Ez nem reklámszöveg – a tulajdonos több mint egy évtizede ezt éli itt minden télen.

Eladó egy 2005-ben épült, folyamatosan karbantartott, önálló családi ház Szada egyik legcsendesebb utcájában. Teljesen körüljárható, saját telken áll, azonnal költözhető. A beépített bútorok és a teljes konyhai gépesítés a vételár részét képezik. A belső alapterület 87 m², a teljes fedett terület garázzsal és teraszokkal együtt meghaladja a 132 m²-t.

Miért pont ez a ház?
Nem ikerház, nem sorház – teljesen önálló, körüljárható
Azonnal költözhető – nem felújítandó projekt
Bekötött kandalló, amely 2-3 napig tartja a meleget
Bosch kondenzációs kazán + padlófűtés + lapradiátorok – három fűtési mód, két független kör
A garázs visszaalakítható harmadik szobává (minden kiállás megvan)
132 m² összes fedett terület
Prémium konyhai gépek (Bosch, Teka, Whirlpool) az árban
Automata öntözőrendszer, fúrt kút
Teljes közművesítés (víz, gáz, csatorna, elektromosság)

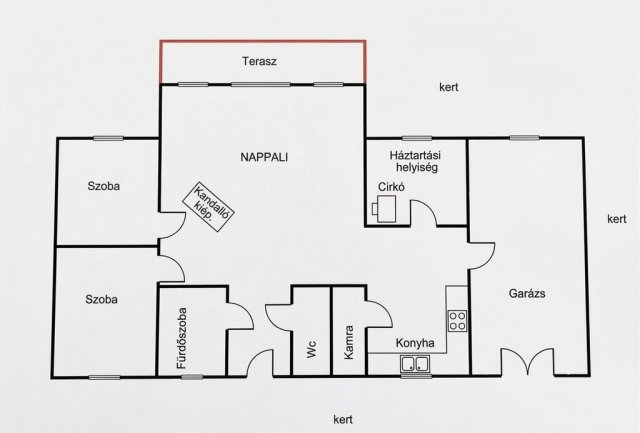
Belső terek
A ház elosztása átgondolt, minden négyzetméter ki van használva:
Nappali – 36 m², bekötött kandallóval
Konyha-étkező – 11,4 m², teljesen felszerelve
Hálószoba – 10,3 m², szalagparketta, lapradiátor + padlófűtés
Hálószoba – 9,1 m², szalagparketta, lapradiátor + padlófűtés
Fürdőszoba – 4 m², akril kád, kétállású mosdó, törölközőszárító radiátor, 3/4-ig csempézett
Vendég WC – különálló, saját ablakos, 3/4-ig csempézett
Kamra (spejz) – saját ablakkal és szúnyoghálóval
Háztartási helyiség – 8,1 m² (kazán, mosógép, szárítógép, tárolószekrény)
Előtér – 4,2 m²

A hálószobák különnyílók. A födém beton, a mennyezet gipszkartonos – masszív, jól szigetelő szerkezet. A nyílászárókat és beltéri ajtókat asztalos szakember tartotta karban, állapotuk kifogástalan.

A nappali és a kandalló
A 36 m²-es nappali a ház központi tere. Közepén egy vastag téglából falazott, bekötött kandalló áll – nem díszkandalló: a tűz kialvása után akár 2-3 napig sugározza a meleget a házban. Téli estéken nemcsak hangulatot ad, hanem érezhetően csökkenti a fűtési költséget is.

Konyha
Teljesen felszerelt, prémium márkás gépekkel – minden a vételár része:
Bosch indukciós főzőlap
Bosch elektromos sütő
Teka páraelszívó (kivezetett, nem szűrős – valódi elszívás)
Whirlpool 6. érzék kombinált hűtő-fagyasztó
Rozsdamentes mosogató, strapabíró munkalappal
Mikrosütő
Teljes beépített konyhabútor

Fűtés és melegvíz
A fűtésről és a melegvízről egy mindössze 4 éves Bosch kondenzációs gázkazán gondoskodik – a piacon elérhető leghatékonyabb típus. A beüzemeléséhez külön kémény és szerelési megoldás készült.

A házban kétféle fűtés működik, két független körön:
Padlófűtés – egyenletes, kellemes hőeloszlás
Lapradiátorok – gyors felfűtés, célzott melegítés

A két kör külön szabályozható: eldönthető, hogy a padlófűtés, a radiátorok vagy mindkettő üzemeljen. A kandallóval kiegészítve télen minimálisra csökkenthető a gázfogyasztás.

Garázs – vagy harmadik szoba
A 23,7 m²-es garázs eredetileg szobának épült, és minden adottság megvan a visszaalakításhoz:
Padlófűtés kiépítve
Összefolyó és kézmosó-kiállás (vizesblokk előkészítve)
Padlásfeljáró
Az eredeti beltéri ajtó megvan
A burkoláshoz szükséges járólap rendelkezésre áll (az ár része)

Egy válaszfal és laminált padló – ennyi kell a harmadik szobához. De garázsnak is tökéletesen működik jelenlegi formájában.

Kert és udvar
Az 564 m²-es, összközműves telek gondozott és funkcionálisan kialakított:
Viacoloros járda az utcafronttól a házig
Motoros mozgatású nagykapu + külön kiskapu
Saját autóbeálló
Terasz – 15,8 m²
Ecomatic automata öntözőrendszer (garázsból vezérelhető)
Fúrt kút + kerti csap – a kert öntözése gyakorlatilag ingyenes
Sütögető / grillezőhely
Szerszámostároló
Konyhakert
Ruhaszárító hely

A telek a szomszédos ingatlanoknál magasabban fekszik – vízelvezetés szempontjából is kedvező.

Nyílászárók és árnyékolás
Kétrétegű műanyag ablakok minden helyiségben
Redőny + rolós szúnyogháló minden lakótéri ablakon (fürdőszoba és kamra ablakán is)
Erkélyajtó a nappaliból a teraszra
Műanyag bejárati ajtó, 5 pontos biztonsági zárral

Műszaki adatok
Építés éve: 2005
Építőanyag: Ytong
Födém: beton
Tetőfedés: cserép
Szigetelés: 10 cm homlokzati + lábazati
Közművek: víz, gáz, csatorna, elektromosság – mind bekötve
Fűtés: Bosch kondenzációs gázkazán (4 éves) + padlófűtés + lapradiátorok + kandalló
Riasztó: vezetékezés előkészítve minden helyiségben
Tájolás: délnyugati

Ami a vételárban benne van
Teljes beépített bútorzat
Konyhai gépek (Bosch, Teka, Whirlpool) és mikrosütő
Garázs burkolásához szükséges járólap
Automata öntözőrendszer

Egyéb bútorok és berendezések (pl. televízió) külön megegyezés tárgyát képezik. Ha teljesen felszerelt, beköltözhető otthont keres – arról is tudunk egyeztetni. Ha saját bútorokkal érkezik és üres házat szeretne – az is megoldható.

Elhelyezkedés
Szada a budapesti agglomeráció egyik legkellemesebb települése, Budapesttől autóval kb. 35 percre. Az M3-as autópálya gyorsan elérhető. A településen helyben van iskola, óvoda, orvosi rendelő, posta és bolt (Coop). Gödöllő 10 percre, ahol Lidl, Rossmann, Tesco, Stop Shop és további szolgáltatások érhetők el.

Az ingatlan Szada csendes, jó szomszédságú részén fekszik – itt nem a forgalom hangja, hanem a madárdal kelt reggel.

Ez nem felújítandó projekt – hanem egy rendben tartott, azonnal költözhető otthon. A ház kizárólag előre egyeztetett időpontban tekinthető meg.

Referencia szám: CD82668-ZE

Hirdetés feltöltve: 2026. 03. 13. Utoljára módosítva: 2026. 04. 24.

3 szobás családi házak ára Szadán

Ebből az összehasonlításból megtudhatod, hogyan viszonyul a lakás ára a környékbeli családi házak átlagos árához. Ez nem azt jelenti, hogy ennyivel olcsóbb vagy drágább, mint amennyit a lakás ér, hanem hogy ennyivel tér el a környékbeli átlagtól.

Ennek a m² ára
Szada m² ár
1437 e Ft
228 e Ft -529%
Ennek az ára
Szada átlagár
124.99 M Ft m Ft
27.2 m Ft -360%

Az ingatlan elhelyezkedése

Cím: Szada

Eladó családi házak a környékről

Tápiószentmárton
Eladó családi ház

Tápiószentmárton

16.5 M Ft
3 szoba
50 m²
Tápiószele
Eladó családi ház

Tápiószele

45 M Ft
6 szoba
360 m²
Érd
Eladó családi ház

Érd

164.9 M Ft
5 szoba
192 m²
Tápiószele
Eladó családi ház

Tápiószele

37.9 M Ft
4 szoba
141 m²
Szada
Eladó családi ház

Szada

169.9 M Ft
4 + 1 szoba
170 m²
Budaörs
Eladó családi ház

Budaörs

400 M Ft
12 szoba
583 m²
Tápiószentmárton
Eladó családi ház

Tápiószentmárton

48 M Ft
5 szoba
180 m²
Budakeszi, Makkosmária
Eladó családi ház

Budakeszi

100 M Ft
1 szoba
10 m²
Szada
Eladó családi ház

Szada

195 M Ft
5 szoba
380 m²
Szada
Eladó családi ház

Szada

254 M Ft
5 szoba
259 m²
Tápiószentmárton
Eladó családi ház

Tápiószentmárton

7.9 M Ft
2 + 1 szoba
86 m²
Szada
Eladó családi ház

Szada

55 M Ft
4 szoba
68 m²
Remeteszőlős
Eladó családi ház

Remeteszőlős

399.9 M Ft
5 + 2 szoba
260 m²
Szada
Eladó családi ház

Szada

97.9 M Ft
5 szoba
145 m²
Szada
Eladó családi ház

Szada

107 M Ft
6 szoba
110 m²
Szada
Eladó családi ház

Szada

149.9 M Ft
4 szoba
148 m²
Szada
Eladó családi ház

Szada

209.9 M Ft
6 szoba
308 m²
Szada
Eladó családi ház

Szada

149 M Ft
3 + 1 szoba
210 m²
Szada
Eladó családi ház

Szada

199.9 M Ft
6 szoba
320 m²
Zebegény
Eladó családi ház

Zebegény

69.9 M Ft
6 szoba
245 m²
Szada
Eladó családi ház

Szada

350 M Ft
8 szoba
500 m²
Tápiógyörgye
Eladó családi ház

Tápiógyörgye

19.9 M Ft
3 szoba
65 m²
Szada
Eladó családi ház

Szada

265 M Ft
6 szoba
300 m²
Szada
Eladó családi ház

Szada

54.9 M Ft
3 szoba
80 m²

Falusi CSOK ingatlanok

Nagyberki
Eladó családi ház

Nagyberki

39.9 M Ft
5 szoba
170 m²
Szigetbecse
Eladó családi ház

Szigetbecse

69.9 M Ft
3 szoba
70 m²
Hegyeshalom, Margaréta utca 12
Eladó téglalakás

Hegyeshalom

32.89 M Ft
1 szoba
27 m²
Balatonakali
Eladó ikerház

Balatonakali

560 M Ft
4 szoba
140 m²
Taszár
Eladó családi ház

Taszár

58.9 M Ft
2 + 1 szoba
91 m²
Batyk, Dózsa György utca
Eladó családi ház

Batyk

39.624 M Ft
2 szoba
93 m²
Törtel
Eladó családi ház

Törtel

33 M Ft
3 szoba
100 m²
Balatonszemes, Ady Endre u
Eladó téglalakás

Balatonszemes

78.9 M Ft
2 szoba
46 m²