BAM Living

Eladó családi ház
Siklós

+ 11 kép 1/14
50 000 000 Ft50 M Ft 312 500 Ft/m2
3 szoba
160 m2
építés éve:1980

Részletes adatok

Telekméret: 619 m2
Fűtés: Gázkazán
Energetikai besorolás: Nem adta meg a hirdető

Az OTP Bank lakáshitel ajánlataFizetett hirdetés

+36 20 502
Szenk László
referens

Érdekel az OTP Bank kedvezményes lakáshitel ajánlata? *

* A kérdésre „Igen” válasz bejelölése esetén, az „Üzenet küldése” gombra kattintva kijelentem, hogy az OTP Bank Nyrt. Adatkezelési tájékoztatójának tartalmát megismertem és tudomásul vettem.

Eladó családi ház leírása

Eladó Kétszintes Ház Siklós, Családi Házas Övezetében!
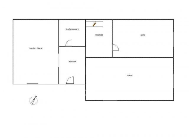
A város egyik csendes részén ajánljuk figyelmébe ezt a 70-es években épült, kétszintes, 80 m2 alapterületű, összesen 160 m2-es lakóterű, önálló családi házat.
Az alsó szint teljesen felújított: nappali + 1 hálószoba, tágas konyha étkezővel, fürdőszoba WC-vel és előtér található, ahol a víz- és villanyvezetékek, gépészet teljes cseréje megtörtént.
A felső szint 80 négyzetméter, ahol minden nyílászáró korszerűsítve, a válaszfalak és betonozás előkészítve, így az új tulajdonos saját elképzelése szerint alakíthatja ki a fürdőszobát, WC-t, konyhát, burkolatokat.

Az ingatlan új tetővel és teljes körű szigeteléssel rendelkezik. Fedett, három gépkocsi számára alkalmas beálló, a 619 négyzetméteres, teljesen sík telken. Kiválóan alkalmas két generáció együttélésére!

A közelben minden megtalálható: iskola, óvoda, boltok, buszmegálló.
További információért forduljon hozzám bizalommal!

Referenciaszám: M309056

Hirdetés feltöltve: 2025. 12. 16. Utoljára módosítva: 2025. 12. 31.

3 szobás családi házak ára Siklóson

Ebből az összehasonlításból megtudhatod, hogyan viszonyul a lakás ára a környékbeli családi házak átlagos árához. Ez nem azt jelenti, hogy ennyivel olcsóbb vagy drágább, mint amennyit a lakás ér, hanem hogy ennyivel tér el a környékbeli átlagtól.

Ennek a m² ára
Siklós m² ár
313 e Ft
385 e Ft 19%
Ennek az ára
Siklós átlagár
50 M Ft m Ft
40.2 m Ft -24%

Az ingatlan elhelyezkedése

Cím: Siklós

Eladó családi házak a környékről

Eladó családi ház
Eladó családi ház

Felsőszentmárton

26.9 M Ft
2 + 1 szoba
120 m2
Eladó családi ház
Eladó családi ház

Versend

75 M Ft
3 szoba
123 m2
Eladó családi ház
Eladó családi ház

Villány

15.9 M Ft
6 + 1 szoba
220 m2
Eladó családi ház
Eladó családi ház

Siklós

50 M Ft
5 szoba
160 m2
Eladó családi ház
Eladó családi ház

Siklós

61.5 M Ft
3 szoba
114 m2
Eladó családi ház
Eladó családi ház

Pellérd

84.9 M Ft
3 + 2 szoba
170 m2
Eladó családi ház
Eladó családi ház

Siklós, Bartha utca

110 M Ft
6 szoba
180 m2
Eladó családi ház
Eladó családi ház

Pécs, Deindol, Nagydeindoli

5.9 M Ft
902 m2
Eladó családi ház
Eladó családi ház

Siklós

98 M Ft
4 szoba
67 m2
Eladó családi ház
Eladó családi ház

Siklós, Gózon Lajos utca

270 M Ft
7 szoba
560 m2
Eladó családi ház
Eladó családi ház

Siklós, Külterület

61.5 M Ft
2 szoba
110 m2
Eladó családi ház
Eladó családi ház

Siklós

98 M Ft
4 szoba
67 m2
Eladó családi ház
Eladó családi ház

Szigetvár

65 M Ft
3 szoba
180 m2
Eladó családi ház
Eladó családi ház

Siklós

9.8 M Ft
2 szoba
63 m2
Eladó családi ház
Eladó családi ház

Pécs, Kertváros, Táncsics Mihály utca

74.9 M Ft
6 szoba
185 m2
Eladó családi ház
Eladó családi ház

Mohács

25 M Ft
2 szoba
72 m2
Eladó családi ház
Eladó családi ház

Siklós

36.9 M Ft
5 + 1 szoba
135 m2
Eladó családi ház
Eladó családi ház

Siklós

270 M Ft
8 szoba
600 m2
Eladó családi ház
Eladó családi ház

Siklós, Külterület

61.5 M Ft
2 szoba
110 m2
Eladó családi ház
Eladó családi ház

Siklós

270 M Ft
8 szoba
600 m2
Eladó családi ház
Eladó családi ház

Siklós

270 M Ft
7 szoba
560 m2
Eladó családi ház
Eladó családi ház

Pécs, Szabolcsfalu, Szabadságharc utca

58.99 M Ft
3 szoba
240 m2
Eladó családi ház
Eladó családi ház

Mohács

26.5 M Ft
5 szoba
200 m2
Eladó családi ház
Eladó családi ház

Szigetvár

65 M Ft
3 szoba
180 m2

Falusi CSOK ingatlanok

Eladó családi ház
Eladó családi ház

Kislőd

53.2 M Ft
3 szoba
86 m2
Eladó családi ház
Eladó családi ház

Hunya

10.99 M Ft
3 szoba
80 m2
Eladó családi ház
Eladó családi ház

Magyarszombatfa

80 M Ft
3 szoba
90 m2
Eladó családi ház
Eladó családi ház

Somogygeszti

10.9 M Ft
2 szoba
115 m2
Eladó családi ház
Eladó családi ház

Pápakovácsi

79.9 M Ft
4 szoba
210 m2
Eladó családi ház
Eladó családi ház

Tapsony

23.8 M Ft
3 szoba
130 m2
Eladó családi ház
Eladó családi ház

Szentkirályszabadja

135.9 M Ft
4 szoba
150 m2
Eladó családi ház
Eladó családi ház

Somogygeszti

38.6 M Ft
3 + 1 szoba
98 m2