BAM Living

Eladó családi ház
Rádfalva

Figyelem!

Ez az ingatlan a 2019.07.01-től induló falusi CSOK által támogatott településen található

+ 17 kép 1/20
13 800 000 Ft13.8 M Ft 202 941 Ft/m2
2 szoba
68 m2
építés éve:1970

Részletes adatok

Állapot: Felújítandó
Telekméret: 1530 m2
Fűtés: Gázkonvektor
Energetikai besorolás: Nem adta meg a hirdető
Zenga Premier

Friss hirdetések, amiket nem találsz meg más ingatlankereső portálon.

Fedezd fel elsőként a Zenga Premier címkés eladó ingatlanokat!

További részletek a zenga.hu-n

Az OTP Bank lakáshitel ajánlataFizetett hirdetés

+36 20 938
Vincze László György
Pécs Király utca 75 - OTP Ingatlanpont Iroda

Érdekel az OTP Bank kedvezményes lakáshitel ajánlata? *

* A kérdésre „Igen” válasz bejelölése esetén, az „Üzenet küldése” gombra kattintva kijelentem, hogy az OTP Bank Nyrt. Adatkezelési tájékoztatójának tartalmát megismertem és tudomásul vettem.

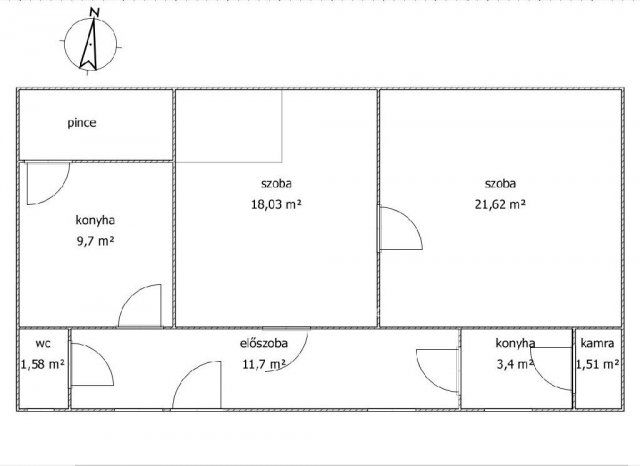
Eladó családi ház leírása

2 szobás ház eladó Rádfalván!

1530 négyzetméteres vízszintes terület tartozik hozzá.

Fel kell újítani! Az ablakokat és a bejárati ajtót műanyagra cserélték. Az egyik szobában van gáz konvektoros fűtés. A másikban nincs, a konyhában kályha volt valamikor, a kémény használható. A villanybojlert leszerelték. A gázórát a szolgáltató elvitte, az új tulajdonosnak vissza fogja szerelni. Vízszolgáltatás van, a szennyvizet derítőben lehet gyűjteni. A ház alatt egy pince van ami benyúlik az egyi szoba alá.

Referenciaszám: M320896

Hirdetés feltöltve: 2026. 01. 23.

Az ingatlan elhelyezkedése

Cím: Rádfalva

Eladó ingatlanok a környékről

Eladó téglalakás
Eladó téglalakás

Komló

26.2 M Ft
2 szoba
52 m2
Eladó téglalakás
Eladó téglalakás

Pécs

47.9 M Ft
2 szoba
50 m2
Eladó családi ház
Eladó családi ház

Magyarbóly

15.99 M Ft
4 szoba
110 m2
Eladó családi ház
Eladó családi ház

Felsőszentmárton

26.9 M Ft
2 + 1 szoba
120 m2
Eladó családi ház
Eladó családi ház

Versend

75 M Ft
3 szoba
123 m2
Eladó családi ház
Eladó családi ház

Pécsvárad

47.99 M Ft
4 szoba
102 m2
Eladó családi ház
Eladó családi ház

Mohács

26.5 M Ft
5 szoba
200 m2
Eladó családi ház
Eladó családi ház

Pécs, Deindol, Nagydeindoli

5.9 M Ft
902 m2
Eladó családi ház
Eladó családi ház

Komló

13.5 M Ft
2 + 1 szoba
70 m2
Eladó ikerház
Eladó ikerház

Komló

39.5 M Ft
2 + 1 szoba
60 m2
Eladó családi ház
Eladó családi ház

Dunaszekcső

21.9 M Ft
4 szoba
144 m2
Eladó téglalakás
Eladó téglalakás

Szentlőrinc

45 M Ft
1 + 2 szoba
58 m2
Eladó családi ház
Eladó családi ház

Illocska

15 M Ft
2 szoba
105 m2
Eladó családi ház
Eladó családi ház

Villány

22 M Ft
5 szoba
160 m2
Eladó panellakás
Eladó panellakás

Pécs

64.99 M Ft
3 szoba
54 m2
Eladó családi ház
Eladó családi ház

Pécs

42.9 M Ft
3 szoba
99 m2
Eladó ikerház
Eladó ikerház

Komló

29.9 M Ft
3 szoba
75 m2
Eladó téglalakás
Eladó téglalakás

Pécs

32.7 M Ft
2 szoba
54 m2
Eladó téglalakás
Eladó téglalakás

Pécs

86 M Ft
3 szoba
91 m2
Eladó téglalakás
Eladó téglalakás

Pécs

101.43 M Ft
4 szoba
91 m2
Eladó téglalakás
Eladó téglalakás

Pécs

92.285 M Ft
3 szoba
87 m2
Eladó téglalakás
Eladó téglalakás

Pécs

54.9 M Ft
3 szoba
72 m2
Eladó téglalakás
Eladó téglalakás

Komló

24.5 M Ft
1 + 1 szoba
43 m2
Eladó téglalakás
Eladó téglalakás

Pécs

62.9 M Ft
3 szoba
68 m2

Falusi CSOK ingatlanok

Eladó ikerház
Eladó ikerház

Bodajk

64.9 M Ft
5 szoba
90 m2
Eladó családi ház
Eladó családi ház

Nagyiván, Rákóczi Ferenc út 17

4.99 M Ft
2 szoba
50 m2
Eladó családi ház
Eladó családi ház

Nyírtura

69.9 M Ft
4 szoba
120 m2
Eladó családi ház
Eladó családi ház

Táborfalva

49 M Ft
3 szoba
77 m2
Eladó családi ház
Eladó családi ház

Szakmár

12.9 M Ft
3 + 1 szoba
90 m2
Eladó családi ház
Eladó családi ház

Újhartyán, Gödör utca

81.99 M Ft
3 szoba
110 m2
Eladó családi ház
Eladó családi ház

Nádasdladány

45.9 M Ft
1 + 1 szoba
50 m2
Eladó családi ház
Eladó családi ház

Mencshely

99 M Ft
3 szoba
126 m2

Falusi CSOK ingatlanok

Eladó családi ház
Eladó családi ház

Szederkény

107.9 M Ft
6 szoba
224 m2
Eladó családi ház
Eladó családi ház

Törtel

32.9 M Ft
3 szoba
68 m2
Eladó téglalakás
Eladó téglalakás

Fertőszentmiklós

52.2 M Ft
3 szoba
89 m2
Eladó családi ház
Eladó családi ház

Jakabszállás

69.99 M Ft
1 + 4 szoba
91 m2
Eladó családi ház
Eladó családi ház

Mencshely

99 M Ft
3 szoba
126 m2
Eladó családi ház
Eladó családi ház

Mályi

84.9 M Ft
4 szoba
100 m2
Eladó családi ház
Eladó családi ház

Nyékládháza, Mátyás király utca

34.9 M Ft
2 szoba
88 m2
Eladó családi ház
Eladó családi ház

Somogyszil

27.9 M Ft
3 szoba
140 m2