Kedves Felhasználónk! Rendszerfrissítés miatt az oldalunk 2026. február 9-én 12 órától várhatóan 20 óráig nem lesz elérhető. Köszönjük megértésed!
NapForrás 20 - Buda

Eladó családi ház
Ráckeve, Ráckevén, Gyönyörű zöld környezetben

+ 7 kép 1/10
74 900 000 Ft74.9 M Ft 706 604 Ft/m2
4 szoba
106 m2

Részletes adatok

Telekméret: 1000 m2
Fűtés: Egyéb
Közmű: Villany, Csatorna
Energetikai besorolás: Nem adta meg a hirdető

Az OTP Bank lakáshitel ajánlataFizetett hirdetés

+36 70 779
Zsuzsanna Hegedűs
Dream Credit Kft

Érdekel az OTP Bank kedvezményes lakáshitel ajánlata? *

* A kérdésre „Igen” válasz bejelölése esetén, az „Üzenet küldése” gombra kattintva kijelentem, hogy az OTP Bank Nyrt. Adatkezelési tájékoztatójának tartalmát megismertem és tudomásul vettem.

Eladó családi ház leírása

3%-OS HITEL, CSOK+, ILLETÉKMENTESSÉG, ZÖLD-HITEL, ENERGIATAKARÉKOS HÁZ!!!
Csak a Dream Credit kínálatában!!

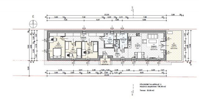
Megvételre kínálom Ráckevén, Gyönyörű zöld környezetben, 2 percre a kisDunától ezt az új építésű, 4szobás ÖNÁLLÓ CSALÁDI házat, hatalmas telekkel.

Az ingatlan Hasznos alapterület: 106,46 m2 Terasz: 20,60 m2 Kert: 1000 m2

-Amerikai-konyha-nappali
-3db hálószoba
-kamra
-fürdő
-wc

MEGBÍZHATÓ, REFERENCIÁVAL RENDELKEZŐ KIVITELEZŐTŐL!!!

A fűtéséről, NAPELEMMEL KOMBINÁLHATÓ, HŐSZIVATTYÚ gondoskodik, padlófűtéssel.

KIEMELKEDŐ műszaki tartalom.

Alapozás C-12-16/KK beton sávalap, lábazat 2 sor zsalukő PC simított

Teherhordó falazat: PTH 30, válaszfal PHT 10
Födém: faszerkezet 20 cm Therwoolin szigetelés, 12,5 mm gipszkarton
Héjazat: Bramach Duna betoncserép
Külső nyílászárók: FEHNSTER műanyag, Thermo nyílászárók 3 rétegű
Ereszcsatorna: körben antracit
Külső homlokzat: 10 cm grafitos dryvit, Kingston,v secret vödrös nemes vakolat fehér színekben
Kapcsolók- konnektorok: 50db
Fűtés: padlófűtés, hőszivatyú fűtés, Hajdu hőszivattyú, Hajdu villanybojler
Belső nyílászárók: utólag beszerelhető antracit beltéri ajtó
Hidegburkolatok: Padlólap 10.000Ft/nm-ig.
Meleg burkolatok: Laminált parketta 10.000 Ft/nm-ig
Fürdőszobában csempe: 2 m magasan, wc-ben: 150 cm magasan
Konyhában két bútor közt 60 cm
Csaptelepek:20.000 Ft/db
Szaniteráruk: ALFÖLDI porcelán mosdó 50.000 Ft, WC 40.000 Ft (mű .a. tartállyal), 170-es akril kád 120.000 Ft
Teraszburkolat: Csak munkadíj. Anyag, ragasztó, élvédő vásárlása a vevő költsége, ha vevő a terven megadott m2-nél nagyobb teraszt kér annak költségét vevő viseli.
Festés: 2X glettelés, DISZPERZITEZÉS festés fehér színben
Műszaki járda: 60 cm beton a ház körül + a kerítéstől a bejáratig 100 cm
Kerítés: Elválasztó kerítés. Utcafronti kerítés, antracit szürke , díszkövekből áll,
Választható: napelem közökkel, amit igény szerint rá tud kötni saját rendszerére is.
Általános tereprendezés, földfeltöltés nélkül
Közművek: Villany 220 V, Vezetékes víz, csatorna
H-tarifás óra
Riasztó kiállás
Elektromos kapu kiállás

Cégünk INGYENES, iroda és bank-független Hitel ügyintézéssel is rendelkezésére áll, nem csak nálunk vásárolt ingatlanokra!!
Kérdés és-vagy időpont egyeztetés miatt hívjon bátran akár hétvégén is.
Amennyiben nem tudom felvenni visszahívom.

Hirdetés feltöltve: 2025. 11. 26. Utoljára módosítva: 2026. 02. 05.

4 szobás családi házak ára Ráckevén

Ebből az összehasonlításból megtudhatod, hogyan viszonyul a lakás ára a környékbeli családi házak átlagos árához. Ez nem azt jelenti, hogy ennyivel olcsóbb vagy drágább, mint amennyit a lakás ér, hanem hogy ennyivel tér el a környékbeli átlagtól.

Ennek a m² ára
Ráckeve m² ár
707 e Ft
788 e Ft 10%
Ennek az ára
Ráckeve átlagár
74.9 M Ft m Ft
87.2 m Ft 14%

Az ingatlan elhelyezkedése

Cím: Ráckeve, Ráckevén, Gyönyörű zöld környezetben

Eladó családi házak a környékről

Eladó családi ház
Eladó családi ház

Ráckeve

425 M Ft
4 szoba
400 m2
Eladó családi ház
Eladó családi ház

Remeteszőlős

399.9 M Ft
5 + 2 szoba
260 m2
Eladó családi ház
Eladó családi ház

Ráckeve

137 M Ft
3 szoba
127 m2
Eladó családi ház
Eladó családi ház

Ráckeve

65 M Ft
5 szoba
317 m2
Eladó családi ház
Eladó családi ház

Zebegény

69.9 M Ft
6 szoba
245 m2
Eladó családi ház
Eladó családi ház

Tápiószőlős

34.9 M Ft
5 szoba
210 m2
Eladó családi ház
Eladó családi ház

Pécel, Reményik Sándor utca

296 M Ft
6 szoba
396 m2
Eladó családi ház
Eladó családi ház

Tápiószentmárton

48 M Ft
5 szoba
180 m2
Eladó családi ház
Eladó családi ház

Ráckeve

110 M Ft
3 szoba
135 m2
Eladó családi ház
Eladó családi ház

Ráckeve, Keszeg sor

96 M Ft
11 szoba
360 m2
Eladó családi ház
Eladó családi ház

Tápiószele

45 M Ft
6 szoba
360 m2
Eladó családi ház
Eladó családi ház

Tápiószele

32.9 M Ft
4 szoba
200 m2
Eladó családi ház
Eladó családi ház

Budakeszi, Makkosmária

100 M Ft
1 szoba
10 m2
Eladó családi ház
Eladó családi ház

Ráckeve

130 M Ft
5 szoba
163 m2
Eladó családi ház
Eladó családi ház

Ráckeve

55 M Ft
4 szoba
93 m2
Eladó családi ház
Eladó családi ház

Tápiószele

37.9 M Ft
4 szoba
141 m2
Eladó családi ház
Eladó családi ház

Ráckeve

89.9 M Ft
5 szoba
136 m2
Eladó családi ház
Eladó családi ház

Ráckeve

46 M Ft
2 szoba
80 m2
Eladó családi ház
Eladó családi ház

Ráckeve

124.99 M Ft
4 szoba
160 m2
Eladó családi ház
Eladó családi ház

Budakeszi, Budakeszi kertváros

140 M Ft
2 szoba
55 m2
Eladó családi ház
Eladó családi ház

Budaörs

400 M Ft
12 szoba
583 m2
Eladó családi ház
Eladó családi ház

Ráckeve

137 M Ft
3 szoba
127 m2
Eladó családi ház
Eladó családi ház

Tápiószentmárton

7.9 M Ft
2 + 1 szoba
86 m2
Eladó családi ház
Eladó családi ház

Ráckeve

87.9 M Ft
4 szoba
104 m2

Falusi CSOK ingatlanok

Eladó családi ház
Eladó családi ház

Recsk

59 M Ft
2 szoba
70 m2
Eladó családi ház
Eladó családi ház

Recsk

28 M Ft
3 szoba
91 m2
Eladó családi ház
Eladó családi ház

Pécsvárad

140 M Ft
2 szoba
79 m2
Eladó családi ház
Eladó családi ház

Gasztony

29.4 M Ft
2 szoba
83 m2
Eladó családi ház
Eladó családi ház

Iváncsa

33.9 M Ft
2 + 1 szoba
72 m2
Eladó családi ház
Eladó családi ház

Kisfalud

91.5 M Ft
2 szoba
70 m2
Eladó családi ház
Eladó családi ház

Pétfürdő

74.9 M Ft
3 szoba
89 m2
Eladó családi ház
Eladó családi ház

Recsk

35 M Ft
5 szoba
140 m2