Astora Márvány8

Eladó családi ház
Pomáz

149 900 000 Ft149.9 M Ft 1 199 200 Ft/m2
4 szoba
125 m²
építés éve:2026

Részletes adatok

Telekméret: 750 m2
Fűtés: Egyéb
Parkolás: Garázs
Közmű: Víz, Gáz, Villany, Csatorna
Komfort: Duplakomfortos
Energetikai besorolás: A

Az OTP Bank lakáshitel ajánlataFizetett hirdetés

+36 20 412
Witek Krisztina
BeMyHome Ingatlan

Érdekel az OTP Bank kedvezményes lakáshitel ajánlata? *

* A kérdésre „Igen” válasz bejelölése esetén, az „Üzenet küldése” gombra kattintva kijelentem, hogy az OTP Bank Nyrt. Adatkezelési tájékoztatójának tartalmát megismertem és tudomásul vettem.

Eladó családi ház leírása

3%-os hitel
CSOK felvehető rá!!!
Átadás 2026 évvége

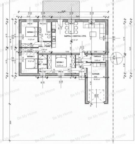
Az EGYSZINTES CSALÁDIHÁZ praktikus elosztású,
750nm-es telken található
Nettó 125nm /105nm lakó terület + 20nm garázs/

ELRENDEZÉS SZERINT:
- amerikaikonyhás nappali + étkező
- 3 db háló
- 2 db fürdőszoba
- gardrób
- háztartási helyiség
- 20 nm-es garázs
- teraszok

MŰSZAKI TARTALOM:
• 30 as Porotherm tégla + 15 cm szigetelés
• hőszívattyús fűtés és padlófűtés
• Klima Előkészítés
• duplakomfort
• garázs
• 3 rétegű 5 légkamrás műanyag nyílászárók
• redőny előkészítés
• burkolatok és szaniterek benne vannak az árban és választhatóak
• CSOK és a hozzá tartozó kedvezmények igénybe vehetők

A családi ház magas műszaki tartalommal épül, az ár kulcsrakész ár!
/konyhabútort nem tartalmazza /

Amennyiben felkeltettem érdeklődését, várom hívását!

Hirdetés feltöltve: 2026. 02. 10. Utoljára módosítva: 2026. 05. 12.

4 szobás családi házak ára Pomázon

Ebből az összehasonlításból megtudhatod, hogyan viszonyul a lakás ára a környékbeli családi házak átlagos árához. Ez nem azt jelenti, hogy ennyivel olcsóbb vagy drágább, mint amennyit a lakás ér, hanem hogy ennyivel tér el a környékbeli átlagtól.

Ennek a m² ára
Pomáz m² ár
1199 e Ft
963 e Ft -25%
Ennek az ára
Pomáz átlagár
149.9 M Ft m Ft
119.4 m Ft -26%

Az ingatlan elhelyezkedése

Cím: Pomáz

Eladó családi házak a környékről

Pomáz
Eladó családi ház

Pomáz

1380 M Ft
21 szoba
801 m²
Budakeszi, Makkosmária
Eladó családi ház

Budakeszi

100 M Ft
1 szoba
10 m²
Zebegény
Eladó családi ház

Zebegény

69.9 M Ft
6 szoba
245 m²
Tápiószentmárton
Eladó családi ház

Tápiószentmárton

48 M Ft
5 szoba
180 m²
Pomáz
Eladó családi ház

Pomáz

88.9 M Ft
4 szoba
95 m²
Pomáz
Eladó családi ház

Pomáz

98 M Ft
4 szoba
90 m²
Pomáz
Eladó családi ház

Pomáz

145 M Ft
7 + 2 szoba
253 m²
Kerepes
Eladó családi ház

Kerepes

81.99 M Ft
5 szoba
102 m²
Érd, Érdliget - Kutyavár, Érd-liget
Eladó családi ház

Érd

230 M Ft
7 szoba
280 m²
Pomáz
Eladó családi ház

Pomáz

39.9 M Ft
2 szoba
70 m²
Pomáz
Eladó családi ház

Pomáz

189.9 M Ft
5 + 1 szoba
186 m²
Pomáz, Orlovácz u
Eladó családi ház

Pomáz

183.5 M Ft
5 + 1 szoba
200 m²
Tápiószentmárton
Eladó családi ház

Tápiószentmárton

7.9 M Ft
2 + 1 szoba
86 m²
Tápiószele
Eladó családi ház

Tápiószele

37.9 M Ft
4 szoba
141 m²
Érd
Eladó családi ház

Érd

164.9 M Ft
5 szoba
192 m²
Pomáz
Eladó családi ház

Pomáz

132 M Ft
4 szoba
180 m²
Őrbottyán
Eladó családi ház

Őrbottyán

154 M Ft
4 + 1 szoba
115 m²
Budakeszi, Budakeszi kertváros
Eladó családi ház

Budakeszi

229 M Ft
10 szoba
450 m²
Tápiószele
Eladó családi ház

Tápiószele

45 M Ft
6 szoba
360 m²
Pomáz
Eladó családi ház

Pomáz

132 M Ft
4 szoba
180 m²
Tápiószentmárton
Eladó családi ház

Tápiószentmárton

16.5 M Ft
3 szoba
50 m²
Pomáz
Eladó családi ház

Pomáz

189 M Ft
7 szoba
207 m²
Dunakeszi
Eladó családi ház

Dunakeszi

250 M Ft
4 szoba
180 m²
Nagykáta
Eladó családi ház

Nagykáta

130 M Ft
3 szoba
203 m²

Falusi CSOK ingatlanok

Tihany
Eladó családi ház

Tihany

385 M Ft
5 szoba
200 m²
Kál
Eladó családi ház

Kál

31 M Ft
4 szoba
307 m²
Kunszállás
Eladó családi ház

Kunszállás

65.9 M Ft
4 szoba
90 m²
Halimba
Eladó családi ház

Halimba

59.9 M Ft
6 szoba
182 m²
Szabadbattyán
Eladó családi ház

Szabadbattyán

79.6 M Ft
4 szoba
101 m²
Balatonszemes
Eladó téglalakás

Balatonszemes

91.5 M Ft
2 szoba
0 m²
Balinka, Petőfi S. utca 27
Eladó családi ház

Balinka

12.65 M Ft
1 + 2 szoba
79 m²
Bakonyszentlászló
Eladó családi ház

Bakonyszentlászló

48.5 M Ft
3 szoba
103 m²