Seven Pearl

Eladó családi ház
Pomáz

+ 5 kép 1/8
242 800 000 Ft242.8 M Ft 1 074 336 Ft/m2
10 szoba
226 m2
építés éve:2025

Részletes adatok

Telekméret: 803 m2
Fűtés: Egyéb
Parkolás: Kocsibeálló
Közmű: Víz, Villany, Csatorna
Energetikai besorolás: Nem adta meg a hirdető

Az OTP Bank lakáshitel ajánlataFizetett hirdetés

+36 70 882
Kiss Krisztina
Körültekintő Ingatlan

Érdekel az OTP Bank kedvezményes lakáshitel ajánlata? *

* A kérdésre „Igen” válasz bejelölése esetén, az „Üzenet küldése” gombra kattintva kijelentem, hogy az OTP Bank Nyrt. Adatkezelési tájékoztatójának tartalmát megismertem és tudomásul vettem.

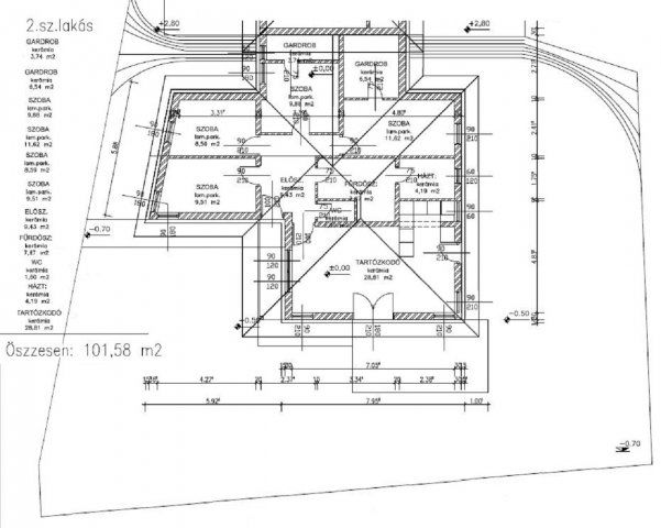
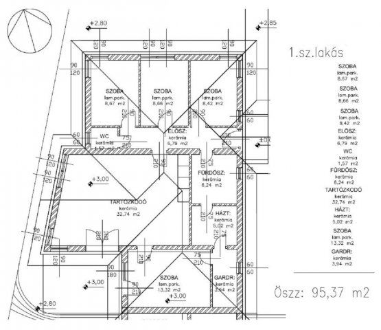
Eladó családi ház leírása

Pomázon a Meselia déli oldalában, csendes környezetben egy szintes, két önálló lakással rendelkező családi ház eladó.

Az építéssel kapcsolatos paraméterek:
- Tervezett átadás: a szerződést követő egy éven belül
- hőszivattyús fűtés, padlófűtéssel, radiátorokkal
- magas minőségű hőszigetelés, ZÖLD hitelnek megfelelő energetikai besorolás
- több rétegű, műanyag nyílászárók
- választható belső burkolatok, szaniterek
- riasztó rendszer előkészítés
- 30 nm-es, az amerikai konyhás nappalihoz kapcsolódó terasz
- durva tereprendezés
- kulcsrakész átadás
Finanszírozási lehetőség:
- Zöld hitel kompatibilitás
- CSOK, hitel, illeték mentesség, Áfa visszatérítés igényelhető.
- Az alaprajz igény szerint még módosítható.

A beruházó a környék elismert építési vállalkozója, rengeteg referenciamunkával rendelkezik.

Hirdetés feltöltve: 2025. 12. 01.

Az ingatlan elhelyezkedése

Cím: Pomáz

Eladó családi házak a környékről

Eladó családi ház
Eladó családi ház

Tápiószentmárton

7.9 M Ft
2 + 1 szoba
86 m2
Eladó családi ház
Eladó családi ház

Dunavarsány

69.9 M Ft
3 + 1 szoba
140 m2
Eladó családi ház
Eladó családi ház

Budaörs, Bányász utca

385 M Ft
6 szoba
300 m2
Eladó családi ház
Eladó családi ház

Érd

164.9 M Ft
5 szoba
192 m2
Eladó családi ház
Eladó családi ház

Budaörs, Odvshegy utca

268.9 M Ft
5 szoba
235 m2
Eladó családi ház
Eladó családi ház

Dunavarsány

49.9 M Ft
3 + 2 szoba
130 m2
Eladó családi ház
Eladó családi ház

Budakeszi, Budakeszi kertváros

229 M Ft
10 szoba
450 m2
Eladó családi ház
Eladó családi ház

Pomáz

199 M Ft
5 szoba
243 m2
Eladó családi ház
Eladó családi ház

Pomáz

35 M Ft
3 szoba
42 m2
Eladó családi ház
Eladó családi ház

Dunakeszi

250 M Ft
4 szoba
180 m2
Eladó családi ház
Eladó családi ház

Pomáz

1380 M Ft
21 szoba
801 m2
Eladó családi ház
Eladó családi ház

Budakeszi, Budakeszi kertváros

140 M Ft
2 szoba
55 m2
Eladó családi ház
Eladó családi ház

Pomáz

42.9 M Ft
3 szoba
62 m2
Eladó családi ház
Eladó családi ház

Sződ, Rátóti utca

149.99 M Ft
11 szoba
270 m2
Eladó családi ház
Eladó családi ház

Pomáz

145 M Ft
7 + 2 szoba
253 m2
Eladó családi ház
Eladó családi ház

Pomáz, Orlovácz utca

183.5 M Ft
5 + 1 szoba
208 m2
Eladó családi ház
Eladó családi ház

Gyál, Gyál út

169.9 M Ft
2 szoba
90 m2
Eladó családi ház
Eladó családi ház

Pomáz

108 M Ft
5 szoba
180 m2
Eladó családi ház
Eladó családi ház

Budakeszi

130 M Ft
5 szoba
30 m2
Eladó családi ház
Eladó családi ház

Pomáz

132 M Ft
4 szoba
180 m2
Eladó családi ház
Eladó családi ház

Pomáz

220 M Ft
25 szoba
301 m2
Eladó családi ház
Eladó családi ház

Pécel, Reményik Sándor utca

296 M Ft
6 szoba
396 m2
Eladó családi ház
Eladó családi ház

Pomáz

119.5 M Ft
7 szoba
240 m2
Eladó családi ház
Eladó családi ház

Remeteszőlős

399.9 M Ft
5 + 2 szoba
260 m2

Falusi CSOK ingatlanok

Eladó családi ház
Eladó családi ház

Harsány

14.999 M Ft
4 szoba
80 m2
Eladó családi ház
Eladó családi ház

Ádánd

53.5 M Ft
6 szoba
180 m2
Eladó családi ház
Eladó családi ház

Szigetújfalu

120 M Ft
291 m2
Eladó családi ház
Eladó családi ház

Darnózseli

79.9 M Ft
4 szoba
104 m2
Eladó családi ház
Eladó családi ház

Hegyeshalom

85 M Ft
4 + 1 szoba
123 m2
Eladó családi ház
Eladó családi ház

Sárosd

21.9 M Ft
3 szoba
86 m2
Eladó családi ház
Eladó családi ház

Cece

23.5 M Ft
3 szoba
66 m2
Eladó családi ház
Eladó családi ház

Mencshely

99 M Ft
3 szoba
126 m2