Pesti Házak

Eladó családi ház
Pomáz

32 000 000 Ft32 M Ft 444 444 Ft/m2
4 szoba
72 m2
építés éve:1980

Részletes adatok

Telekméret: 1392 m2
Fűtés: Egyéb
Közmű: Villany
Energetikai besorolás: Nem adta meg a hirdető
Zenga Premier

Friss hirdetések, amiket nem találsz meg más ingatlankereső portálon.

Fedezd fel elsőként a Zenga Premier címkés eladó ingatlanokat!

További részletek a zenga.hu-n

Az OTP Bank lakáshitel ajánlataFizetett hirdetés

+36 70 435
Mezriczki Márton
referens

Érdekel az OTP Bank kedvezményes lakáshitel ajánlata? *

* A kérdésre „Igen” válasz bejelölése esetén, az „Üzenet küldése” gombra kattintva kijelentem, hogy az OTP Bank Nyrt. Adatkezelési tájékoztatójának tartalmát megismertem és tudomásul vettem.

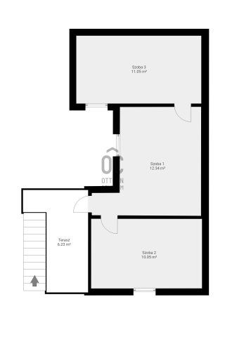
Eladó családi ház leírása

Pomáz kedvelt, természetközeli részén, a Kőhegy régió nyugodt utcájában kínálunk megvételre egy 1392 m²-es, sík elhelyezkedésű zártkerti telket, rajta egy két szintes, téglaépítésű gazdasági épülettel.

Az épület jellemzői:

Földszint: előtér/étkező, különálló konyha, egy szoba, valamint a szobából nyíló fürdő.

WC: az épülethez tartozik, külső bejárattal.

Melléképület/tároló: a külső bejárat mellett elhelyezkedő, tárolásra alkalmas rész.

Pince: az épület alatt, a főbejárat mellett található lejárattal.

Felső szint: fa szerkezetű, külső lépcsővel közelíthető meg; stabil és használható, ugyanakkor tartós lakhatáshoz felújítást igényel.

Állapot: a ház nem romos, szerkezetileg egyben van, de korszerűsítést igényel.

Építés éve: 1980.

Közművek:
Víz: saját kút
Villany: bevezetve
Csatorna: emésztő
Gáz: nincs bevezetve

Telek és elhelyezkedés:
15 méteres utcafront

A ház az utca vonalától kb. 70 méterrel beljebb található, ami teljes intim, nyugodt elhelyezkedést biztosít.

A telek teljesen körbekerített (vegyes állapotú kerítéssel).

A hátsó részen régebbi, elbontható melléképítmények találhatók, amelyek igény szerint könnyen eltávolíthatók.

Az udvaron nagy, összefüggő zöldterület, több fa és tágas kert áll rendelkezésre.

Autóval jól megközelíthető: a kaputól betonozott nyomsáv vezet a házig.

Megközelítés és környezet:

Az ingatlanig vezető út múrvás földút, amely esőben és télen is jól járható; személyautóval gond nélkül használható.

A környéken vannak állandó lakók is, így aki igényli a közösségi jelenlétet, megtalálja — ugyanakkor a terület megőrizte csendes, zavartalan hangulatát, nem jellemző a zajos környezet.

A város központi részei és bevásárlási lehetőségek néhány perces autóútra találhatók

Egyedi igényekre szabott lakáshitelekkel állunk rendelkezésére.
Bankfüggetlen Hitelcentrumunk az országban elérhető összes bank és hitelintézet ajánlatát versenyezteti az Ön számára díjmentesen.
Munkatársaink nagy szakmai tapasztalattal, teljes körű CSOK PLUSZ és OTTHON START PROGRAM ügyintézéssel várják Önt előre egyeztetett időpontban akár a normál munkaidő után is.

Hirdetés feltöltve: 2025. 11. 27. Utoljára módosítva: 2025. 11. 27.

4 szobás családi házak ára Pomázon

Ebből az összehasonlításból megtudhatod, hogyan viszonyul a lakás ára a környékbeli családi házak átlagos árához. Ez nem azt jelenti, hogy ennyivel olcsóbb vagy drágább, mint amennyit a lakás ér, hanem hogy ennyivel tér el a környékbeli átlagtól.

Ennek a m² ára
Pomáz m² ár
444 e Ft
832 e Ft 47%
Ennek az ára
Pomáz átlagár
32 M Ft m Ft
113.6 m Ft 72%

Az ingatlan elhelyezkedése

Cím: Pomáz

Eladó családi házak a környékről

Eladó családi ház
Eladó családi ház

Pomáz

145 M Ft
7 + 2 szoba
253 m2
Eladó családi ház
Eladó családi ház

Pomáz

132 M Ft
4 szoba
180 m2
Eladó családi ház
Eladó családi ház

Pomáz

199.9 M Ft
5 szoba
280 m2
Eladó családi ház
Eladó családi ház

Érd

164.9 M Ft
5 szoba
192 m2
Eladó családi ház
Eladó családi ház

Tápiószentmárton

7.9 M Ft
2 + 1 szoba
86 m2
Eladó családi ház
Eladó családi ház

Pomáz

218.5 M Ft
3 szoba
100 m2
Eladó családi ház
Eladó családi ház

Pomáz, Szüret utca

78 M Ft
3 szoba
54 m2
Eladó családi ház
Eladó családi ház

Pomáz

108 M Ft
5 szoba
180 m2
Eladó családi ház
Eladó családi ház

Budakeszi, Budakeszi kertváros

229 M Ft
10 szoba
450 m2
Eladó családi ház
Eladó családi ház

Tápiószele

37.9 M Ft
4 szoba
141 m2
Eladó családi ház
Eladó családi ház

Budakeszi, Budakeszi kertváros

140 M Ft
2 szoba
55 m2
Eladó családi ház
Eladó családi ház

Pomáz

132 M Ft
4 szoba
180 m2
Eladó családi ház
Eladó családi ház

Gyál, Gyál út

169.9 M Ft
2 szoba
90 m2
Eladó családi ház
Eladó családi ház

Pomáz, Kandó Kálmán utca

88.7 M Ft
4 szoba
170 m2
Eladó családi ház
Eladó családi ház

Leányfalu

237 M Ft
9 szoba
800 m2
Eladó családi ház
Eladó családi ház

Pomáz

1380 M Ft
16 szoba
802 m2
Eladó családi ház
Eladó családi ház

Remeteszőlős

399.9 M Ft
5 + 2 szoba
260 m2
Eladó családi ház
Eladó családi ház

Pomáz

199 M Ft
5 szoba
243 m2
Eladó családi ház
Eladó családi ház

Pomáz

218.5 M Ft
3 szoba
100 m2
Eladó családi ház
Eladó családi ház

Pomáz

189 M Ft
7 szoba
207 m2
Eladó családi ház
Eladó családi ház

Pomáz

42.9 M Ft
3 szoba
62 m2
Eladó családi ház
Eladó családi ház

Pomáz

119.5 M Ft
7 szoba
240 m2
Eladó családi ház
Eladó családi ház

Tápiószele

32.9 M Ft
4 szoba
200 m2
Eladó családi ház
Eladó családi ház

Pomáz

199 M Ft
5 szoba
243 m2

Falusi CSOK ingatlanok

Eladó családi ház
Eladó családi ház

Vasvár

64.9 M Ft
3 szoba
91 m2
Eladó családi ház
Eladó családi ház

Egyed

24.9 M Ft
2 + 1 szoba
56 m2
Eladó családi ház
Eladó családi ház

Abádszalók

70 M Ft
3 szoba
100 m2
Eladó családi ház
Eladó családi ház

Szigliget

299 M Ft
3 szoba
95 m2
Eladó családi ház
Eladó családi ház

Nagybörzsöny

79.9 M Ft
4 szoba
149 m2
Eladó családi ház
Eladó családi ház

Mencshely

99 M Ft
3 szoba
126 m2
Eladó családi ház
Eladó családi ház

Nemesszalók

8.9 M Ft
1 szoba
54 m2
Eladó családi ház
Eladó családi ház

Tiszajenő

25.9 M Ft
3 + 1 szoba
120 m2