Seven Pearl

Eladó családi ház
Pécs, földszint

+ 10 kép 1/13
149 900 000 Ft149.9 M Ft 1 387 963 Ft/m2
4 szoba
108 m²
földszint
építés éve:2026

Részletes adatok

Telekméret: 700 m2
Fűtés: Egyéb
Emelet: földszint
Közmű: Víz, Villany, Csatorna
Komfort: Összkomfortos
Energetikai besorolás: A

Az OTP Bank lakáshitel ajánlataFizetett hirdetés

+36 70 521
Boros Linda
referens

Érdekel az OTP Bank kedvezményes lakáshitel ajánlata? *

* A kérdésre „Igen” válasz bejelölése esetén, az „Üzenet küldése” gombra kattintva kijelentem, hogy az OTP Bank Nyrt. Adatkezelési tájékoztatójának tartalmát megismertem és tudomásul vettem.

Eladó családi ház leírása

Eladásra kínálok Pécs-Donátuson, a Varjú dülőben egy újépítésű családi házat.

Az ingatlan építés alatt áll, tervezett átadás:
2026.12.31

Paraméterek:

Telek mérete 700 m2,
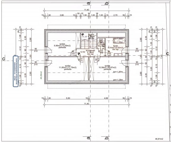
Ingatlan mérete 108 m2, mely az alábbi elosztást tartalmazza: földszint + emelet kialakítású.
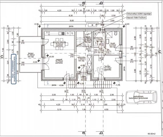
4 db hálószoba ( 3db 11 m2-es, és 1db 9 m2-es), nappali-konyha-étkező (28 m2), zuhanyzós fürdőszoba illemhelyiséggel a földszinten, és egy kádas fürdő, külön illemhelyiséggel, az emeleten.
3 db szoba az emeleten, 1 db szoba a földszinten kerül kialakításra.
A házhoz tartozik egy 16 m2-es terasz, valamint autóbeálló is.
Az ingatlan téglából épül, 3 rétegű nyílászárókkal, fűtése, hőszivattyúval megoldott.

Az ingatlan megfelel a CSOK-Plusz, és Otthon Start hiteleknek is. Amennyiben hitel is szükséges a megvásárláshoz, állok renddelkezésre, mint független pénzügyi szakértő.

További információ esetén a megadott telefonszámon várom hívását.

Hirdetés feltöltve: 2026. 04. 02. Utoljára módosítva: 2026. 05. 13.

4 szobás családi házak ára Pécsett

Ebből az összehasonlításból megtudhatod, hogyan viszonyul a lakás ára a környékbeli családi házak átlagos árához. Ez nem azt jelenti, hogy ennyivel olcsóbb vagy drágább, mint amennyit a lakás ér, hanem hogy ennyivel tér el a környékbeli átlagtól.

Ennek a m² ára
Pécs m² ár
1388 e Ft
860 e Ft -61%
Ennek az ára
Pécs átlagár
149.9 M Ft m Ft
118.3 m Ft -27%

Az ingatlan elhelyezkedése

Cím: Pécs, földszint

Eladó családi házak a környékről

Pécs
Eladó családi ház

Pécs

83 M Ft
3 szoba
100 m²
Mohács
Eladó családi ház

Mohács

9.3 M Ft
1 szoba
30 m²
Palotabozsok
Eladó családi ház

Palotabozsok

9.9 M Ft
3 szoba
0 m²
Siklós
Eladó családi ház

Siklós

270 M Ft
8 szoba
600 m²
Mohács, Szőlőhegy
Eladó családi ház

Mohács

32.99 M Ft
2 szoba
72 m²
Pécs, Budai külváros, Fischer Béla utca
Eladó családi ház

Pécs

74 M Ft
3 szoba
140 m²
Szentlőrinc, Bertalan püspök utca
Eladó családi ház

Szentlőrinc

85 M Ft
3 szoba
330 m²
Pécs, Kertváros, Táncsics Mihály utca
Eladó családi ház

Pécs

85 M Ft
6 szoba
185 m²
Pécs, Kertváros, Táncsics Mihály utca
Eladó családi ház

Pécs

85 M Ft
6 szoba
185 m²
Pécs, Szabolcsfalu, Szabadságharc utca
Eladó családi ház

Pécs

58.99 M Ft
3 szoba
240 m²
Pécs, Vasas, D utca 11
Eladó családi ház

Pécs

3.48 M Ft
1 + 1 szoba
93 m²
Pécs
Eladó családi ház

Pécs

30 M Ft
1 + 3 szoba
90 m²
Pécs, Csoronika, Jakabhegyi út
Eladó családi ház

Pécs

99 M Ft
3000 m²
576 m²
Mohács
Eladó családi ház

Mohács

25 M Ft
4 szoba
120 m²
Pécs
Eladó családi ház

Pécs

299 M Ft
4 szoba
126 m²
Komló, Fő utca
Eladó családi ház

Komló

26.99 M Ft
3 szoba
110 m²
Pécs, Meszesi lakóövezet, Pacca dűlő
Eladó családi ház

Pécs

16 M Ft
1 szoba
28 m²
Pécs
Eladó családi ház

Pécs

150 M Ft
4 szoba
267 m²
Pécs, Gyárváros, Huba utca 11
Eladó családi ház

Pécs

42.9 M Ft
4 szoba
96 m²
Pécs, Meszesi lakóövezet, Pacca dűlő
Eladó családi ház

Pécs

16 M Ft
1 szoba
28 m²
Pécs
Eladó családi ház

Pécs

83 M Ft
3 szoba
100 m²
Magyartelek, Újsor utca
Eladó családi ház

Magyartelek

16.5 M Ft
3 szoba
75 m²
Lánycsók
Eladó családi ház

Lánycsók

75 M Ft
7 szoba
247 m²
Pécs, Szabolcsfalu, Ember Kálmán utca
Eladó családi ház

Pécs

15.5 M Ft
1 szoba
38 m²

Falusi CSOK ingatlanok

Törtel
Eladó családi ház

Törtel

32.5 M Ft
3 szoba
66 m²
Hosszúpereszteg
Eladó családi ház

Hosszúpereszteg

27.9 M Ft
4 szoba
0 m²
Bak
Eladó családi ház

Bak

49.9 M Ft
5 szoba
140 m²
Sály, Kossuth Lajos 128
Eladó családi ház

Sály

27.45 M Ft
6 szoba
160 m²
Csabacsűd
Eladó családi ház

Csabacsűd

21 M Ft
3 szoba
125 m²
Tápiószőlős
Eladó családi ház

Tápiószőlős

9.9 M Ft
3 szoba
0 m²
Sződ
Eladó családi ház

Sződ

116 M Ft
5 szoba
136 m²
Csurgó
Eladó családi ház

Csurgó

55 M Ft
6 szoba
257 m²