Oasis Residence

Eladó családi ház
Pécs

+ 17 kép 1/20
58 700 000 Ft58.7 M Ft 838 571 Ft/m2
2 + 1 szoba
70 m²
építés éve:1960

Részletes adatok

Állapot: Átlagos
Telekméret: 480 m2
Fűtés: Gázkazán
Energetikai besorolás: C

Az OTP Bank lakáshitel ajánlataFizetett hirdetés

+36 20 509
Szabó Ágnes
OTPIP - Pécs, Rákóczi út 19.

Érdekel az OTP Bank kedvezményes lakáshitel ajánlata? *

* A kérdésre „Igen” válasz bejelölése esetén, az „Üzenet küldése” gombra kattintva kijelentem, hogy az OTP Bank Nyrt. Adatkezelési tájékoztatójának tartalmát megismertem és tudomásul vettem.

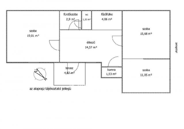
Eladó családi ház leírása

LEHETŐSÉG A ZSOLNAY NEGYEDNÉL! ? Saját kert + Garázs!

Eladó egy átlagos állapotú, szerkezetileg stabil, jó adottságokkal rendelkező családi ház Pécsett, a Kiss Ernő utcában (Zsolnay-domb)!

? 70 m? lakótér: 2,5 szoba, konyha, étkező, spájz.
? Dupla fűtés: Gázkazán + vegyestüzelésű kazán (rugalmas rezsi!).
? 480 m?-es kert: Pont akkora, amit még élvezet gondozni.
? 21 m?-es garázs: A kert végében, külön helyrajzi számmal, és villanyórával (benne van az árban!).
? Melléképületek: Tároló és kazánház az udvarban.
jelenleg főzőfülke van a házban. Kisebb átalakítással a kamra mellé lehet telepíteni konyhát.
Az udvar két részre van bontva pl. kutyatartás miatt lehet érdekes. Az első udvarban kisebb pince található.

Buszmegálló: 1 perc gyalog!
Zsolnay negyed: 3 perc séta!

Ideális választás családoknak vagy befektetésnek a kulturális negyed közelsége miatt. Alakítsad saját ízlésedre és varázsolj belőle modern otthont! A ház 1970. előtt épült.

Referenciaszám: M324682

Referencia szám: M324682

Hirdetés feltöltve: 2026. 03. 19. Utoljára módosítva: 2026. 05. 10.

3 szobás családi házak ára Pécsett

Ebből az összehasonlításból megtudhatod, hogyan viszonyul a lakás ára a környékbeli családi házak átlagos árához. Ez nem azt jelenti, hogy ennyivel olcsóbb vagy drágább, mint amennyit a lakás ér, hanem hogy ennyivel tér el a környékbeli átlagtól.

Ennek a m² ára
Pécs m² ár
839 e Ft
801 e Ft -5%
Ennek az ára
Pécs átlagár
58.7 M Ft m Ft
76.9 m Ft 24%

Az ingatlan elhelyezkedése

Cím: Pécs

Eladó családi házak a környékről

Magyartelek, Újsor utca
Eladó családi ház

Magyartelek

16.5 M Ft
3 szoba
75 m²
Pécs, Kertváros, Táncsics Mihály utca
Eladó családi ház

Pécs

85 M Ft
6 szoba
185 m²
Pécs, Budai külváros, Fischer Béla utca
Eladó családi ház

Pécs

74 M Ft
3 szoba
140 m²
Mohács
Eladó családi ház

Mohács

13.5 M Ft
1 szoba
50 m²
Pécs
Eladó családi ház

Pécs

84.9 M Ft
5 szoba
107 m²
Egyházaskozár, Hatos Gusztáv utca
Eladó családi ház

Egyházaskozár

4.7 M Ft
3 szoba
79 m²
Geresdlak, Flórián utca
Eladó családi ház

Geresdlak

15 M Ft
2 szoba
130 m²
Pécs
Eladó családi ház

Pécs

110 M Ft
4 szoba
287 m²
Magyarhertelend, Bokréta utca
Eladó családi ház

Magyarhertelend

30.5 M Ft
3 + 3 szoba
102 m²
Pécs, Szabolcsfalu, Szabadságharc utca
Eladó családi ház

Pécs

58.99 M Ft
3 szoba
240 m²
Pécs
Eladó családi ház

Pécs

174 M Ft
8 szoba
245 m²
Bükkösd, Kossuth Lajos utca
Eladó családi ház

Bükkösd

16 M Ft
1 szoba
210 m²
Pécs
Eladó családi ház

Pécs

83 M Ft
3 szoba
100 m²
Pécs, Belváros, Városház köz
Eladó családi ház

Pécs

41.9 M Ft
3 szoba
56 m²
Pécs
Eladó családi ház

Pécs

83 M Ft
3 szoba
100 m²
Pécs
Eladó családi ház

Pécs

3.69 M Ft
2 szoba
26 m²
Görcsöny, Hársfa utca
Eladó családi ház

Görcsöny

249 M Ft
5 szoba
270 m²
Pécs, Szabolcsfalu, Ember Kálmán utca
Eladó családi ház

Pécs

15.5 M Ft
1 szoba
38 m²
Pécs
Eladó családi ház

Pécs

270 M Ft
5 szoba
350 m²
Pécs, Nagyárpád, Köves-földi út
Eladó családi ház

Pécs

95 M Ft
5 szoba
207 m²
Mohács, Szőlőhegy
Eladó családi ház

Mohács

32.99 M Ft
2 szoba
72 m²
Siklós
Eladó családi ház

Siklós

270 M Ft
8 szoba
600 m²
Versend
Eladó családi ház

Versend

75 M Ft
3 szoba
123 m²
Pécs
Eladó családi ház

Pécs

299 M Ft
4 szoba
126 m²

Falusi CSOK ingatlanok

Seregélyes
Eladó családi ház

Seregélyes

71.4 M Ft
3 szoba
120 m²
Táborfalva
Eladó családi ház

Táborfalva

34.9 M Ft
3 szoba
49 m²
Ostffyasszonyfa
Eladó családi ház

Ostffyasszonyfa

37.9 M Ft
5 szoba
494 m²
Szentmártonkáta
Eladó családi ház

Szentmártonkáta

59.99 M Ft
6 szoba
117 m²
Végegyháza
Eladó családi ház

Végegyháza

62.9 M Ft
4 + 1 szoba
150 m²
Sződ
Eladó családi ház

Sződ

102.9 M Ft
4 szoba
92 m²
Tihany
Eladó családi ház

Tihany

375 M Ft
6 szoba
208 m²
Hegyeshalom, Margaréta utca 12
Eladó téglalakás

Hegyeshalom

46.91 M Ft
2 szoba
43 m²