Pesti Házak

Eladó családi ház
Pákozd

+ 3 kép 1/6
99 800 000 Ft99.8 M Ft 1 073 118 Ft/m2
4 szoba
93 m2

Részletes adatok

Telekméret: 415 m2
Fűtés: Egyéb
Energetikai besorolás: Nem adta meg a hirdető

Az OTP Bank lakáshitel ajánlataFizetett hirdetés

+36 70 389
Horgos Tamás
City & Home ingatlan

Érdekel az OTP Bank kedvezményes lakáshitel ajánlata? *

* A kérdésre „Igen” válasz bejelölése esetén, az „Üzenet küldése” gombra kattintva kijelentem, hogy az OTP Bank Nyrt. Adatkezelési tájékoztatójának tartalmát megismertem és tudomásul vettem.

Eladó családi ház leírása

3%-os OTTHON START HITEL igényelhető CSOK Plusz igényelhető BABAVÁRÓ HITEL igényelhető

Pákozd csendes, zöldövezeti részén, 2 db modern, egyszintes családi ház épül.
A házak külön-külön és akár a teljes projekt egyben is megvásárolhatók.

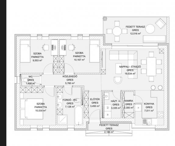
ELRENDEZÉS:
– tágas amerikai konyhás nappali – étkező
– 3 külön nyíló hálószoba
– fürdőszoba
– külön WC
– háztartási helyiség
– nappaliból nyíló 13 m²-es fedett, burkolt terasz

FŐBB JELLEMZŐK:
– Nettó 93 m², 4 szobás családi ház
– Saját, kb. 415 m² telek
– 13 m² fedett, burkolt terasz
– Hőszivattyús hűtés-fűtés H tarifás árammal
– Padlófűtés minden helyiségben
– 3 rétegű nyílászárók redőnnyel, szúnyoghálóval
– Porotherm 30 tégla + 15 cm grafitos EPS szigetelés
– Első osztályú hideg- és melegburkolatok, szaniterek választhatók
– Biztonsági bejárati ajtó
– Rendezett kert, térkövezett autóbeálló

MŰSZAKI TARTALOM:
– Monolit vasbeton alap, Porotherm falazat
– Fa födém, kerámia vagy betoncserép tető
– 30 cm tetőtéri szigetelés
– Korszerű hőszivattyú, fan-coil előkészítéssel
– Padlófűtés + törölközőszárítós radiátor a fürdőben
– Szennyvíz bekötve a közműhálózatba, csapadékvíz szikkasztás telken belül
– Gyengeáram, internet, riasztó előkészítés

PÉNZÜGYI LEHETŐSÉGEK:
– CSOK Plusz keretében finanszírozható
– akár 3% kamatozású hitel
– illetékmentesség feltételek mellett

ÜTEMEZÉS:
– Kivitelezés kezdete: 2025. október
– Várható átadás: 2027. első félév

LOKÁCIÓ:
Pákozd a Velencei-tó és Székesfehérvár között helyezkedik el, gyors autópályás kapcsolattal Budapestre.
Csendes, zöldövezeti lakókörnyezet, családoknak és pároknak ideális.

Az ingatlan megfelel a – CSOK Plusz – 3%-os Otthon Start Hitel – Babaváró Hitel feltételeinek – így kedvezményes hitel és támogatás igénybevételére is lehetőség van.

Kapcsolat:
Érdeklődj üzenetben vagy telefonon, és egyeztess személyes megtekintést
***City & Home Ingatlan Iroda***

Teljes körű ügyintézés szívvel-lélekkel:
– Díjmentes ingatlanérték-meghatározás
– Személyre szabott hiteltanácsadás
– Ügyvédi és jogi háttér biztosítva

Hirdetés feltöltve: 2025. 11. 12. Utoljára módosítva: 2025. 12. 03.

4 szobás családi házak ára Pákozdon

Ebből az összehasonlításból megtudhatod, hogyan viszonyul a lakás ára a környékbeli családi házak átlagos árához. Ez nem azt jelenti, hogy ennyivel olcsóbb vagy drágább, mint amennyit a lakás ér, hanem hogy ennyivel tér el a környékbeli átlagtól.

Ennek a m² ára
Pákozd m² ár
1073 e Ft
744 e Ft -44%
Ennek az ára
Pákozd átlagár
99.8 M Ft m Ft
97.5 m Ft -2%

Az ingatlan elhelyezkedése

Cím: Pákozd

Eladó családi házak a környékről

Eladó családi ház
Eladó családi ház

Pákozd

67.9 M Ft
2 szoba
85 m2
Eladó családi ház
Eladó családi ház

Sárbogárd, Tinódy utca

19.9 M Ft
3 szoba
75 m2
Eladó családi ház
Eladó családi ház

Pákozd

79.9 M Ft
3 szoba
100 m2
Eladó családi ház
Eladó családi ház

Pákozd

69.9 M Ft
3 szoba
105 m2
Eladó családi ház
Eladó családi ház

Vereb

49.9 M Ft
1 + 3 szoba
80 m2
Eladó családi ház
Eladó családi ház

Pusztaszabolcs

143.9 M Ft
4 szoba
149 m2
Eladó családi ház
Eladó családi ház

Kápolnásnyék

35 M Ft
2 szoba
74 m2
Eladó családi ház
Eladó családi ház

Velence

85.9 M Ft
4 szoba
103 m2
Eladó családi ház
Eladó családi ház

Velence

42.9 M Ft
1 szoba
40 m2
Eladó családi ház
Eladó családi ház

Gárdony

42 M Ft
2 szoba
63 m2
Eladó családi ház
Eladó családi ház

Pákozd

45.9 M Ft
2 szoba
100 m2
Eladó családi ház
Eladó családi ház

Pákozd

198.9 M Ft
1 + 3 szoba
236 m2
Eladó családi ház
Eladó családi ház

Szabadbattyán

357.518 M Ft
9 + 2 szoba
1053 m2
Eladó családi ház
Eladó családi ház

Pákozd

29.9 M Ft
3 szoba
52 m2
Eladó családi ház
Eladó családi ház

Pákozd

99.8 M Ft
2 + 2 szoba
118 m2
Eladó családi ház
Eladó családi ház

Pákozd

235 M Ft
1 + 4 szoba
230 m2
Eladó családi ház
Eladó családi ház

Pákozd

46.9 M Ft
3 szoba
100 m2
Eladó családi ház
Eladó családi ház

Baracska, Határ utca

74.9 M Ft
3 szoba
155 m2
Eladó családi ház
Eladó családi ház

Pákozd

37 M Ft
2 szoba
60 m2
Eladó családi ház
Eladó családi ház

Mór

110 M Ft
12 szoba
340 m2
Eladó családi ház
Eladó családi ház

Tordas

89 M Ft
3 szoba
75 m2
Eladó családi ház
Eladó családi ház

Pákozd

99.8 M Ft
2 + 2 szoba
132 m2
Eladó családi ház
Eladó családi ház

Iváncsa

39.9 M Ft
4 szoba
112 m2
Eladó családi ház
Eladó családi ház

Székesfehérvár, Belváros

60 M Ft
2 szoba
100 m2

Falusi CSOK ingatlanok

Eladó családi ház
Eladó családi ház

Nemesszentandrás

75 M Ft
4 szoba
164 m2
Eladó családi ház
Eladó családi ház

Nagyberki

39.9 M Ft
5 szoba
170 m2
Eladó családi ház
Eladó családi ház

Vasvár

64.9 M Ft
3 szoba
91 m2
Eladó téglalakás
Eladó téglalakás

Balatonszemes

86.8 M Ft
2 szoba
58 m2
Eladó családi ház
Eladó családi ház

Abaújszántó

19.99 M Ft
3 szoba
84 m2
Eladó családi ház
Eladó családi ház

Döbrönte

110 M Ft
2 + 2 szoba
183 m2
Eladó családi ház
Eladó családi ház

Bakonyszentkirály

99.99 M Ft
5 szoba
126 m2
Eladó családi ház
Eladó családi ház

Aszaló

16.49 M Ft
3 szoba
112 m2