Astora Olive Club House

Eladó családi ház
Pákozd

+ 17 kép 1/20
298 000 000 Ft298 M Ft 892 216 Ft/m2
7 + 2 szoba
334 m2
építés éve:2006

Részletes adatok

Állapot: Újszerű
Telekméret: 1154 m2
Fűtés: Gázkazán
Parkolás: Garázs
Energetikai besorolás: Nem adta meg a hirdető

Az OTP Bank lakáshitel ajánlataFizetett hirdetés

+36 20 583
Kruller Petra
referens

Érdekel az OTP Bank kedvezményes lakáshitel ajánlata? *

* A kérdésre „Igen” válasz bejelölése esetén, az „Üzenet küldése” gombra kattintva kijelentem, hogy az OTP Bank Nyrt. Adatkezelési tájékoztatójának tartalmát megismertem és tudomásul vettem.

Eladó családi ház leírása

Eladó körpanorámás, háromszintes családi ház Pákozdon, a Velencei-tó szomszédságában!

Vh-004651 Pákozdon, a Velencei-tó közvetlen közelében, a természet ölelésében, csendes, elszigetelt környezetben elhelyezkedő, összesen 334 m² alapterületű, háromszintes, körpanorámás családi ház 1154 m²-es saroktelken eladó. Az ingatlan 2 nappalival, 5 hálószobával és igényes belső kialakítással rendelkezik, mely a komfort és esztétikum harmóniáját kínálja.

Pákozd a Velencei-tó északi partján, a Velencei-hegység délkeleti lábánál található, festői szépségű település, amely kedvező földrajzi elhelyezkedésének köszönhetően könnyen elérhető az ország bármely pontjáról.
Budapest mindössze 49 km, Székesfehérvár 10 km, a Balaton (Siófok) pedig 50 km távolságra található, az M7-es autópályán keresztül gyorsan megközelíthetően.

Az impozáns családi ház a főútról könnyen megközelíthető, belterületi övezetben helyezkedik el. A közelben található buszmegálló, valamint minden fontos kereskedelmi és közintézményi szolgáltatás (óvoda, iskola, háziorvosi rendelő, fogorvos, posta, gyógyszertár, játszótér, élelmiszerbolt, hentes, gazdabolt stb.) 5–10 perc távolságon belül elérhető.
____________________

Műszaki jellemzők és felszereltség

A ház 2006-ban épült, Porotherm 38-as teherhordó falazattal és Porotherm 10-es válaszfalakkal, korszerű vízszigetelési rendszerrel, monolit vasbeton födémmel, kőzetgyapottal hőszigetelt tetőszerkezettel, amelyet Tondach kerámia cserépfedés borít.

A hőszigetelt, 3 rétegű üvegezésű nyílászárók, a magas minőségű hideg- és melegburkolatok, a dizájnos falpanelek, valamint a tetőtéri tölgy lazúros lambériaburkolat a természetes eleganciát és tartósságot képviselik.
Az egyedi beépített bútorok, a galériás belső térkialakítás, valamint a gondosan megtervezett belsőépítészeti elemek az otthonosság és funkcionalitás tökéletes összhangját biztosítják.

A ház komplex riasztórendszerrel, 3 fázisú ipari árammal (400V) és inverteres klímaberendezésekkel felszerelt.

A fűtést új, korszerű cirkó gázkazán biztosítja, radiátoros és padlófűtéses hőleadással, míg a nappaliban található zárt tűzterű kandalló hangulatos, kiegészítő fűtési megoldást kínál a téli hónapokban.
A melegvíz-ellátást egy új Ariston villanybojler szolgáltatja.

A rezsiköltségek rendkívül kedvezőek, hiszen a ház energiaellátását egy 10 kW teljesítményű, szaldós elszámolású napelemes rendszer is támogatja, jelentősen csökkentve az üzemeltetési költségeket és a környezeti terhelést.
____________________

Elosztás és belső terek
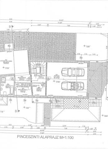
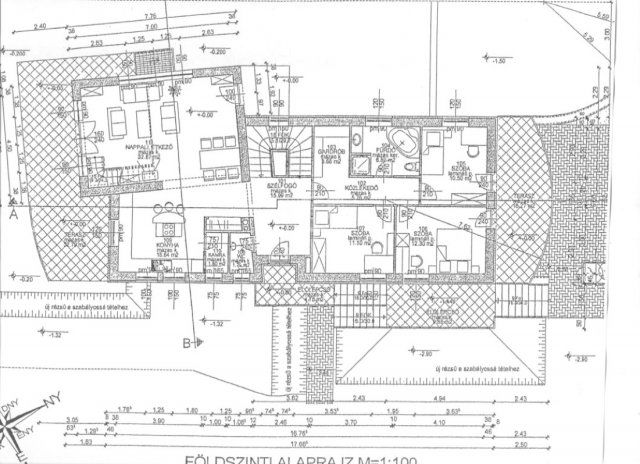
A ház teljes fűtött hasznos alapterülete 322 m², az alaprajz a képek között megtekinthető.

Pinceszint (123,5 m²):
A pinceszinten kétállásos, elektromos kapuval ellátott garázs, gardrób helyiség, kazánház, mosókonyha zuhanyzós fürdővel, valamint egy tágas fitneszterem került kialakításra.

Földszint (121 m²):
A földszintre kényelmes lépcsősoron keresztül juthatunk fel. Itt található egy tágas amerikai konyhás nappali-étkező, kamra, vendég-WC, előszoba, közlekedő, gardrób, káddal felszerelt fürdőszoba, valamint három különnyíló hálószoba.
Az étkezőből közvetlen kijárat nyílik a teraszra, és a legtöbb helyiség teraszkapcsolattal rendelkezik.

Tetőtér (63,7 m² + 22 m² erkély):
A tetőtérben egy tágas nappali, két hálószoba, gardrób és fürdőszoba kapott helyet. A szinthez kapcsolódik egy részben zárt, 22 m²-es panorámás erkély, ahonnan lenyűgöző kilátás nyílik a környező tájra és a Velencei-tó irányába.
____________________

Telek és külső tér

A 1154 m²-es, sarokelhelyezkedésű telek teljes egészében körbekerített, gondosan parkosított és rendezett.
A kert nagy része térkövezett, a zöldfelületek örökzöldekkel és dísznövényekkel beültetettek, valamint automata öntözőrendszer segíti a fenntartást.

A hátsó udvarban napos fekvésű medence és kerti zuhany található, ami tökéletes kikapcsolódási lehetőséget kínál a nyári hónapokban.
A gépkocsibeállás térkővel burkolt felületen és a garázsból közvetlenül is megoldott.
____________________

Ár és egyéb információk

Eladási irányár: 298 millió Ft / kb. 770 000 EUR (az aktuális árfolyamtól függően)

A vásárláshoz igénybe vehetők az aktuális családtámogatási konstrukciók: Otthon Start (fix 3%), CSOK, Babaváró, jelzáloghitel és egyéb otthonteremtési támogatások.

Irodánk díjmentes, személyre szabott hitelügyintézést biztosít, továbbá segítünk az adásvételi szerződés ügyvédi lebonyolításában, valamint energetikai tanúsítvány és értékbecslés elkészítésében is. ...TOVÁBBI, TÖBBEZRES INGATLAN KÍNÁLAT: www.gdn-ingatlan.hu - GDN azonosító: 389219

Hirdetés feltöltve: 2025. 11. 04. Utoljára módosítva: 2025. 11. 04.

Az ingatlan elhelyezkedése

Cím: Pákozd

Eladó családi házak a környékről

Eladó családi ház
Eladó családi ház

Kápolnásnyék

35 M Ft
2 szoba
74 m2
Eladó családi ház
Eladó családi ház

Baracska, Határ utca

74.9 M Ft
3 szoba
155 m2
Eladó családi ház
Eladó családi ház

Iváncsa

39.9 M Ft
4 szoba
112 m2
Eladó családi ház
Eladó családi ház

Pákozd

62.999 M Ft
6 szoba
125 m2
Eladó családi ház
Eladó családi ház

Pákozd

149.9 M Ft
4 szoba
169 m2
Eladó családi ház
Eladó családi ház

Pákozd

29.9 M Ft
3 szoba
52 m2
Eladó családi ház
Eladó családi ház

Kápolnásnyék, Bem utca

108.675 M Ft
5 szoba
136 m2
Eladó családi ház
Eladó családi ház

Kápolnásnyék, Bem utca

119.175 M Ft
5 szoba
156 m2
Eladó családi ház
Eladó családi ház

Székesfehérvár

69.9 M Ft
3 szoba
95 m2
Eladó családi ház
Eladó családi ház

Sárbogárd, Tinódy utca

19.9 M Ft
3 szoba
75 m2
Eladó családi ház
Eladó családi ház

Székesfehérvár

59 M Ft
3 szoba
100 m2
Eladó családi ház
Eladó családi ház

Mány

18.5 M Ft
3 szoba
70 m2
Eladó családi ház
Eladó családi ház

Lepsény, Róka sétány

64.9 M Ft
5 + 1 szoba
203 m2
Eladó családi ház
Eladó családi ház

Bakonycsernye

39 M Ft
3 szoba
350 m2
Eladó családi ház
Eladó családi ház

Pusztavám

22.9 M Ft
3 szoba
103 m2
Eladó családi ház
Eladó családi ház

Pákozd, Ibolya utca

99.77 M Ft
4 szoba
106 m2
Eladó családi ház
Eladó családi ház

Pákozd

67.9 M Ft
2 szoba
85 m2
Eladó családi ház
Eladó családi ház

Pusztaszabolcs

143.9 M Ft
4 szoba
149 m2
Eladó családi ház
Eladó családi ház

Mór

110 M Ft
12 szoba
340 m2
Eladó családi ház
Eladó családi ház

Tordas, Szabadság út

29.9 M Ft
2 szoba
63 m2
Eladó családi ház
Eladó családi ház

Pákozd

298 M Ft
7 szoba
310 m2
Eladó családi ház
Eladó családi ház

Pákozd

99.8 M Ft
2 + 2 szoba
132 m2
Eladó családi ház
Eladó családi ház

Pákozd

198.9 M Ft
1 + 3 szoba
236 m2
Eladó családi ház
Eladó családi ház

Pákozd

149.9 M Ft
4 szoba
169 m2

Falusi CSOK ingatlanok

Eladó családi ház
Eladó családi ház

Röszke

99.99 M Ft
4 szoba
122 m2
Eladó családi ház
Eladó családi ház

Balatonfenyves

430 M Ft
4 szoba
274 m2
Eladó családi ház
Eladó családi ház

Magyarszék

48.5 M Ft
3 + 1 szoba
86 m2
Eladó családi ház
Eladó családi ház

Annavölgy

44 M Ft
3 szoba
84 m2
Eladó családi ház
Eladó családi ház

Zalaapáti, Bocsota

25 M Ft
2 szoba
55 m2
Eladó családi ház
Eladó családi ház

Hunya

10.99 M Ft
3 szoba
80 m2
Eladó családi ház
Eladó családi ház

Enese

72.025 M Ft
4 szoba
75 m2
Eladó családi ház
Eladó családi ház

Homokbödöge

49.9 M Ft
4 + 1 szoba
167 m2