Seven Pearl

Eladó családi ház
Ostoros

94 500 000 Ft94.5 M Ft 984 375 Ft/m2
3 szoba
96 m2
építés éve:2023

Részletes adatok

Telekméret: 900 m2
Fűtés: Gázkazán
Energetikai besorolás: Nem adta meg a hirdető

Az OTP Bank lakáshitel ajánlataFizetett hirdetés

+36 30 929
Kovács Réka
OTP Ingatlanpont Gyöngyös

Érdekel az OTP Bank kedvezményes lakáshitel ajánlata? *

* A kérdésre „Igen” válasz bejelölése esetén, az „Üzenet küldése” gombra kattintva kijelentem, hogy az OTP Bank Nyrt. Adatkezelési tájékoztatójának tartalmát megismertem és tudomásul vettem.

Eladó családi ház leírása

OSTOROSON A TÓPART LAKÓPARKBAN ÚJ ÉPÍTÉSÚ 2 LAKÁSOS TÁRSASHÁZBAN CSALÁDI IKERHÁZ JELLEGŰ LAKÁS ELADÓ!!!! EBBEN AZ ÉVBEN MÉG IGÉNYELHETŐ
CSOK, CSOK + ÁLLAMILAG KAMATTÁMOGATOTT KEDVEZMÉNYES HITEL ÉS ILLETÉKKEDVEZMÉNY!!!!!!
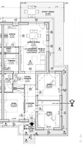
Eladásra kínálunk Ostoroson a TÓPART Lakóparkban új építésű családi ikerház jellegű két lakásos társasház lakását ! A lakás földszintes, Netto: 96,89 m2 alapterületű, hozzá tartozik egy 34 m2-es Terasz. A lakás helyiségei: nappali + étkező , konyha, 3 egész szoba, fürdőszoba, zuhanyzó wc, gardrob helyiség, előtér közlekedő, kamra.
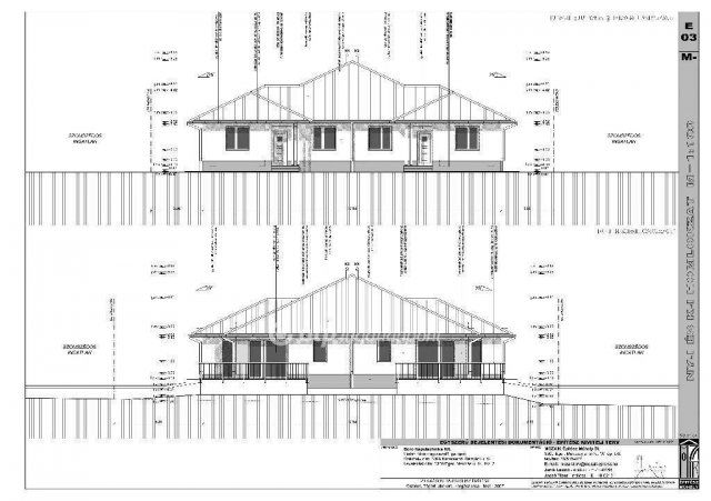
A lakás építése a Wienerberger mesterház minőségi elemeiből készül. Így az elkészült lakás AA épületenergetika minősítésű lesz. A társasházhoz tartozó külön önálló udvarrész tereprendezéssel, térkő burkolattal kerül átadásra. A lakás magas minőségű Wienerberger építőelemekből készül. Tégla falazattal, hőszigetelés + nemesvakolattal, kerámia
tetőcseréppel, műanyag hőszigetelt külső nyílászárókkal, a belső nyílászárók borovitip fenyő beltéri ajtókkal. A lakás fűtése központi lapradiátoros melynek működésér SaunierDuval SemiatekCondens 24 kombikondenzációs gázkazán biztosítja. A fürdőszobai beépített szaniterek szintén magas minőségű Mofém elemekből állnak. Ha felkeltettem érdeklődését a Műszaki leírásról és a Wienerberger mesterház építőelemeiről részletes műszaki leírást és tájékoztatást adunk! A lakás várható átadása 2024. augusztus 31. ÚJ építésű Ingatlanvásárláshoz kapcsolódó CSOK, CSOK + HITEL, Illetékkedvezmény még az idén 2023-ban igénybe vehető! Ha felkeltettem érdeklődését kérem hívjon bizalommal

Hirdetés feltöltve: 2025. 10. 02. Utoljára módosítva: 2025. 11. 02.

3 szobás családi házak ára Ostoroson

Ebből az összehasonlításból megtudhatod, hogyan viszonyul a lakás ára a környékbeli családi házak átlagos árához. Ez nem azt jelenti, hogy ennyivel olcsóbb vagy drágább, mint amennyit a lakás ér, hanem hogy ennyivel tér el a környékbeli átlagtól.

Ennek a m² ára
Ostoros m² ár
984 e Ft
837 e Ft -18%
Ennek az ára
Ostoros átlagár
94.5 M Ft m Ft
81.1 m Ft -17%

Az ingatlan elhelyezkedése

Cím: Ostoros

Eladó ingatlanok a környékről

Eladó családi ház
Eladó családi ház

Eger, Felsőváros

159 M Ft
5 szoba
205 m2
Eladó családi ház
Eladó családi ház

Ostoros

94.5 M Ft
3 szoba
96 m2
Eladó családi ház
Eladó családi ház

Bodony

26.9 M Ft
3 szoba
95 m2
Eladó ipari ingatlan
Eladó ipari ingatlan

Gyöngyös

1890 M Ft
40000 m²
9026 m2
Eladó családi ház
Eladó családi ház

Bükkszék

78.9 M Ft
2 + 1 szoba
160 m2
Eladó családi ház
Eladó családi ház

Tarnaörs

27 M Ft
3 szoba
201 m2
Eladó családi ház
Eladó családi ház

Ostoros

94.5 M Ft
3 szoba
96 m2
Eladó családi ház
Eladó családi ház

Andornaktálya

42 M Ft
4 szoba
116 m2
Eladó családi ház
Eladó családi ház

Mátraderecske

74 M Ft
4 szoba
200 m2
Eladó családi ház
Eladó családi ház

Bükkszék

69 M Ft
5 szoba
240 m2
Eladó családi ház
Eladó családi ház

Ostoros

25 M Ft
2 + 1 szoba
77 m2
Eladó családi ház
Eladó családi ház

Ostoros

94.5 M Ft
3 szoba
96 m2
Eladó családi ház
Eladó családi ház

Gyöngyös

28.5 M Ft
1 + 1 szoba
62 m2
Eladó családi ház
Eladó családi ház

Ostoros

52.9 M Ft
2 szoba
56 m2
Eladó családi ház
Eladó családi ház

Ostoros

52.9 M Ft
2 szoba
56 m2
Eladó családi ház
Eladó családi ház

Andornaktálya

28.5 M Ft
2 szoba
60 m2
Eladó családi ház
Eladó családi ház

Ostoros

99 M Ft
5 szoba
160 m2
Eladó családi ház
Eladó családi ház

Ostoros

94.5 M Ft
3 szoba
96 m2
Eladó családi ház
Eladó családi ház

Hatvan

36.9 M Ft
2 + 1 szoba
Eladó családi ház
Eladó családi ház

Ostoros

94.5 M Ft
3 szoba
96 m2
Eladó családi ház
Eladó családi ház

Ostoros

94.5 M Ft
3 szoba
96 m2
Eladó családi ház
Eladó családi ház

Ostoros

34.9 M Ft
5 szoba
160 m2
Eladó családi ház
Eladó családi ház

Hatvan

97.95 M Ft
5 + 2 szoba
253 m2
Eladó családi ház
Eladó családi ház

Ostoros

52.9 M Ft
2 szoba
56 m2

Falusi CSOK ingatlanok

Eladó családi ház
Eladó családi ház

Darnózseli

79.9 M Ft
4 szoba
104 m2
Eladó családi ház
Eladó családi ház

Nágocs

72.3 M Ft
4 + 1 szoba
170 m2
Eladó családi ház
Eladó családi ház

Sárisáp, Orgona utca

60 M Ft
4 szoba
145 m2
Eladó családi ház
Eladó családi ház

Törtel

39 M Ft
1 + 1 szoba
118 m2
Eladó családi ház
Eladó családi ház

Tápióbicske

38 M Ft
3 szoba
50 m2
Eladó családi ház
Eladó családi ház

Varsány

39.9 M Ft
6 szoba
160 m2
Eladó családi ház
Eladó családi ház

Iváncsa

73.9 M Ft
1 + 3 szoba
97 m2
Eladó családi ház
Eladó családi ház

Pálfiszeg

30.8 M Ft
4 szoba
76 m2