River Life

Eladó családi ház
Orosháza

+ 17 kép 1/20
25 900 000 Ft25.9 M Ft 340 789 Ft/m2
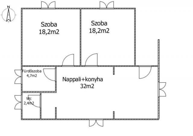
2 szoba
76 m2
építés éve:1980

Részletes adatok

Állapot: Felújított
Telekméret: 1519 m2
Fűtés: Elektromos
Energetikai besorolás: Nem adta meg a hirdető

Az OTP Bank lakáshitel ajánlataFizetett hirdetés

+36 30 732
Turcsán Árpád
Szentes OTP Ingatlanpont Iroda Petőfi utca 12.

Érdekel az OTP Bank kedvezményes lakáshitel ajánlata? *

* A kérdésre „Igen” válasz bejelölése esetén, az „Üzenet küldése” gombra kattintva kijelentem, hogy az OTP Bank Nyrt. Adatkezelési tájékoztatójának tartalmát megismertem és tudomásul vettem.

Eladó családi ház leírása

***Kizárólag az OTP Ingatlanpontnál!!***
Eladásra kínálok Békés vármegye harmadik legnagyobb településén, Orosházán egy teljesen felújított ingatlant.
Elosztása : 2 szoba, amerikai konyhás nappali, fürdőszoba, Wc.
Az elmúlt évben teljes tetőcsere, új villany vezetékelés, teljesen új nyílászárók és padozat lett cserélve. A ház kellemes levegőjét a hűtő-fűtő klímák, míg a melegvizet villanybojler biztosítja. Minden árammal működik, így a háromfázisú fogyasztás megoldott. Az épület mellett játszótér kényezteti a gyerekeket. Nagy kerti partikra is alkalmas az udvar, mely rendezett. Melléképületben nyári konyha, tároló, barkácsműhely, kinti Wc található. Külön garázs két autó számára. Nagy kert, frissen ültetett gyümölcsfákkal.

Irodáink Szentes, Petőfi utca 12. A buszmegálló felől, és Csongrád, Fő utca 54. szám alatt várja a személyes érdeklődőket.
Az OTP Bankcsoport teljes körű ügyintézéssel áll az eladók és a vevők rendelkezésére! A kínálatunkból választott ingatlan finanszírozásához kedvezményes hitel konstrukciókat kínálunk. Legújabb szolgáltatásként ajánlom minden kedves ügyfelem részére az OTP Bank által közvetített Babaváró, CSOK PLUSZ, vagy egyéb kölcsönök intézését. Az adásvételi szerződés megkötéséhez igény szerint megbízható ügyvédi közreműködést biztosítunk, és segítséget nyújtunk az adásvételhez kapcsolódó ügyek intézéséhez. Akár hétvégén is hívható vagyok! Amennyiben igényli, kérem küldjön sms-t és szívesen visszahívom!

Referencia szám: M290747-ZE

Hirdetés feltöltve: 2025. 11. 11. Utoljára módosítva: 2025. 12. 02.

2 szobás családi házak ára Orosházán

Ebből az összehasonlításból megtudhatod, hogyan viszonyul a lakás ára a környékbeli családi házak átlagos árához. Ez nem azt jelenti, hogy ennyivel olcsóbb vagy drágább, mint amennyit a lakás ér, hanem hogy ennyivel tér el a környékbeli átlagtól.

Ennek a m² ára
Orosháza m² ár
341 e Ft
212 e Ft -61%
Ennek az ára
Orosháza átlagár
25.9 M Ft m Ft
17 m Ft -53%

Az ingatlan elhelyezkedése

Cím: Orosháza

Eladó családi házak a környékről

Eladó családi ház
Eladó családi ház

Orosháza

21.5 M Ft
3 + 1 szoba
88 m2
Eladó családi ház
Eladó családi ház

Orosháza

22 M Ft
3 szoba
130 m2
Eladó családi ház
Eladó családi ház

Orosháza

21.5 M Ft
3 + 1 szoba
88 m2
Eladó családi ház
Eladó családi ház

Békéscsaba

35 M Ft
2 + 6 szoba
152 m2
Eladó családi ház
Eladó családi ház

Orosháza, Fő utca

4.9 M Ft
4 szoba
55 m2
Eladó családi ház
Eladó családi ház

Békéscsaba

68.4 M Ft
4 szoba
90 m2
Eladó családi ház
Eladó családi ház

Békéscsaba

45 M Ft
4 szoba
172 m2
Eladó családi ház
Eladó családi ház

Sarkad

8.7 M Ft
2 szoba
90 m2
Eladó családi ház
Eladó családi ház

Elek

6.9 M Ft
2 + 1 szoba
70 m2
Eladó családi ház
Eladó családi ház

Gyula, Vár utca

85.9 M Ft
4 szoba
180 m2
Eladó családi ház
Eladó családi ház

Orosháza

19.5 M Ft
3 szoba
126 m2
Eladó családi ház
Eladó családi ház

Doboz

7.5 M Ft
4 szoba
100 m2
Eladó családi ház
Eladó családi ház

Orosháza

25.9 M Ft
2 szoba
76 m2
Eladó családi ház
Eladó családi ház

Orosháza, Gyopárosi út

72 M Ft
3 szoba
185 m2
Eladó családi ház
Eladó családi ház

Orosháza

22 M Ft
4 szoba
130 m2
Eladó családi ház
Eladó családi ház

Békéscsaba

29.9 M Ft
1 + 3 szoba
74 m2
Eladó családi ház
Eladó családi ház

Doboz

5.8 M Ft
2 szoba
101 m2
Eladó családi ház
Eladó családi ház

Orosháza

1219.2 M Ft
10 szoba
770 m2
Eladó családi ház
Eladó családi ház

Orosháza

1219.2 M Ft
10 szoba
770 m2
Eladó családi ház
Eladó családi ház

Sarkad

15 M Ft
3 szoba
110 m2
Eladó családi ház
Eladó családi ház

Orosháza

1219.2 M Ft
10 szoba
770 m2
Eladó családi ház
Eladó családi ház

Orosháza

25.9 M Ft
2 szoba
76 m2
Eladó családi ház
Eladó családi ház

Szeghalom

12.9 M Ft
4 szoba
150 m2
Eladó családi ház
Eladó családi ház

Orosháza

79.9 M Ft
4 szoba
230 m2

Falusi CSOK ingatlanok

Eladó családi ház
Eladó családi ház

Bábolna

90.3 M Ft
5 szoba
100 m2
Eladó családi ház
Eladó családi ház

Pécsvárad

140 M Ft
2 szoba
79 m2
Eladó családi ház
Eladó családi ház

Törtel

18 M Ft
6 szoba
188 m2
Eladó családi ház
Eladó családi ház

Olaszfa

39.9 M Ft
4 szoba
96 m2
Eladó családi ház
Eladó családi ház

Pécsely, Szőlő Dülő

499 M Ft
4 + 2 szoba
183 m2
Eladó családi ház
Eladó családi ház

Porpác

24.9 M Ft
3 szoba
73 m2
Eladó családi ház
Eladó családi ház

Újlengyel

110 M Ft
4 szoba
121 m2
Eladó családi ház
Eladó családi ház

Kenyeri

39.9 M Ft
3 szoba
94 m2