Astora Olive Club House

Eladó családi ház
Őrbottyán

+ 3 kép 1/6
97 500 000 Ft97.5 M Ft 975 000 Ft/m2
4 szoba
100 m2
építés éve:2026

Részletes adatok

Telekméret: 480 m2
Fűtés: Egyéb
Közmű: Víz, Villany, Csatorna
Energetikai besorolás: Nem adta meg a hirdető

Az OTP Bank lakáshitel ajánlataFizetett hirdetés

+36 70 418
Kovács Péter
referens

Érdekel az OTP Bank kedvezményes lakáshitel ajánlata? *

* A kérdésre „Igen” válasz bejelölése esetén, az „Üzenet küldése” gombra kattintva kijelentem, hogy az OTP Bank Nyrt. Adatkezelési tájékoztatójának tartalmát megismertem és tudomásul vettem.

Eladó családi ház leírása

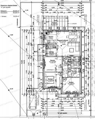
Őrbottyán, Vácbottyáni részén magas műszaki tartalommal épülő, nappali + 3 szobás elrendezésű, nettó 90.99 nm lakóterületű + 16.09 nm-es terasszal rendelkező családi házak eladók, kb. 480 nm-es saját telekrészekkel.

Portfóliónkban számos, különböző paraméterekkel rendelkező új építésű ingatlan megtalálható Őrbottyán területén és környékén, az azonnal beköltözhető ingatlanoktól kezdve, a még szabadon alakítható, saját igényre tervezhető lakásokig. Keressen bizalommal és segítünk megtalálni az elképzeléseinek megfelelő otthonát!

CÉGES ÉPÍTKEZÉS, a 2024-től aktuális állami támogatások valamint kedvezményes, kamattámogatott hitelek felvehetőek.
Az építő munkájára jellemző a megbízhatóság és igényesség, leinformálható, referencia házai megtekinthetők.

Az ingatlan homlokzati falai 30-as PTH téglából épülnek, 12 cm grafitos hőszigeteléssel.
Műanyag szerkezetű, hőszigetelő üvegezéssel ellátott nyílászárók kerülnek beépítésre, fehér színben.
A tető beton cseréppel lesz fedett.
A ház fűtése modern, hőszivattyús fűtésrendszerrel kerül kialakításra, a hő leadás padlófűtéssel fog történni.
Az ingatlanok H-tarifás órával és napelem kiállással kerülnek átadásra.
EÜ Gerendás födém - tehát pakolható padlástér.

Helyiséglista:
amerikai konyhás nappali (33.63 nm), 3 szoba (12.49 nm, 12.13 nm és 12 nm), fürdőszoba (4.84 nm), háztartási helyiség, zuhanyzóval (3.57 nm), külön WC (2.29 nm), előtér (3.35 nm), kamra (1.85 nm), közlekedő (4.84 nm), terasz (16.09 nm)

Parkolás: burkolt, udvari beállón kerül kialakításra.

A ház kulcsrakész állapotban kerül átadásra.

Akár 10 %-os foglalózás is lehetséges, a fennmaradó 90 % átadást megelőzően!

Lehetőség van egyedi elképzelések megvalósításra a ház belső elrendezésének tekintetében.

Köszönjük, hogy megtisztel bizalmával, és irodánkat választja új otthona kiválasztására. Tapasztalt és felkészült kollégáink segítenek Önnek akár a hétvégén is.

Ha esetleg még nem sikerült eladni ingatlanát, kedvezményes feltételekkel vállaljuk annak értékesítését!

Kulcsrakész ár: 97.500.000.- Ft

Azonosító: 4601

Hirdetés feltöltve: 2026. 01. 06. Utoljára módosítva: 2026. 02. 01.

4 szobás családi házak ára Őrbottyánban

Ebből az összehasonlításból megtudhatod, hogyan viszonyul a lakás ára a környékbeli családi házak átlagos árához. Ez nem azt jelenti, hogy ennyivel olcsóbb vagy drágább, mint amennyit a lakás ér, hanem hogy ennyivel tér el a környékbeli átlagtól.

Ennek a m² ára
Őrbottyán m² ár
975 e Ft
981 e Ft 1%
Ennek az ára
Őrbottyán átlagár
97.5 M Ft m Ft
100.8 m Ft 3%

Az ingatlan elhelyezkedése

Cím: Őrbottyán

Eladó családi házak a környékről

Eladó családi ház
Eladó családi ház

Őrbottyán

110 M Ft
4 szoba
106 m2
Eladó családi ház
Eladó családi ház

Őrbottyán, Gárdonyi Géza utca

79.5 M Ft
3 szoba
84 m2
Eladó családi ház
Eladó családi ház

Leányfalu

237 M Ft
9 szoba
800 m2
Eladó családi ház
Eladó családi ház

Tápiószentmárton

7.9 M Ft
2 + 1 szoba
86 m2
Eladó családi ház
Eladó családi ház

Őrbottyán, Fürdő utca

149 M Ft
5 szoba
120 m2
Eladó családi ház
Eladó családi ház

Őrbottyán

265 M Ft
2158 m²
450 m2
Eladó családi ház
Eladó családi ház

Őrbottyán

95.55 M Ft
4 szoba
84 m2
Eladó családi ház
Eladó családi ház

Budakeszi, Budakeszi kertváros

229 M Ft
10 szoba
450 m2
Eladó családi ház
Eladó családi ház

Tápiószele

18.9 M Ft
4 szoba
68 m2
Eladó családi ház
Eladó családi ház

Budakeszi

130 M Ft
5 szoba
30 m2
Eladó családi ház
Eladó családi ház

Kerepes

199 M Ft
6 szoba
360 m2
Eladó családi ház
Eladó családi ház

Őrbottyán

145 M Ft
4 szoba
210 m2
Eladó családi ház
Eladó családi ház

Érd

164.9 M Ft
5 szoba
192 m2
Eladó családi ház
Eladó családi ház

Zebegény

69.9 M Ft
6 szoba
245 m2
Eladó családi ház
Eladó családi ház

Őrbottyán

63 M Ft
4 szoba
157 m2
Eladó családi ház
Eladó családi ház

Tápiószentmárton

16.5 M Ft
3 szoba
50 m2
Eladó családi ház
Eladó családi ház

Budakeszi, Budakeszi kertváros

140 M Ft
2 szoba
55 m2
Eladó családi ház
Eladó családi ház

Őrbottyán

92.85 M Ft
4 szoba
84 m2
Eladó családi ház
Eladó családi ház

Kerepes

81.99 M Ft
5 szoba
102 m2
Eladó családi ház
Eladó családi ház

Őrbottyán

194.9 M Ft
7 szoba
231 m2
Eladó családi ház
Eladó családi ház

Tápiószentmárton

48 M Ft
5 szoba
180 m2
Eladó családi ház
Eladó családi ház

Nagykáta

130 M Ft
3 szoba
203 m2
Eladó családi ház
Eladó családi ház

Budakeszi, Makkosmária

100 M Ft
1 szoba
10 m2
Eladó családi ház
Eladó családi ház

Őrbottyán

149.9 M Ft
4 szoba
120 m2

Falusi CSOK ingatlanok

Eladó téglalakás
Eladó téglalakás

Pápakovácsi

36.5 M Ft
4 szoba
101 m2
Eladó családi ház
Eladó családi ház

Segesd

14.3 M Ft
3 szoba
100 m2
Eladó családi ház
Eladó családi ház

Porva

74.6 M Ft
3 szoba
115 m2
Eladó családi ház
Eladó családi ház

Kaposgyarmat

695 M Ft
6 szoba
610 m2
Eladó családi ház
Eladó családi ház

Szigetcsép, Szabadság utca

62 M Ft
4 szoba
120 m2
Eladó ikerház
Eladó ikerház

Balatonakali

129 M Ft
4 szoba
145 m2
Eladó családi ház
Eladó családi ház

Elek

85.9 M Ft
5 szoba
274 m2
Eladó családi ház
Eladó családi ház

Bakonybél

84.9 M Ft
5 szoba
211 m2