Astora Olive Club House

Eladó családi ház
Őrbottyán

1/1
85 000 000 Ft85 M Ft 825 243 Ft/m2
4 szoba
103 m²
építés éve:2026

Részletes adatok

Telekméret: 727 m2
Fűtés: Egyéb
Parkolás: Kocsibeálló
Közmű: Víz, Villany, Csatorna, Szélessáv, KábelTV
Energetikai besorolás: Nem adta meg a hirdető

Az OTP Bank lakáshitel ajánlataFizetett hirdetés

+36 30 948
Harai és Társai Kereskedelmi és Szolgáltató Betéti Társaság
Harai Ingatlaniroda

Érdekel az OTP Bank kedvezményes lakáshitel ajánlata? *

* A kérdésre „Igen” válasz bejelölése esetén, az „Üzenet küldése” gombra kattintva kijelentem, hogy az OTP Bank Nyrt. Adatkezelési tájékoztatójának tartalmát megismertem és tudomásul vettem.

Eladó családi ház leírása

Őrbottyánban jó közlekedés mellett most épülő ÖNÁLLÓ földszintes családi ház 727 m2-es telken eladó. Tervezett átadás: 2026. augusztus.
Műszaki: 30 cm vtg porotherm tégla falazat+12 cm vastag grafitos szigetelés.
10 cm vastag tégla válaszfalak
Műanyag nyílászárók fehér kivitelben, 5 légkamrás német profil, 3 rétegű üvegezéssel
Műanyag redőnyök szúnyoghálóval
Beton födém, járható, pakolható padlástér. Antracit cserép fedés. Horganyzott ereszcsatorna
Hőszivattyús fűtés, padlófűtéssel.
Födémszigetelés 20 cm vastag ásványi szálas
Riasztó előkészítés
Internet, kábel TV előkészítés
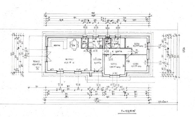
Helyiség lista:
Nappali-konyha-étkező 43,2 m2
szoba 10,19 m2
szoba 11,02 m2
szoba 12,60 m2
kamra 1,9 m2
fürdő 4,79 m2
WC 1,9 m2
előszoba 8,4 m2
Közlekedő 5,0 m2
Háztartási helyiség 5,3 m2
Terasz 18,81 m2
Céges építkezés! Hitelezhető.

Hirdetés feltöltve: 2025. 12. 03. Utoljára módosítva: 2026. 02. 08.

4 szobás családi házak ára Őrbottyánban

Ebből az összehasonlításból megtudhatod, hogyan viszonyul a lakás ára a környékbeli családi házak átlagos árához. Ez nem azt jelenti, hogy ennyivel olcsóbb vagy drágább, mint amennyit a lakás ér, hanem hogy ennyivel tér el a környékbeli átlagtól.

Ennek a m² ára
Őrbottyán m² ár
825 e Ft
961 e Ft 14%
Ennek az ára
Őrbottyán átlagár
85 M Ft m Ft
101.9 m Ft 17%

Az ingatlan elhelyezkedése

Cím: Őrbottyán

Eladó családi házak a környékről

Budakeszi, Budakeszi kertváros
Eladó családi ház

Budakeszi

229 M Ft
10 szoba
450 m²
Tápiószentmárton
Eladó családi ház

Tápiószentmárton

16.5 M Ft
3 szoba
50 m²
Zebegény
Eladó családi ház

Zebegény

69.9 M Ft
6 szoba
245 m²
Őrbottyán
Eladó családi ház

Őrbottyán

92.85 M Ft
4 szoba
84 m²
Kerepes
Eladó családi ház

Kerepes

199 M Ft
6 szoba
360 m²
Őrbottyán
Eladó családi ház

Őrbottyán

194.9 M Ft
7 szoba
231 m²
Kerepes
Eladó családi ház

Kerepes

81.99 M Ft
5 szoba
102 m²
Őrbottyán
Eladó családi ház

Őrbottyán

97.5 M Ft
4 szoba
94 m²
Budakeszi
Eladó családi ház

Budakeszi

130 M Ft
5 szoba
30 m²
Őrbottyán, Gárdonyi Géza utca
Eladó családi ház

Őrbottyán

79.5 M Ft
3 szoba
84 m²
Őrbottyán
Eladó családi ház

Őrbottyán

55 M Ft
2 szoba
55 m²
Őrbottyán
Eladó családi ház

Őrbottyán

98.9 M Ft
3 + 2 szoba
125 m²
Tápiószele
Eladó családi ház

Tápiószele

11.9 M Ft
3 szoba
62 m²
Őrbottyán
Eladó családi ház

Őrbottyán

97.5 M Ft
4 szoba
115 m²
Őrbottyán
Eladó családi ház

Őrbottyán

79.5 M Ft
3 szoba
113 m²
Budakeszi, Budakeszi kertváros
Eladó családi ház

Budakeszi

140 M Ft
2 szoba
55 m²
Őrbottyán
Eladó családi ház

Őrbottyán

154 M Ft
4 + 1 szoba
115 m²
Őrbottyán, Fürdő utca
Eladó családi ház

Őrbottyán

149 M Ft
5 szoba
120 m²
Nagykáta
Eladó családi ház

Nagykáta

130 M Ft
3 szoba
203 m²
Őrbottyán
Eladó családi ház

Őrbottyán

95.55 M Ft
4 szoba
84 m²
Tápiószentmárton
Eladó családi ház

Tápiószentmárton

48 M Ft
5 szoba
180 m²
Érd
Eladó családi ház

Érd

164.9 M Ft
5 szoba
192 m²
Érd, Érdliget - Kutyavár, Érd-liget
Eladó családi ház

Érd

230 M Ft
7 szoba
280 m²
Tápiógyörgye
Eladó családi ház

Tápiógyörgye

19.9 M Ft
3 szoba
65 m²

Falusi CSOK ingatlanok

Pálfa
Eladó családi ház

Pálfa

29.99 M Ft
3 szoba
90 m²
Galgamácsa, Kossuth L utca
Eladó családi ház

Galgamácsa

49.9 M Ft
3 szoba
93 m²
Románd
Eladó családi ház

Románd

49.9 M Ft
3 szoba
100 m²
Kenyeri
Eladó családi ház

Kenyeri

21.8 M Ft
2 szoba
75 m²
Szigetújfalu
Eladó családi ház

Szigetújfalu

19 M Ft
2 szoba
75 m²
Tápióbicske
Eladó családi ház

Tápióbicske

32.9 M Ft
3 szoba
106 m²
Simontornya
Eladó családi ház

Simontornya

26 M Ft
3 szoba
60 m²
Szalánta
Eladó családi ház

Szalánta

149.9 M Ft
10 szoba
301 m²