BAM Living

Eladó családi ház
Ócsárd

Figyelem!

Ez az ingatlan a 2019.07.01-től induló falusi CSOK által támogatott településen található

+ 3 kép 1/6
29 000 000 Ft29 M Ft 322 222 Ft/m2
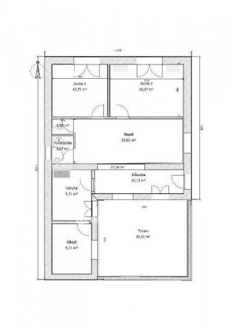
3 szoba
90 m2
építés éve:1955

Részletes adatok

Állapot: Felújítandó
Telekméret: 1439 m2
Fűtés: Egyéb
Energetikai besorolás: Nem adta meg a hirdető

Az OTP Bank lakáshitel ajánlataFizetett hirdetés

+36 70 941
Benedek Lili
referens

Érdekel az OTP Bank kedvezményes lakáshitel ajánlata? *

* A kérdésre „Igen” válasz bejelölése esetén, az „Üzenet küldése” gombra kattintva kijelentem, hogy az OTP Bank Nyrt. Adatkezelési tájékoztatójának tartalmát megismertem és tudomásul vettem.

Eladó családi ház leírása

Saját ízlésre alakítható ház eladó Ócsárdon!
Eladó egy felújítás alatt álló, 1950-es években épült családi ház Ócsárd központjában, Pécstől és Harkánytól is csak 18 km-re.
- A tulajdonos megkezdte a ház átgondolt és minőségi felújítását, amely jelenleg is folyamatban van, így Ön saját igényei szerint fejezheti be.
- A vakolatot leverték, a lábazatot rozsdamentes acéllemezzel vízszigetelték.
- Új tetőszerkezet és Bramac cserép, valamint új esőcsatorna került fel.
- Az előszoba új falazatot kapott (Porotherm).
- A terasz lábazata, a kocsibejáró 30 cm-es alappal, és az akadálymentes bejárat előkészítése már készen van.
- Elektromos kapunyitó előkészítése is kiépítve.
- Egyedi víztisztító rendszer került kialakításra (a helyi adottságoknak megfelelően).
Fúrt kút nagy vízhozammal, és 3 fázis van.
A munka oroszlánrésze elkészült, Ön már csak befejezheti a saját elképzelései szerint!
Igény esetén a ház mögötti 2 belterületi telek is megvásárolható.
Hívjon bizalommal, és nézze meg személyesen! (M308779)

Hirdetés feltöltve: 2026. 01. 06. Utoljára módosítva: 2026. 01. 06.

Az ingatlan elhelyezkedése

Cím: Ócsárd

Eladó ingatlanok a környékről

Eladó iroda
Eladó iroda

Pécs

634.893 M Ft
1269 m2
Eladó panellakás
Eladó panellakás

Pécs, Belváros, Enyezd út

40.5 M Ft
1 + 1 szoba
35 m2
Eladó panellakás
Eladó panellakás

Pécs, Szigeti külváros, József Attila utca

59.9 M Ft
3 szoba
64 m2
Eladó téglalakás
Eladó téglalakás

Pécs, Megyer, Uitz Béla u

41.5 M Ft
1 + 1 szoba
39 m2
Eladó családi ház
Eladó családi ház

Magyarbóly

15.99 M Ft
4 szoba
110 m2
Eladó családi ház
Eladó családi ház

Pécs, Kertváros, Táncsics Mihály utca

74.9 M Ft
6 szoba
185 m2
Eladó téglalakás
Eladó téglalakás

Pécs

118.9 M Ft
4 szoba
96 m2
Eladó családi ház
Eladó családi ház

Csertő

1031.75 M Ft
1 szoba
2250 m2
Eladó családi ház
Eladó családi ház

Mohács

50 M Ft
4 szoba
120 m2
Eladó családi ház
Eladó családi ház

Mohács

25 M Ft
2 szoba
72 m2
Eladó családi ház
Eladó családi ház

Pécs

299 M Ft
5 szoba
350 m2
Eladó családi ház
Eladó családi ház

Pécs

125 M Ft
4 + 2 szoba
250 m2
Eladó családi ház
Eladó családi ház

Diósviszló

13.5 M Ft
2 + 1 szoba
84 m2
Eladó téglalakás
Eladó téglalakás

Pécs, Pécsbánya, Lahti utca

52 M Ft
2 szoba
53 m2
Eladó panellakás
Eladó panellakás

Pécs

48 M Ft
2 + 1 szoba
64 m2
Eladó családi ház
Eladó családi ház

Pécs, Ispitaalja, Bajcsy-Zsilinszky Endre utca

26.5 M Ft
1 szoba
44 m2
Eladó családi ház
Eladó családi ház

Ócsárd

29 M Ft
3 szoba
90 m2
Eladó családi ház
Eladó családi ház

Mohács

25 M Ft
4 szoba
120 m2
Eladó családi ház
Eladó családi ház

Pécs

108.9 M Ft
4 szoba
100 m2
Eladó téglalakás
Eladó téglalakás

Pécs, Budai külváros, Mécsvirág utca

59.9 M Ft
3 szoba
76 m2
Eladó panellakás
Eladó panellakás

Pécs

44.4 M Ft
2 szoba
54 m2
Eladó családi ház
Eladó családi ház

Pécs, Deindol, Nagydeindoli

5.9 M Ft
902 m2
Eladó családi ház
Eladó családi ház

Pécs

104.9 M Ft
4 szoba
100 m2
Eladó családi ház
Eladó családi ház

Pellérd

84.9 M Ft
3 + 2 szoba
170 m2

Falusi CSOK ingatlanok

Eladó családi ház
Eladó családi ház

Palkonya

137 M Ft
6 szoba
160 m2
Eladó családi ház
Eladó családi ház

Dunafalva

66 M Ft
3 szoba
116 m2
Eladó családi ház
Eladó családi ház

Biharkeresztes

20.5 M Ft
1 szoba
32 m2
Eladó téglalakás
Eladó téglalakás

Hegyeshalom

36.82 M Ft
1 szoba
32 m2
Eladó családi ház
Eladó családi ház

Gönyű

111.951 M Ft
4 szoba
105 m2
Eladó családi ház
Eladó családi ház

Halimba

59.9 M Ft
6 szoba
182 m2
Eladó családi ház
Eladó családi ház

Bakonya

38.5 M Ft
2 szoba
75 m2
Eladó családi ház
Eladó családi ház

Porva

74.6 M Ft
3 szoba
115 m2

Falusi CSOK ingatlanok

Eladó panellakás
Eladó panellakás

Pétfürdő

49.9 M Ft
3 szoba
71 m2
Eladó családi ház
Eladó családi ház

Vásárosdombó

14.99 M Ft
2 szoba
69 m2
Eladó családi ház
Eladó családi ház

Sellye

14.9 M Ft
4 szoba
135 m2
Eladó családi ház
Eladó családi ház

Magyarpolány

90 M Ft
2 szoba
70 m2
Eladó családi ház
Eladó családi ház

Bakonyszentkirály

99.99 M Ft
5 szoba
126 m2
Eladó családi ház
Eladó családi ház

Somlóvásárhely

39.8 M Ft
1 szoba
78 m2
Eladó családi ház
Eladó családi ház

Biharkeresztes

23 M Ft
2 + 1 szoba
72 m2
Eladó családi ház
Eladó családi ház

Murony

19.9 M Ft
3 szoba
94 m2