River Life

Eladó családi ház
Ócsárd

Figyelem!

Ez az ingatlan a 2019.07.01-től induló falusi CSOK által támogatott településen található

+ 3 kép 1/6
29 000 000 Ft29 M Ft 322 222 Ft/m2
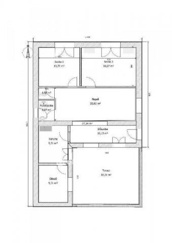
3 szoba
90 m2
építés éve:1955

Részletes adatok

Állapot: Felújítandó
Telekméret: 1439 m2
Fűtés: Egyéb
Energetikai besorolás: Nem adta meg a hirdető

Az OTP Bank lakáshitel ajánlataFizetett hirdetés

+36 30 276
Maratné Mészáros Edit
OTPIP - Pécs, Rákóczi út 19.

Érdekel az OTP Bank kedvezményes lakáshitel ajánlata? *

* A kérdésre „Igen” válasz bejelölése esetén, az „Üzenet küldése” gombra kattintva kijelentem, hogy az OTP Bank Nyrt. Adatkezelési tájékoztatójának tartalmát megismertem és tudomásul vettem.

Eladó családi ház leírása

Saját ízlésre alakítható ház eladó Ócsárdon!
Eladó egy felújítás alatt álló, 1950-es években épült családi ház Ócsárd központjában, Pécstől és Harkánytól is csak 18 km-re.
- A tulajdonos megkezdte a ház átgondolt és minőségi felújítását, amely jelenleg is folyamatban van, így Ön saját igényei szerint fejezheti be.
- A vakolatot leverték, a lábazatot rozsdamentes acéllemezzel vízszigetelték.
- Új tetőszerkezet és Bramac cserép, valamint új esőcsatorna került fel.
- Az előszoba új falazatot kapott (Porotherm).
- A terasz lábazata, a kocsibejáró 30 cm-es alappal, és az akadálymentes bejárat előkészítése már készen van.
- Elektromos kapunyitó előkészítése is kiépítve.
- Egyedi víztisztító rendszer került kialakításra (a helyi adottságoknak megfelelően).
Fúrt kút nagy vízhozammal, és 3 fázis van.
A munka oroszlánrésze elkészült, Ön már csak befejezheti a saját elképzelései szerint!
Igény esetén a ház mögötti 2 belterületi telek is megvásárolható.
Hívjon bizalommal, és nézze meg személyesen! (M308779)

Referencia szám: M308779-ZE

Hirdetés feltöltve: 2025. 10. 10. Utoljára módosítva: 2025. 11. 02.

Az ingatlan elhelyezkedése

Cím: Ócsárd

Eladó ingatlanok a környékről

Eladó téglalakás
Eladó téglalakás

Pécs

51.5 M Ft
2 szoba
52 m2
Eladó családi ház
Eladó családi ház

Pécs

170 M Ft
1 szoba
300 m2
Eladó családi ház
Eladó családi ház

Magyarbóly

15.99 M Ft
4 szoba
110 m2
Eladó családi ház
Eladó családi ház

Villány

15.9 M Ft
6 + 1 szoba
220 m2
Eladó családi ház
Eladó családi ház

Pécs

169.9 M Ft
5 + 2 szoba
386 m2
Eladó családi ház
Eladó családi ház

Pécs

169.9 M Ft
5 + 2 szoba
386 m2
Eladó családi ház
Eladó családi ház

Görcsöny

79.9 M Ft
3 + 2 szoba
100 m2
Eladó családi ház
Eladó családi ház

Tormás

15.2 M Ft
3 szoba
110 m2
Eladó téglalakás
Eladó téglalakás

Pécs, Ispitaalja, János utca

34.5 M Ft
1 szoba
35 m2
Eladó családi ház
Eladó családi ház

Versend

15.5 M Ft
5 szoba
140 m2
Eladó családi ház
Eladó családi ház

Pécs

299 M Ft
5 szoba
350 m2
Eladó családi ház
Eladó családi ház

Egerág

60 M Ft
4 szoba
95 m2
Eladó téglalakás
Eladó téglalakás

Harkány, Hársfa tér

29.99 M Ft
1 szoba
36 m2
Eladó téglalakás
Eladó téglalakás

Harkány

21.9 M Ft
1 szoba
26 m2
Eladó családi ház
Eladó családi ház

Kozármisleny

134.9 M Ft
6 szoba
225 m2
Eladó családi ház
Eladó családi ház

Pécs, Deindol, Nagydeindoli

5.9 M Ft
902 m2
Eladó családi ház
Eladó családi ház

Siklós

270 M Ft
8 szoba
600 m2
Eladó téglalakás
Eladó téglalakás

Pécs

41.123 M Ft
1 szoba
34 m2
Eladó családi ház
Eladó családi ház

Pécs, Kertváros, Táncsics Mihály utca

74.9 M Ft
6 szoba
185 m2
Eladó családi ház
Eladó családi ház

Ócsárd

29 M Ft
2 szoba
90 m2
Eladó családi ház
Eladó családi ház

Pécs

84.9 M Ft
6 szoba
193 m2
Eladó családi ház
Eladó családi ház

Pécs, Szabolcsfalu, Szabadságharc utca

58.99 M Ft
3 szoba
240 m2
Eladó családi ház
Eladó családi ház

Versend

21.5 M Ft
4 szoba
128 m2
Eladó családi ház
Eladó családi ház

Pécsudvard

44.9 M Ft
2 szoba
55 m2

Falusi CSOK ingatlanok

Eladó családi ház
Eladó családi ház

Rábapaty

110 M Ft
5 szoba
132 m2
Eladó családi ház
Eladó családi ház

Tiszaroff

12.9 M Ft
3 szoba
87 m2
Eladó családi ház
Eladó családi ház

Vasszécseny, Szövetkezet

29.9 M Ft
2 + 1 szoba
85 m2
Eladó családi ház
Eladó családi ház

Kondorfa, Fővég utca

24.9 M Ft
3 szoba
102 m2
Eladó családi ház
Eladó családi ház

Törtel

25.9 M Ft
5 szoba
95 m2
Eladó családi ház
Eladó családi ház

Fertőszentmiklós

98.5 M Ft
4 szoba
82 m2
Eladó családi ház
Eladó családi ház

Tabdi

95 M Ft
45 szoba
1490 m2
Eladó családi ház
Eladó családi ház

Kondorfa

71 M Ft
2 szoba
82 m2

Falusi CSOK ingatlanok

Eladó családi ház
Eladó családi ház

Jakabszállás

69.99 M Ft
1 + 4 szoba
91 m2
Eladó családi ház
Eladó családi ház

Sellye

14.9 M Ft
4 szoba
135 m2
Eladó családi ház
Eladó családi ház

Tiszaroff

13.9 M Ft
2 szoba
81 m2
Eladó családi ház
Eladó családi ház

Enese

82.9 M Ft
4 szoba
90 m2
Eladó családi ház
Eladó családi ház

Nagykarácsony

34.9 M Ft
3 szoba
112 m2
Eladó családi ház
Eladó családi ház

Fertőd

189.9 M Ft
4 szoba
175 m2
Eladó családi ház
Eladó családi ház

Ölbő

13.9 M Ft
2 szoba
68 m2
Eladó családi ház
Eladó családi ház

Tiszaroff

12.5 M Ft
2 szoba
63 m2