Astora Olive Club House

Eladó családi ház
Ócsa

+ 3 kép 1/6
94 900 000 Ft94.9 M Ft 958 586 Ft/m2
4 szoba
99 m²
építés éve:2026

Részletes adatok

Telekméret: 500 m2
Fűtés: Egyéb
Energetikai besorolás: Nem adta meg a hirdető

Az OTP Bank lakáshitel ajánlataFizetett hirdetés

3629769717
Dévai Éva
referens

Érdekel az OTP Bank kedvezményes lakáshitel ajánlata? *

* A kérdésre „Igen” válasz bejelölése esetén, az „Üzenet küldése” gombra kattintva kijelentem, hogy az OTP Bank Nyrt. Adatkezelési tájékoztatójának tartalmát megismertem és tudomásul vettem.

Eladó családi ház leírása

Eladó új építésű önálló családi ház Ócsán!

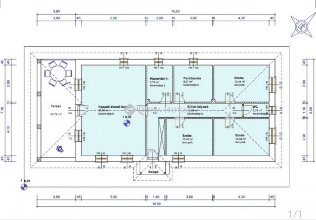
Ócsán kínálunk megvételre egy 99,96 négyzetméteres, új építésű önálló családi házat, melynek átgondolt belső elrendezése három külön nyíló szobából, fürdőszobából, külön WC-ből, háztartási helyiségből, valamint amerikai konyhás nappaliból áll, ahonnan közvetlen kijárat nyílik egy 20 négyzetméteres teraszra.

Az épület beton alapra, Porotherm 30-as téglából épül, fa födémmel.

A külső falakon 15 cm vastag hőszigetelés kerül kialakításra, a padlóban 10 cm lépésálló hőszigeteléssel, míg a födémen 25 cm vastag szigetelés biztosítja az energiatakarékos működést.

A fűtést korszerű hőszivattyús rendszer látja el padlófűtéssel, a nappaliban pedig egy klíma is felhelyezésre kerül.

Az ingatlanban gáz nem kerül kialakításra.

A 500 négyzetméteres telken kocsibeálló is helyet kap, a homlokzat és egyes külső elemek színe még választható, legyen szó modern antracit megjelenésről vagy mediterrán stílusú kialakításról.

A ház várható átadása 2026 2. negyedévének végén, illetve a 3. negyedév elején történik, így jelenleg még lehetőség van az ingatlan belső kialakítását és egyes részleteit a saját igények szerint formálni.

A burkolatok (hideg/meleg): 7000 Ft.-/ nm-ig választhatóak. (További árinformációk a műszaki tartalomban érhetők el.)

Ez az ingatlan ideális választás mindazok számára, akik egy új, korszerű, energiatakarékos otthont keresnek nyugodt környezetben, Ócsán.

Az energetikai tanúsítvány készítése folyamatban van, amint rendelkezésre áll, úgy azzal a hirdetés frissítésre kerül.

Érd: Dévai Éva, tel: +36303506820, e-mail: devai.eva@dh.hu

Referencia szám: HZ045815-ZE

Hirdetés feltöltve: 2026. 03. 20. Utoljára módosítva: 2026. 05. 10.

4 szobás családi házak ára Ócsán

Ebből az összehasonlításból megtudhatod, hogyan viszonyul a lakás ára a környékbeli családi házak átlagos árához. Ez nem azt jelenti, hogy ennyivel olcsóbb vagy drágább, mint amennyit a lakás ér, hanem hogy ennyivel tér el a környékbeli átlagtól.

Ennek a m² ára
Ócsa m² ár
959 e Ft
806 e Ft -19%
Ennek az ára
Ócsa átlagár
94.9 M Ft m Ft
99.9 m Ft 5%

Az ingatlan elhelyezkedése

Cím: Ócsa

Eladó családi házak a környékről

Nagykáta
Eladó családi ház

Nagykáta

130 M Ft
3 szoba
203 m²
Érd, Érdliget - Kutyavár, Érd-liget
Eladó családi ház

Érd

230 M Ft
7 szoba
280 m²
Ócsa, Ócsa központban
Eladó családi ház

Ócsa

69.9 M Ft
3 szoba
88 m²
Zebegény
Eladó családi ház

Zebegény

69.9 M Ft
6 szoba
245 m²
Ócsa
Eladó családi ház

Ócsa

65 M Ft
3 + 1 szoba
136 m²
Tápiószőlős
Eladó családi ház

Tápiószőlős

34.9 M Ft
5 szoba
210 m²
Ócsa
Eladó családi ház

Ócsa

74.9 M Ft
4 + 2 szoba
160 m²
Tápiószentmárton
Eladó családi ház

Tápiószentmárton

7.9 M Ft
2 + 1 szoba
86 m²
Őrbottyán
Eladó családi ház

Őrbottyán

154 M Ft
4 + 1 szoba
115 m²
Budakeszi
Eladó családi ház

Budakeszi

130 M Ft
5 szoba
30 m²
Ócsa
Eladó családi ház

Ócsa

149.5 M Ft
3 + 1 szoba
126 m²
Tápiószentmárton
Eladó családi ház

Tápiószentmárton

48 M Ft
5 szoba
180 m²
Érd
Eladó családi ház

Érd

164.9 M Ft
5 szoba
192 m²
Ócsa
Eladó családi ház

Ócsa

94.9 M Ft
4 szoba
99 m²
Dunakeszi
Eladó családi ház

Dunakeszi

250 M Ft
4 szoba
180 m²
Tápiógyörgye
Eladó családi ház

Tápiógyörgye

19.9 M Ft
3 szoba
65 m²
Ócsa, Pipacs utca 17
Eladó családi ház

Ócsa

79.9 M Ft
2 + 2 szoba
115 m²
Ócsa
Eladó családi ház

Ócsa

74.9 M Ft
7 szoba
100 m²
Ócsa
Eladó családi ház

Ócsa

200 M Ft
4 szoba
189 m²
Ócsa
Eladó családi ház

Ócsa

93 M Ft
5 szoba
175 m²
Ócsa, Rózsa utca
Eladó családi ház

Ócsa

83 M Ft
4 szoba
180 m²
Ócsa
Eladó családi ház

Ócsa

90 M Ft
6 szoba
150 m²
Tápiószele
Eladó családi ház

Tápiószele

11.9 M Ft
3 szoba
62 m²
Ócsa
Eladó családi ház

Ócsa

74.9 M Ft
7 szoba
100 m²

Falusi CSOK ingatlanok

Érpatak
Eladó családi ház

Érpatak

35 M Ft
4 szoba
160 m²
Bagod
Eladó családi ház

Bagod

52 M Ft
2 + 2 szoba
112 m²
Balatonkenese, Széchenyi utca
Eladó téglalakás

Balatonkenese

129.9 M Ft
3 szoba
83 m²
Mezőszilas
Eladó családi ház

Mezőszilas

24.9 M Ft
3 szoba
175 m²
Himesháza
Eladó családi ház

Himesháza

30 M Ft
3 szoba
92 m²
Kunadacs
Eladó családi ház

Kunadacs

80 M Ft
4 szoba
148 m²
Balatonudvari
Eladó családi ház

Balatonudvari

230 M Ft
9 szoba
260 m²
Szabadbattyán
Eladó családi ház

Szabadbattyán

139.9 M Ft
4 szoba
201 m²