NapForrás 20 - Buda

Eladó családi ház
Ócsa

+ 2 kép 1/5
102 500 000 Ft102.5 M Ft 1 126 374 Ft/m2
5 szoba
91 m²
építés éve:2026

Részletes adatok

Telekméret: 633 m2
Fűtés: Egyéb
Energetikai besorolás: C

Az OTP Bank lakáshitel ajánlataFizetett hirdetés

+36 1 690
Hársmán Mónika Orsolya
Duna House Kispest

Érdekel az OTP Bank kedvezményes lakáshitel ajánlata? *

* A kérdésre „Igen” válasz bejelölése esetén, az „Üzenet küldése” gombra kattintva kijelentem, hogy az OTP Bank Nyrt. Adatkezelési tájékoztatójának tartalmát megismertem és tudomásul vettem.

Eladó családi ház leírása

Új építésű ingatlanok Ócsa központi részén!

A kiváló lokációban sorra kerülő beruházás 1 ikerházat (2 lakás) és 1 különálló házat foglal magában.

A telek teljeskörűen közművesített, csatornarendszerre rákötött.

Az önállócsaládi házhoz tartozik fedett terasz, kocsibeálló.

Az ingatlanok 30% önerővel leköthetők.

Várható átadás: 2026

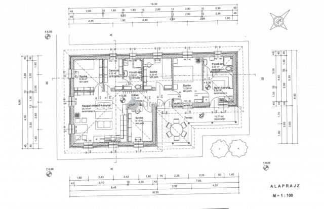
A ház fűtött hasznos lapterülete 91,37 m2, melyhez 16,27m2 fedett terasz tartozik. A belső elrendezés, válaszfalak még változtathatók az egyedi igényekhez igazodva. Jelenleg 4 hálószoba ,1 nappali-étkező, 2 fürdőszoba, 1 háztartási helység és egy nyári konyha tartozik. A belső elrendezés változtatható. Aki a tágasabb tereket kedveli, annak készült egy 3 szoba+ nappaliból álló terv is. A tetőszerkezetet úgy készítették, hogy ez a terv is megvalósulhasson.

Az önálló családi ház belső útról közelíthető meg!

ÁLTALÁNOS MŰSZAKI LEÍRÁS :

A magánút hat méter szélességben murvázva lesz, olyan terepszint magassággal, mely lehetővé teszi a későbbi térkövezési munkákat.

A magánút és az eladásra kínált telkek közé 3D kerítés kerül, 1 gépkocsi kapuval és 1 gyalogos kapuval.

Az épület önálló közmű méréseket fog kapni (víz, csatorna, villamos megtáplálás)

AZ ÉPÜLET ÁLTALÁNOS MŰSZAKI LEÍRÁSA:

Lakás tervezett helyiségkiosztása:

1. nappali-étkező-konyha 25,19 m2 kerámia

2. hálószoba 12,30 m2 laminált parketta

3. hálószoba 8,39 m2 laminált parketta

4. hálószoba 8,33 m2 laminált parketta

5. hálószoba 8,13 m2 laminált parketta

6. fürdő-WC 5,39 m2 kerámia

7. fürdő-WC 4,05 m2 kerámia

8. előtér 5,72 m2 kerámia

9. nyárikonyha 8,54 m2 kerámia

10. gardrób 5,33 m2 kerámia összesen: 91,37 m2

11. fedett terasz 16,27 m2 kőporcelán

Az épület vasbeton sávalapra épített Porotherm 30 N+F tégla falazattal készült, kerámia áthidalókkal és adott pontokon a statikai terv szerint vasbeton gerendák kialakításával.

A főfalakat vasbeton koszorú fogja össze.

A válaszfalak 10-es ytong téglából készülnek.

A tetőszerkezet úgynevezett szeglemezes szerkezet lesz, mely lehetővé teszi a válaszfalak tervtől eltérő építését.

A tetőszerkezetre fólia, impregnált tetőléc, léc és végül betoncserép kerül.

A bádogos szerkezetek strukturált alumíniumból készültek.

Az épület 15 cm-es hőszigetelő rendszerrel lesz hőszigetelve.

A nyílászárók kívül belül fehér színben gyártott 3 rétegű üvegezéssel készült szerkezetek lesznek.

A 90×150-es ablakok műanyag redőnnyel (falsík alatti) és rovarhálóval lesznek szerelve.

Belső ajtók Eurowood Dekor Extra kivitelből kerülnek beépítésre a Jafholz kínálatából.

Az lakás mennyezete gipszkarton

A mennyezet terv szerinti 25 cm hőszigetelést kap a padlástér felől.

A padlástérre az épületben elhelyezett lenyitható lépcsőn keresztül lehet feljutni, a padlástér átadáskor csak részben lesz alkalmas tárolásra.

Külön kérésre a padlásteret járhatóvá teszik.

VILLAMOS HÁLÓZAT:

Az épület a magánút elején jobb oldalon elhelyezett mérőhelyekről kapnak betáplálást.

Az épület 1×32 A-es megtáplálást kap, valamint 3x20A H tarifás mérést a hőszivattyú és az oldalfali fűtő-hűtő klímaberendezések megtáplálásához.

Az energia elosztását a lakáson belül egy-egy a bejáratnál elhelyezett kismegszakító tábla biztosítja.

A gyalogos bejárókhoz csengőt és kaputelefon előkészítést biztosítunk (kábelezés, védőcsövezés), de magukat a készülékeket nem.

Az erősáramú villamos hálózat kiépítését az alábbi berendezések részere biztosítjuk:

világítási hálózat (5 áramkör, legrand Valena kapcsolókkal, oldalfali és mennyezeti lámpa kiállásokkal)

dugaszoló aljzatok (5 áramkör, 35 szerelvény, általános aljzatok, mosógép aljzat, mosogatógép aljzat, TV aljzat stb.)

gépészeti berendezések megtáplálása (fűtést vezérlő elektronika, 5 db oldalfali split klíma).

A gyengeáramú hálózat kiépítését az alábbi rendszerek részére biztosítjuk:

4 db informatikai RJ45-ös aljzat

1 db TV kiállás koax kábellel

Az internet elérését biztosító külső kábel részére védőcsövet fektettünk le a villamos fogyasztásmérők szekrényeitől az előtérben elhelyezésre kerülő kismegszakító tábláig, illetve a fogyasztásmérőktől a közterületen található első villanyoszlopig.

ÉPÜLETGÉPÉSZET:

A lakás ívóvízzel, szennyvízcsatornával, lesz ellátva.

A csapadékvíz a föld alatti védőcsöveken a kertbe lesz elvezetve.

Ívóvízhálózat:

A lakás vízórája az utcafronton elhelyezett vízóra aknában lesz elhelyezve.

Az aknától a lakásokig 25-ös műanyag (kpe) vezetékkel álltunk el.

A hálózatba az alábbi elemek kerülnek elhelyezésre:

szűrővel ellátott nyomáscsökkentő

ötrétegű csövek préselt idomokkal

fittingek

Fűtés:

A lakás alapfűtését helyiségenként vezérlehető padlófűtés biztosítja, mely rendszereket levegő-víz hőszivattyú látja el fűtővízzel.

Melegvíz készítés:

A lakások melegvíz ellátását a hőszivattyú biztosítja

Szaniter berendezések:

csapok maximálisan nettó 12.000 Ft/db-ig a MOFÉM kínálatából, a konyhai csap kivételével, a konyhai csap a konyhabútor tartozéka.

kád kompletten lábakkal, lefolyóval maximum nettó 100.000 Ft/db-ig.

w.c.-ék kompletten (2 csésze, 2 tartály, 2 ülőket) maximum nettó 80.000 Ft/db-ig az Alföldi kínálatából.

kézmosók (lakásonként 2 db) maximum nettó 45.000 Ft/db-ig, az Alföldi kínálatából.

FELÜLETKÉPZÉS:

A falakat 2 réteg glettel és 2 réteg fehér HÉRA festékkel festik

A burkoló anyagokat maximálisan nettó 5000 Ft/m2 áron a Zalakerámia kínálatából, a melegburkolást illetően és maximum nettó 5000 Ft/m2 áron a Jafholz kínálatából.

Ócsa Budapesttől mindössze autóval 30 perc távolságra van. A helyiség infrastruktúrája fejlett, tömegközlekedése alkalmas a napi szintű Budapestre való munkába járásra. Spar, bank, posta, a közelben.

Teljeskörű hitelügyintézéssel és akár ügyvédi szolgáltatással állunk rendelkezésére!

Várom megtisztelő hívását!

Referencia szám: HZ022932

Hirdetés feltöltve: 2026. 02. 12. Utoljára módosítva: 2026. 03. 15.

5 szobás családi házak ára Ócsán

Ebből az összehasonlításból megtudhatod, hogyan viszonyul a lakás ára a környékbeli családi házak átlagos árához. Ez nem azt jelenti, hogy ennyivel olcsóbb vagy drágább, mint amennyit a lakás ér, hanem hogy ennyivel tér el a környékbeli átlagtól.

Ennek a m² ára
Ócsa m² ár
1126 e Ft
680 e Ft -66%
Ennek az ára
Ócsa átlagár
102.5 M Ft m Ft
92.7 m Ft -11%

Az ingatlan elhelyezkedése

Cím: Ócsa

Eladó családi házak a környékről

Ócsa
Eladó családi ház

Ócsa

90 M Ft
6 szoba
150 m²
Ócsa
Eladó családi ház

Ócsa

165 M Ft
7 szoba
320 m²
Tápiószele
Eladó családi ház

Tápiószele

37.9 M Ft
4 szoba
141 m²
Budakeszi, Makkosmária
Eladó családi ház

Budakeszi

100 M Ft
1 szoba
10 m²
Budakeszi, Budakeszi kertváros
Eladó családi ház

Budakeszi

140 M Ft
2 szoba
55 m²
Pécel, Reményik Sándor utca
Eladó családi ház

Pécel

296 M Ft
6 szoba
396 m²
Ócsa
Eladó családi ház

Ócsa

88 M Ft
6 szoba
156 m²
Tápiószentmárton
Eladó családi ház

Tápiószentmárton

48 M Ft
5 szoba
180 m²
Ócsa
Eladó családi ház

Ócsa

94.99 M Ft
6 szoba
140 m²
Ócsa
Eladó családi ház

Ócsa

94.9 M Ft
4 szoba
99 m²
Ócsa
Eladó családi ház

Ócsa

93 M Ft
5 szoba
175 m²
Zebegény
Eladó családi ház

Zebegény

69.9 M Ft
6 szoba
245 m²
Remeteszőlős
Eladó családi ház

Remeteszőlős

399.9 M Ft
5 + 2 szoba
260 m²
Ócsa
Eladó családi ház

Ócsa

93.9 M Ft
6 szoba
150 m²
Ócsa
Eladó családi ház

Ócsa

24.9 M Ft
5 szoba
134 m²
Dunakeszi
Eladó családi ház

Dunakeszi

250 M Ft
4 szoba
180 m²
Budakeszi
Eladó családi ház

Budakeszi

130 M Ft
5 szoba
30 m²
Kerepes
Eladó családi ház

Kerepes

199 M Ft
6 szoba
360 m²
Tápiószele
Eladó családi ház

Tápiószele

18.9 M Ft
4 szoba
68 m²
Ócsa
Eladó családi ház

Ócsa

187 M Ft
5 szoba
205 m²
Ócsa
Eladó családi ház

Ócsa

88 M Ft
6 szoba
156 m²
Érd, Érdliget - Kutyavár, Érd-liget
Eladó családi ház

Érd

230 M Ft
7 szoba
280 m²
Ócsa
Eladó családi ház

Ócsa

102.5 M Ft
5 szoba
91 m²
Ócsa
Eladó családi ház

Ócsa

89 M Ft
9 szoba
240 m²

Falusi CSOK ingatlanok

Tápióbicske
Eladó családi ház

Tápióbicske

14.9 M Ft
2 szoba
51 m²
Tápiógyörgye
Eladó családi ház

Tápiógyörgye

24.9 M Ft
2 szoba
71 m²
Porva
Eladó családi ház

Porva

74.6 M Ft
3 szoba
115 m²
Vásárosdombó
Eladó családi ház

Vásárosdombó

14.99 M Ft
2 szoba
69 m²
Kisnémedi
Eladó családi ház

Kisnémedi

59.9 M Ft
5 szoba
250 m²
Pannonhalma, Szent Márton utca 9
Eladó családi ház

Pannonhalma

97.9 M Ft
3 szoba
100 m²
Táborfalva
Eladó családi ház

Táborfalva

36.9 M Ft
1 + 2 szoba
89 m²
Tésenfa, Kossuth utca 23/a
Eladó családi ház

Tésenfa

5.55 M Ft
1 + 1 szoba
109 m²