Astora Márvány8

Eladó családi ház
Nyúl

+ 2 kép 1/5
86 900 000 Ft86.9 M Ft 905 208 Ft/m2
5 szoba
96 m²
építés éve:2026

Részletes adatok

Telekméret: 602 m2
Fűtés: Egyéb
Energetikai besorolás: Nem adta meg a hirdető

Az OTP Bank lakáshitel ajánlataFizetett hirdetés

+36 20 419
Hima Zsuzsanna
OTPip - Győr Bajcsy-Zsilinszky út 27 - OTP Ingatlanpont Iroda

Érdekel az OTP Bank kedvezményes lakáshitel ajánlata? *

* A kérdésre „Igen” válasz bejelölése esetén, az „Üzenet küldése” gombra kattintva kijelentem, hogy az OTP Bank Nyrt. Adatkezelési tájékoztatójának tartalmát megismertem és tudomásul vettem.

Eladó családi ház leírása

Eladó ÚJ építésű családi ház NYÚL zöldövezeti részén !

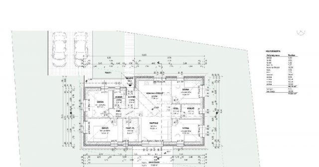
Eladó Nyúl új kialakítású utcájában egy 602 m2-s telken, 96 m2-s tégla ház 20 m2 -s fedett terasszal.
Helyiségek: amerikai konyhás nappali + 4 szoba, 2 fürdő helyiség és közlekedő. Átadás: 2026 december 31.
Az ár emelt színtű fűtés kész állapotra vonatkozik, telekkel együtt. Igény esetén kulcsrakész befejezésre is van lehetőség.
Szívesen segítek azonnali hitelügyintézésben, banki nyitva tartási időn túl is! Otthon start, Csok, jelzálog hitelek, babaváró szabad felhasználású hitelek. OTP Pénzügy Pont segít a legkedvezőbb pénzügyi megoldásokat is megkeresni, hogy megtalálja álmai otthonát! Kérésével forduljon hozzám bizalommal!

Hirdetés feltöltve: 2026. 03. 22. Utoljára módosítva: 2026. 03. 22.

5 szobás családi házak ára Nyúlon

Ebből az összehasonlításból megtudhatod, hogyan viszonyul a lakás ára a környékbeli családi házak átlagos árához. Ez nem azt jelenti, hogy ennyivel olcsóbb vagy drágább, mint amennyit a lakás ér, hanem hogy ennyivel tér el a környékbeli átlagtól.

Ennek a m² ára
Nyúl m² ár
905 e Ft
374 e Ft -142%
Ennek az ára
Nyúl átlagár
86.9 M Ft m Ft
69.1 m Ft -26%

Az ingatlan elhelyezkedése

Cím: Nyúl

Eladó ingatlanok a környékről

Szántód
Eladó nyaraló

Szántód

67.9 M Ft
2 szoba
55 m²
Balatonszabadi
Eladó telek

Balatonszabadi

25 M Ft
5153 m²
0 m²
Balatonboglár, Dózsa György út
Eladó téglalakás

Balatonboglár

79.9 M Ft
2 szoba
50 m²
Balatonlelle
Eladó üzlethelyiség

Balatonlelle

95 M Ft
2 szoba
134 m²
Balatonlelle
Eladó üzlethelyiség

Balatonlelle

34 M Ft
44 m²
Balatonújlak
Eladó családi ház

Balatonújlak

43 M Ft
2 + 1 szoba
64 m²
Siófok
Eladó üzlethelyiség

Siófok

159 M Ft
240 m²
Siófok
Eladó üzlethelyiség

Siófok

800 M Ft
1348 m²
Fonyód
Eladó üzlethelyiség

Fonyód

51.985 M Ft
34 m²
Szántód
Eladó üzlethelyiség

Szántód

150 M Ft
160 m²
Kaposvár, Belváros, Honvéd utca
Eladó panellakás

Kaposvár

47 M Ft
2 szoba
47 m²
Taszár
Eladó családi ház

Taszár

66.5 M Ft
4 szoba
142 m²
Fonyód
Eladó üzlethelyiség

Fonyód

51.985 M Ft
64 m²
Balatonlelle
Eladó üzlethelyiség

Balatonlelle

199 M Ft
350 m²
300 m²
Balatonlelle
Eladó üzlethelyiség

Balatonlelle

77.5 M Ft
1 szoba
224 m²
Balatonmáriafürdő
Eladó üzlethelyiség

Balatonmáriafürdő

169 M Ft
500 m²
380 m²
Siófok
Eladó üzlethelyiség

Siófok

150 M Ft
512 m²
180 m²
Balatonszemes, Ady E. utca 6
Eladó üzlethelyiség

Balatonszemes

64.9 M Ft
2 szoba
36 m²
Szántód
Eladó üzlethelyiség

Szántód

240 M Ft
650 m²
Balatonlelle
Eladó üzlethelyiség

Balatonlelle

42.5 M Ft
1 szoba
52 m²
Mesztegnyő, Béke utca 33
Eladó családi ház

Mesztegnyő

2.28 M Ft
2 szoba
57 m²
Balatonlelle
Eladó üzlethelyiség

Balatonlelle

49.99 M Ft
1 szoba
72 m²
Böhönye
Eladó családi ház

Böhönye

39.9 M Ft
3 szoba
145 m²
Siófok
Eladó üzlethelyiség

Siófok

849 M Ft
714 m²
380 m²

Falusi CSOK ingatlanok

Sásd
Eladó családi ház

Sásd

35.9 M Ft
4 + 1 szoba
71 m²
Felsőmocsolád
Eladó családi ház

Felsőmocsolád

48 M Ft
4 szoba
150 m²
Darnózseli
Eladó családi ház

Darnózseli

69.9 M Ft
4 szoba
104 m²
Balatonszemes
Eladó téglalakás

Balatonszemes

202 M Ft
3 szoba
154 m²
Tésenfa, Kossuth utca 23/a
Eladó családi ház

Tésenfa

5.55 M Ft
1 + 1 szoba
109 m²
Kunadacs
Eladó családi ház

Kunadacs

34 M Ft
5 ha
240 m²
Segesd
Eladó családi ház

Segesd

14.3 M Ft
3 szoba
100 m²
Gáborján
Eladó családi ház

Gáborján

5.5 M Ft
2 szoba
68 m²