Metrodom

Eladó családi ház
Nyíregyháza

+ 15 kép 1/18
47 500 000 Ft47.5 M Ft 625 000 Ft/m2
2 + 1 szoba
76 m²
építés éve:1975

Részletes adatok

Állapot: Felújítandó
Telekméret: 3572 m2
Fűtés: Elektromos
Komfort: Összkomfortos
Energetikai besorolás: Nem adta meg a hirdető

Az OTP Bank lakáshitel ajánlataFizetett hirdetés

+36 20 279
Kiszely Valéria Erzsébet
OTPIP Nyíregyháza Hunyadi u.

Érdekel az OTP Bank kedvezményes lakáshitel ajánlata? *

* A kérdésre „Igen” válasz bejelölése esetén, az „Üzenet küldése” gombra kattintva kijelentem, hogy az OTP Bank Nyrt. Adatkezelési tájékoztatójának tartalmát megismertem és tudomásul vettem.

Eladó családi ház leírása

Eladó gazdálkodásra alkalmas családi ház Nyíregyháza közelében, hatalmas telekkel és melléképületekkel!

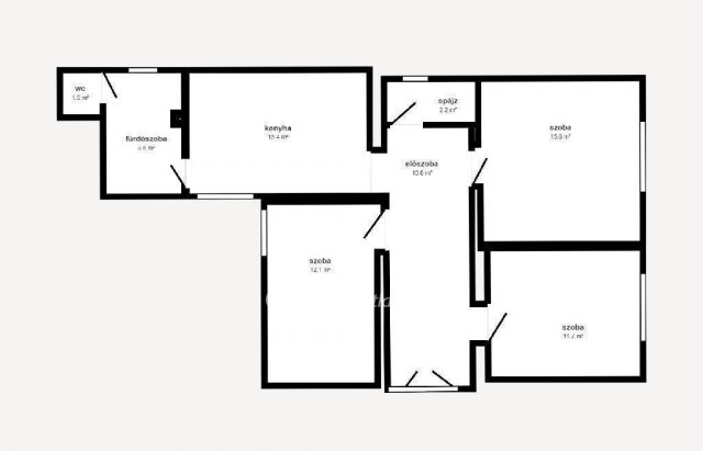
Nyíregyháza belvárosától mindössze 10 perc autóútra, nyugodt, csendes környezetben kínálunk eladásra egy 76 nm-es, vegyes falazatú, stabil szerkezetű családi házat, mely 1975-ben épült. Az ingatlan 2,5 szobával, konyhával, fürdőszobával és külön WC-vel, kamrával és nyári konyhával rendelkezik.

A ház teljes felújítást igényel, így az új tulajdonos saját igényei szerint alakíthatja ki otthonát vagy gazdaságát.

Főbb jellemzők:

3572 nm-es, tágas telek - kiváló lehetőség kertészkedésre, gazdálkodásra, állattartásra,

melléképületek - melyek alkalmasak állattartásra vagy tárolásra,

könnyen megközelíthető - mégis nyugodt, vidéki környezet.

Ez az ingatlan ideális választás lehet mindazok számára, akik szeretnének kisgazdaságot indítani, állatokat tartani, vagy egyszerűen csak nagy kerttel rendelkező otthonra vágynak a város közelében.

OTP Banki hátterünknek köszönhetően finanszírozási igényekben (pl. Otthon Start Hitelprogram , Babaváró, Falusi CSOK, CSOK Plusz, Lakáshitel, Személyi kölcsön stb.), illetve biztosítások tekintetében is díjmentesen, soron kívüli ügyintézéssel segítem ügyfeleim! Referenciaszám: M310599

Az energetikai tanúsítvány készítése folyamatban van, amint rendelkezésre áll, úgy azzal a hirdetés frissítésre kerül.

Hirdetés feltöltve: 2026. 04. 08. Utoljára módosítva: 2026. 05. 15.

3 szobás családi házak ára Nyíregyházán

Ebből az összehasonlításból megtudhatod, hogyan viszonyul a lakás ára a környékbeli családi házak átlagos árához. Ez nem azt jelenti, hogy ennyivel olcsóbb vagy drágább, mint amennyit a lakás ér, hanem hogy ennyivel tér el a környékbeli átlagtól.

Ennek a m² ára
Nyíregyháza m² ár
625 e Ft
685 e Ft 9%
Ennek az ára
Nyíregyháza átlagár
47.5 M Ft m Ft
80.8 m Ft 41%

Az ingatlan elhelyezkedése

Cím: Nyíregyháza

Eladó családi házak a környékről

Nagyhalász
Eladó családi ház

Nagyhalász

20 M Ft
2 szoba
57 m²
Nyíregyháza
Eladó családi ház

Nyíregyháza

190 M Ft
4 szoba
230 m²
Nyíregyháza
Eladó családi ház

Nyíregyháza

60 M Ft
3 szoba
100 m²
Nyíregyháza
Eladó családi ház

Nyíregyháza

63.9 M Ft
2 + 1 szoba
100 m²
Nyíregyháza
Eladó családi ház

Nyíregyháza

290 M Ft
4 szoba
620 m²
Nyíregyháza
Eladó családi ház

Nyíregyháza

69.9 M Ft
4 szoba
165 m²
Nyíregyháza
Eladó családi ház

Nyíregyháza

63.9 M Ft
2 + 1 szoba
100 m²
Nyíregyháza
Eladó családi ház

Nyíregyháza

89.9 M Ft
5 szoba
274 m²
Nyíregyháza
Eladó családi ház

Nyíregyháza

199.9 M Ft
6 szoba
500 m²
Nyíregyháza
Eladó családi ház

Nyíregyháza

65 M Ft
3 szoba
135 m²
Nyíregyháza
Eladó családi ház

Nyíregyháza

290 M Ft
4 szoba
620 m²
Nyíregyháza
Eladó családi ház

Nyíregyháza

69.9 M Ft
3 szoba
140 m²
Nyíregyháza
Eladó családi ház

Nyíregyháza

240 M Ft
3 szoba
204 m²
Nyíregyháza
Eladó családi ház

Nyíregyháza

90 M Ft
3 szoba
170 m²
Nyíregyháza
Eladó családi ház

Nyíregyháza

88 M Ft
3 szoba
256 m²
Nyíregyháza
Eladó családi ház

Nyíregyháza

140 M Ft
3 szoba
190 m²
Nyíregyháza
Eladó családi ház

Nyíregyháza

90 M Ft
5 szoba
210 m²
Nyíregyháza
Eladó családi ház

Nyíregyháza

90 M Ft
5 szoba
210 m²
Nyíregyháza
Eladó családi ház

Nyíregyháza

90 M Ft
3 + 1 szoba
100 m²
Nyírtelek
Eladó családi ház

Nyírtelek

130 M Ft
3 szoba
159 m²
Nyíregyháza
Eladó családi ház

Nyíregyháza

100 M Ft
4 szoba
220 m²
Nyíregyháza
Eladó családi ház

Nyíregyháza

69.9 M Ft
3 szoba
140 m²
Nyíregyháza
Eladó családi ház

Nyíregyháza

190 M Ft
4 szoba
230 m²
Nyíregyháza
Eladó családi ház

Nyíregyháza

65 M Ft
3 szoba
135 m²

Falusi CSOK ingatlanok

Csurgó
Eladó családi ház

Csurgó

19.9 M Ft
4 szoba
136 m²
Iváncsa
Eladó családi ház

Iváncsa

93.5 M Ft
5 szoba
283 m²
Igal
Eladó családi ház

Igal

45.9 M Ft
5 szoba
280 m²
Bag
Eladó családi ház

Bag

16.9 M Ft
6 szoba
160 m²
Jobbágyi
Eladó családi ház

Jobbágyi

399 M Ft
7 szoba
200 m²
Balatonudvari
Eladó családi ház

Balatonudvari

82 M Ft
5 szoba
92 m²
Lovasberény
Eladó sorház

Lovasberény

78 M Ft
4 + 1 szoba
124 m²
Balinka, Petőfi S. utca 27
Eladó családi ház

Balinka

12.65 M Ft
1 + 2 szoba
79 m²