BAM Living

Eladó családi ház
Nyíregyháza, Oros, Oros

+ 2 kép 1/5
98 000 000 Ft98 M Ft 705 036 Ft/m2
4 szoba
139 m2
építés éve:2026

Részletes adatok

Telekméret: 3200 m2
Fűtés: Egyéb
Parkolás: Garázs
Közmű: Víz, Villany, Csatorna, Szélessáv, KábelTV
Energetikai besorolás: A+++

Az OTP Bank lakáshitel ajánlataFizetett hirdetés

+36 30 459
Némethné Judit
Judit Ingatlanház

Érdekel az OTP Bank kedvezményes lakáshitel ajánlata? *

* A kérdésre „Igen” válasz bejelölése esetén, az „Üzenet küldése” gombra kattintva kijelentem, hogy az OTP Bank Nyrt. Adatkezelési tájékoztatójának tartalmát megismertem és tudomásul vettem.

Eladó családi ház leírása

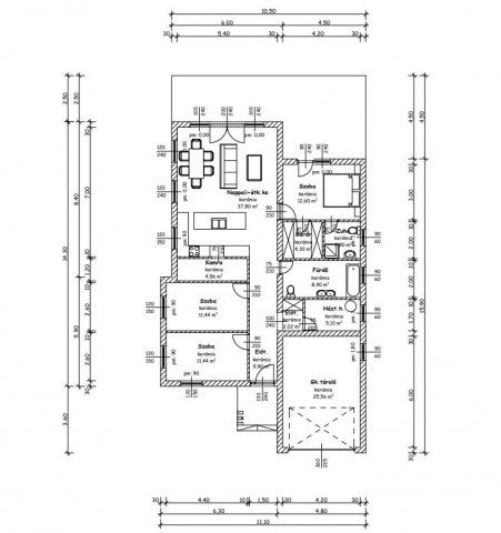
Nyíregyháza, Oros szélén 2026-ban épülő családi ház már foglalható, 139 m2-s garázzsal együtt, három különnyíló szoba, nappali+konyha+étkező egy térben, fürdőszoba+wc, zuhany+wc, kamra, háztartási helység, gardrob a fűtése hőszivattyú mely padlóra vezérelt, nyílászárók fehér három rétegű üveggel. Az ingatlan 3200 m2-s telken fekszik, utcafront 15 m széles, porotherm 30-s téglából épül, külsőleg 15 cm-s nikecel szigetelés, fafödémes, alacsony lejtésű lemeztető mely ATTIKA fallal takarva, automata garázskapu, térkövezett bejárat, utca felől szép kerítés, továbbá tartozik hozzá 40 m2-s nyitott burkolt terasz. Költözni szerződéstől számítva 8-10 hónap!

Hirdetés feltöltve: 2026. 01. 22. Utoljára módosítva: 2026. 01. 22.

4 szobás családi házak ára Nyíregyházán

Ebből az összehasonlításból megtudhatod, hogyan viszonyul a lakás ára a környékbeli családi házak átlagos árához. Ez nem azt jelenti, hogy ennyivel olcsóbb vagy drágább, mint amennyit a lakás ér, hanem hogy ennyivel tér el a környékbeli átlagtól.

Ennek a m² ára
Nyíregyháza m² ár
705 e Ft
649 e Ft -9%
Ennek az ára
Nyíregyháza átlagár
98 M Ft m Ft
100.7 m Ft 3%

Az ingatlan elhelyezkedése

Cím: Nyíregyháza, Oros, Oros

Eladó családi házak a környékről

Eladó családi ház
Eladó családi ház

Nyíregyháza

98 M Ft
4 szoba
125 m2
Eladó családi ház
Eladó családi ház

Nyíregyháza

159 M Ft
2 szoba
130 m2
Eladó családi ház
Eladó családi ház

Balsa

38.9 M Ft
6 szoba
120 m2
Eladó családi ház
Eladó családi ház

Nyíregyháza

68 M Ft
4 szoba
220 m2
Eladó családi ház
Eladó családi ház

Nyíregyháza

240 M Ft
3 szoba
204 m2
Eladó családi ház
Eladó családi ház

Nyíregyháza

91.7 M Ft
4 szoba
142 m2
Eladó családi ház
Eladó családi ház

Nyíregyháza

250 M Ft
4 szoba
440 m2
Eladó családi ház
Eladó családi ház

Nyíregyháza

190 M Ft
4 szoba
230 m2
Eladó családi ház
Eladó családi ház

Levelek

29.8 M Ft
2 szoba
80 m2
Eladó családi ház
Eladó családi ház

Nyíregyháza

90 M Ft
5 szoba
210 m2
Eladó családi ház
Eladó családi ház

Nyíregyháza

92 M Ft
3 szoba
161 m2
Eladó családi ház
Eladó családi ház

Nyíregyháza

68 M Ft
4 szoba
220 m2
Eladó családi ház
Eladó családi ház

Nyíregyháza

150 M Ft
2 szoba
120 m2
Eladó családi ház
Eladó családi ház

Nyíregyháza

80 M Ft
3 szoba
146 m2
Eladó családi ház
Eladó családi ház

Nyíregyháza

44.5 M Ft
2 szoba
60 m2
Eladó családi ház
Eladó családi ház

Nyíregyháza

64.9 M Ft
3 szoba
140 m2
Eladó családi ház
Eladó családi ház

Napkor

115 M Ft
5 szoba
292 m2
Eladó családi ház
Eladó családi ház

Nyíregyháza

240 M Ft
3 szoba
204 m2
Eladó családi ház
Eladó családi ház

Nyíregyháza

199.9 M Ft
6 szoba
500 m2
Eladó családi ház
Eladó családi ház

Nyíregyháza

90 M Ft
5 szoba
210 m2
Eladó családi ház
Eladó családi ház

Nyíregyháza

90 M Ft
3 szoba
170 m2
Eladó családi ház
Eladó családi ház

Nyíregyháza

250 M Ft
3 szoba
440 m2
Eladó családi ház
Eladó családi ház

Nyíregyháza

199.9 M Ft
6 szoba
500 m2
Eladó családi ház
Eladó családi ház

Nyíregyháza

140 M Ft
3 szoba
168 m2

Falusi CSOK ingatlanok

Eladó családi ház
Eladó családi ház

Jakabszállás

69.99 M Ft
1 + 4 szoba
91 m2
Eladó családi ház
Eladó családi ház

Nagyhegyes

80 M Ft
2 szoba
94 m2
Eladó családi ház
Eladó családi ház

Szederkény

107.9 M Ft
6 szoba
224 m2
Eladó családi ház
Eladó családi ház

Ceglédbercel

67 M Ft
5 szoba
174 m2
Eladó ikerház
Eladó ikerház

Balatonakali

165 M Ft
4 szoba
138 m2
Eladó családi ház
Eladó családi ház

Vilonya

27 M Ft
2 szoba
70 m2
Eladó családi ház
Eladó családi ház

Szigetcsép, Szabadság utca

62 M Ft
4 szoba
120 m2
Eladó családi ház
Eladó családi ház

Bár

89.5 M Ft
4 + 1 szoba
172 m2