Aerogate Homes

Eladó családi ház
Nagykovácsi

+ 17 kép 1/20
259 000 000 Ft259 M Ft 1 660 256 Ft/m2
4 szoba
156 m²
építés éve:2019

Részletes adatok

Telekméret: 723 m2
Fűtés: Elektromos
Közmű: Villany, Csatorna
Energetikai besorolás: D
Zenga Premier

Friss hirdetések, amiket nem találsz meg más ingatlankereső portálon.

Fedezd fel elsőként a Zenga Premier címkés eladó ingatlanokat!

További részletek a zenga.hu-n

Az OTP Bank lakáshitel ajánlataFizetett hirdetés

+36 70 465
Németh György
referens

Érdekel az OTP Bank kedvezményes lakáshitel ajánlata? *

* A kérdésre „Igen” válasz bejelölése esetén, az „Üzenet küldése” gombra kattintva kijelentem, hogy az OTP Bank Nyrt. Adatkezelési tájékoztatójának tartalmát megismertem és tudomásul vettem.

Eladó családi ház leírása

Erdőszéli, prémium hangulatú családi ház eladó Nagykovácsiban – intim kerttel, különleges extrákkal

Nagykovácsi egyik legnyugodtabb, legszebb részén, a Cseresznyés városrész csendes zsákutcájának végén kínálunk megvételre egy 2019-ben épült, 156 nm-es, teraszos családi házat, közvetlen erdőkapcsolattal és gondosan kialakított, intim kerttel, nyárikonyhával.

Ez az otthon tökéletes választás azok számára, akik a természet közelségét keresik kompromisszumok nélkül.

Főbb jellemzők
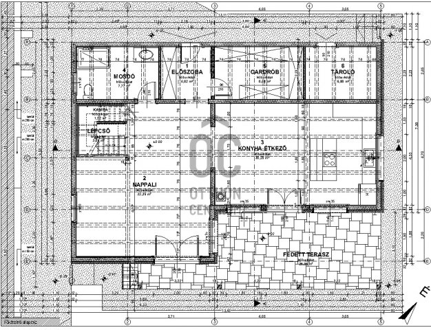
156 nm lakótér
Tágas nappali–konyha–étkező egy légtérben
3 külön nyíló szoba + gardrób
2 fürdőszoba
Panorámás franciaerkély kovácsoltvas korláttal
Hangulatos nyárikonyha, szaletli bográcsozóval és sparhelttel
Baltresto thermowood fürdődézsa (fa + elektromos fűtéssel, szűrőrendszerrel)
Két külön tároló
Automata öntözőrendszer
Motoros alumínium redőnyök szúnyoghálóval
Riasztórendszer, biztonsági szolgálathoz bekötve
???? Műszaki tartalom
Építés éve: 2019
Szerkezet: korszerű favázas könnyűszerkezet
Kiemelkedő szigetelés: 120 mm EPS + 150 mm ásványgyapot
→ nyáron hűvös, télen gyorsan és gazdaságosan fűthető
Háromrétegű fa nyílászárók
Prémium burkolatok: tömör tölgy padló és lépcső, fa födém, mészkő terasz
Fűtés:
programozható, online vezérelhető elektromos rendszer
Jotul öntöttvas kályha a nappaliban
padlófűtés a fürdőszobákban
???? Konyha és étkező
Egyedi, tömör tölgy konyhabútor
Karakteres bontott tégla fal
Hangulatvilágítás (Olaszországból és Angliából származó lámpákkal)
Beépített gépek:
AEG sütő és mosogatógép
70 cm-es főzőlap
BEKO amerikai hűtő
???? Elhelyezkedés

A telek közvetlenül az erdővel határos, így garantált a nyugalom, a friss levegő és a természet közelsége egész évben.

Nagykovácsi zsákfalu jellegének köszönhetően átmenőforgalomtól mentes, ugyanakkor minden fontos infrastruktúra (iskola, óvoda, bevásárlás, orvosi rendelő, gyógyszertár, tömegközlekedés) kb. 15 perc sétával elérhető.

Miért különleges?

Ez az ingatlan nem csupán egy ház, hanem egy életstílus: természetközeli, mégis komfortos, átgondolt és igényes. A prémium anyaghasználat, az egyedi részletek és a hangulatos kültéri megoldások valóban ritka kombinációt alkotnak.

Ha egy igazán különleges, értékálló otthont keres, ezt a házat érdemes személyesen is megtapasztalnia.

Hirdetés feltöltve: 2026. 04. 01. Utoljára módosítva: 2026. 04. 01.

4 szobás családi házak ára Nagykovácsiban

Ebből az összehasonlításból megtudhatod, hogyan viszonyul a lakás ára a környékbeli családi házak átlagos árához. Ez nem azt jelenti, hogy ennyivel olcsóbb vagy drágább, mint amennyit a lakás ér, hanem hogy ennyivel tér el a környékbeli átlagtól.

Ennek a m² ára
Nagykovácsi m² ár
1660 e Ft
1288 e Ft -29%
Ennek az ára
Nagykovácsi átlagár
259 M Ft m Ft
191.1 m Ft -36%

Az ingatlan elhelyezkedése

Cím: Nagykovácsi

Eladó családi házak a környékről

Nagykovácsi
Eladó családi ház

Nagykovácsi

244.9 M Ft
4 szoba
168 m²
Tápiószele
Eladó családi ház

Tápiószele

32.9 M Ft
4 szoba
200 m²
Budakeszi
Eladó családi ház

Budakeszi

130 M Ft
5 szoba
30 m²
Zebegény
Eladó családi ház

Zebegény

69.9 M Ft
6 szoba
245 m²
Nagykovácsi
Eladó családi ház

Nagykovácsi

219 M Ft
5 szoba
200 m²
Nagykovácsi, Erdőalja utca
Eladó családi ház

Nagykovácsi

158 M Ft
4 szoba
130 m²
Nagykovácsi
Eladó családi ház

Nagykovácsi

219 M Ft
7 szoba
248 m²
Nagykovácsi
Eladó családi ház

Nagykovácsi

244.9 M Ft
4 szoba
168 m²
Budaörs
Eladó családi ház

Budaörs

400 M Ft
12 szoba
583 m²
Nagykovácsi
Eladó családi ház

Nagykovácsi

255 M Ft
6 szoba
176 m²
Tápiószentmárton
Eladó családi ház

Tápiószentmárton

48 M Ft
5 szoba
180 m²
Nagykovácsi
Eladó családi ház

Nagykovácsi

255 M Ft
6 szoba
176 m²
Nagykovácsi
Eladó családi ház

Nagykovácsi

279 M Ft
5 szoba
240 m²
Nagykovácsi
Eladó családi ház

Nagykovácsi

550 M Ft
11 szoba
470 m²
Nagykovácsi
Eladó családi ház

Nagykovácsi

139 M Ft
8 szoba
250 m²
Remeteszőlős
Eladó családi ház

Remeteszőlős

399.9 M Ft
5 + 2 szoba
260 m²
Nagykovácsi
Eladó családi ház

Nagykovácsi

219 M Ft
5 szoba
200 m²
Tápiószentmárton
Eladó családi ház

Tápiószentmárton

7.9 M Ft
2 + 1 szoba
86 m²
Őrbottyán
Eladó családi ház

Őrbottyán

154 M Ft
4 + 1 szoba
115 m²
Pécel, Reményik Sándor utca
Eladó családi ház

Pécel

296 M Ft
6 szoba
396 m²
Nagykovácsi
Eladó családi ház

Nagykovácsi

244.9 M Ft
4 szoba
168 m²
Nagykovácsi
Eladó családi ház

Nagykovácsi

479 M Ft
11 szoba
2000 m²
Nagykovácsi
Eladó családi ház

Nagykovácsi

458 M Ft
7 szoba
243 m²
Tápiószele
Eladó családi ház

Tápiószele

37.9 M Ft
4 szoba
141 m²

Falusi CSOK ingatlanok

Lengyeltóti
Eladó családi ház

Lengyeltóti

59.9 M Ft
5 szoba
205 m²
Bozsok
Eladó családi ház

Bozsok

290 M Ft
6 szoba
370 m²
Ceglédbercel
Eladó családi ház

Ceglédbercel

65.9 M Ft
3 szoba
97 m²
Csesztreg
Eladó családi ház

Csesztreg

53 M Ft
4 szoba
78 m²
Tápióbicske, Nagykátai út
Eladó családi ház

Tápióbicske

14.9 M Ft
3 szoba
70 m²
Hosszúpereszteg
Eladó családi ház

Hosszúpereszteg

27.9 M Ft
4 szoba
121 m²
Csemő
Eladó családi ház

Csemő

61.9 M Ft
3 szoba
88 m²
Tóalmás
Eladó családi ház

Tóalmás

55 M Ft
8 szoba
360 m²