Aerogate Homes

Eladó családi ház
Nagykáta

+ 17 kép 1/20
23 900 000 Ft23.9 M Ft 287 952 Ft/m2
3 szoba
83 m2
építés éve:1960

Részletes adatok

Állapot: Felújítandó
Telekméret: 2542 m2
Fűtés: Egyéb
Közmű: Víz, Villany, Csatorna
Energetikai besorolás: Nem adta meg a hirdető

Az OTP Bank lakáshitel ajánlataFizetett hirdetés

+36 70 358
Jancsovics-Andó Bernadett
referens

Érdekel az OTP Bank kedvezményes lakáshitel ajánlata? *

* A kérdésre „Igen” válasz bejelölése esetén, az „Üzenet küldése” gombra kattintva kijelentem, hogy az OTP Bank Nyrt. Adatkezelési tájékoztatójának tartalmát megismertem és tudomásul vettem.

Eladó családi ház leírása

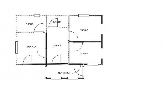
Budapesttől 60 km-re, Pest vármegye, Nagykáta városában felújítandó családi ház eladó. A 83 nm-es alapterületű, vályog falazatú ház egy 2542 nm-es telken helyezkedik el. A telek a mérete miatt meg is osztható. Az ingatlanban kialakításra került három szoba, konyha, előszoba, fürdőszoba wc-vel, kamra. Az ingatlan egy csendes kis utcában helyezkedik el, kiváló szomszédsággal. A város tömegközlekedését a helyi és menetrend szerinti autóbusz forgalom, valamint a vasútvonal biztosítja. Nagykátán elérhetők üzletek, strand és gyógyfürdő, bölcsődék, óvodák, általános és középiskolák is, így ideális választás gyermekes családok számára.
A vásárlás finanszírozásában az OTP kedvező hitelkonstrukcióival. Használja ki a lehetőséget, hogy kedvezőbb kamatozású OTP Bank hitelhez juthat, ha az OTP Ingatlanpont kínálatából választja ki a tökéletes otthont. Az adás-vétel lebonyolításához korrekt ügyvédi közreműködést tudunk biztosítani.

Hirdetés feltöltve: 2025. 10. 23. Utoljára módosítva: 2025. 11. 06.

3 szobás családi házak ára Nagykátán

Ebből az összehasonlításból megtudhatod, hogyan viszonyul a lakás ára a környékbeli családi házak átlagos árához. Ez nem azt jelenti, hogy ennyivel olcsóbb vagy drágább, mint amennyit a lakás ér, hanem hogy ennyivel tér el a környékbeli átlagtól.

Ennek a m² ára
Nagykáta m² ár
288 e Ft
452 e Ft 36%
Ennek az ára
Nagykáta átlagár
23.9 M Ft m Ft
46 m Ft 48%

Az ingatlan elhelyezkedése

Cím: Nagykáta

Eladó családi házak a környékről

Eladó családi ház
Eladó családi ház

Dunakeszi

250 M Ft
4 szoba
180 m2
Eladó családi ház
Eladó családi ház

Nagykáta, Munkácsy Mihály utca

29.9 M Ft
2 szoba
80 m2
Eladó családi ház
Eladó családi ház

Nagykáta

65 M Ft
2 szoba
80 m2
Eladó családi ház
Eladó családi ház

Nagykáta

33.9 M Ft
2 szoba
70 m2
Eladó családi ház
Eladó családi ház

Nagykáta

19.9 M Ft
2 szoba
80 m2
Eladó családi ház
Eladó családi ház

Nagykáta

55 M Ft
4 szoba
140 m2
Eladó családi ház
Eladó családi ház

Tápiószele

37.9 M Ft
4 szoba
141 m2
Eladó családi ház
Eladó családi ház

Dunavarsány

69.9 M Ft
3 + 1 szoba
140 m2
Eladó családi ház
Eladó családi ház

Pécel, Reményik Sándor utca

296 M Ft
6 szoba
396 m2
Eladó családi ház
Eladó családi ház

Nagykáta

65 M Ft
2 szoba
80 m2
Eladó családi ház
Eladó családi ház

Nagykáta

56.99 M Ft
5 szoba
180 m2
Eladó családi ház
Eladó családi ház

Leányfalu

237 M Ft
9 szoba
800 m2
Eladó családi ház
Eladó családi ház

Nagykáta

59.99 M Ft
3 szoba
112 m2
Eladó családi ház
Eladó családi ház

Budakeszi, Budakeszi kertváros

140 M Ft
2 szoba
55 m2
Eladó családi ház
Eladó családi ház

Nagykáta

21.9 M Ft
4 szoba
100 m2
Eladó családi ház
Eladó családi ház

Nagykáta

36 M Ft
3 szoba
55 m2
Eladó családi ház
Eladó családi ház

Tápiószentmárton

48 M Ft
5 szoba
180 m2
Eladó családi ház
Eladó családi ház

Budaörs, Bányász utca

385 M Ft
6 szoba
300 m2
Eladó családi ház
Eladó családi ház

Kerepes

199 M Ft
6 szoba
360 m2
Eladó családi ház
Eladó családi ház

Nagykáta

35 M Ft
2 szoba
62 m2
Eladó családi ház
Eladó családi ház

Budakeszi, Budakeszi kertváros

229 M Ft
10 szoba
450 m2
Eladó családi ház
Eladó családi ház

Tahitótfalu

188 M Ft
7 szoba
280 m2
Eladó családi ház
Eladó családi ház

Remeteszőlős

399.9 M Ft
5 + 2 szoba
260 m2
Eladó családi ház
Eladó családi ház

Nagykáta

29.9 M Ft
2 szoba
70 m2

Falusi CSOK ingatlanok

Eladó családi ház
Eladó családi ház

Vácszentlászló

46 M Ft
41 + 1 szoba
100 m2
Eladó családi ház
Eladó családi ház

Balatonfenyves

430 M Ft
4 szoba
274 m2
Eladó családi ház
Eladó családi ház

Vajszló

18.99 M Ft
2 szoba
91 m2
Eladó családi ház
Eladó családi ház

Mórichida

44.9 M Ft
3 szoba
89 m2
Eladó családi ház
Eladó családi ház

Bácsbokod

12.9 M Ft
3 szoba
90 m2
Eladó családi ház
Eladó családi ház

Kemeneshőgyész

8 M Ft
2 szoba
60 m2
Eladó családi ház
Eladó családi ház

Himesháza

119.9 M Ft
4 szoba
160 m2
Eladó családi ház
Eladó családi ház

Pápadereske

28 M Ft
2 szoba
78 m2