Oasis Residence

Eladó családi ház
Nagykáta

+ 17 kép 1/20
23 900 000 Ft23.9 M Ft 287 952 Ft/m2
3 szoba
83 m2
építés éve:1960

Részletes adatok

Állapot: Felújítandó
Telekméret: 2542 m2
Fűtés: Egyéb
Energetikai besorolás: Nem adta meg a hirdető

Az OTP Bank lakáshitel ajánlataFizetett hirdetés

+36 70 330
György Erika
Jászberény. OTPIP SzeMi

Érdekel az OTP Bank kedvezményes lakáshitel ajánlata? *

* A kérdésre „Igen” válasz bejelölése esetén, az „Üzenet küldése” gombra kattintva kijelentem, hogy az OTP Bank Nyrt. Adatkezelési tájékoztatójának tartalmát megismertem és tudomásul vettem.

Eladó családi ház leírása

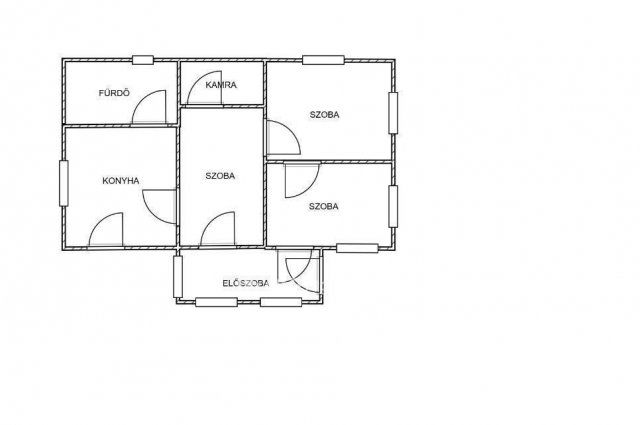
Budapesttől 60 km-re, Pest vármegye, Nagykáta városában felújítandó családi ház eladó! A 83 nm-es alapterületű, vályog falazatú ház egy 2542 nm-es telken helyezkedik el. A telek a mérete miatt akár meg is osztható. Az ingatlanban kialakításra került három szoba, konyha, előszoba, fürdőszoba wc-vel, kamra. Az ingatlan egy csendes kis utcában helyezkedik el, kiváló szomszédsággal. A város tömegközlekedését a helyi és menetrend szerinti autóbusz forgalom, valamint a vasútvonal biztosítja. Nagykátán elérhetők üzletek, strand és gyógyfürdő, bölcsődék, óvodák, általános és középiskolák is, így ideális választás gyermekes családok számára.
Amennyiben hitelre lenne szüksége a vásárláshoz, az OTP kedvező hitelkonstrukcióit ajánlom, Babaváró a megfelelő személyi feltételek mellett felvehető! Az adás-vétel lebonyolításához igény szerint ügyvédi közreműködést tudunk biztosítani.
Keressen bizalommal a hét bármely napján, akár hétvégén is. Jöjjön, nézzük meg együtt!

Hirdetés feltöltve: 2025. 10. 14. Utoljára módosítva: 2025. 11. 02.

3 szobás családi házak ára Nagykátán

Ebből az összehasonlításból megtudhatod, hogyan viszonyul a lakás ára a környékbeli családi házak átlagos árához. Ez nem azt jelenti, hogy ennyivel olcsóbb vagy drágább, mint amennyit a lakás ér, hanem hogy ennyivel tér el a környékbeli átlagtól.

Ennek a m² ára
Nagykáta m² ár
288 e Ft
455 e Ft 37%
Ennek az ára
Nagykáta átlagár
23.9 M Ft m Ft
45 m Ft 47%

Az ingatlan elhelyezkedése

Cím: Nagykáta

Eladó családi házak a környékről

Eladó családi ház
Eladó családi ház

Nagykáta

61.9 M Ft
5 szoba
180 m2
Eladó családi ház
Eladó családi ház

Nagykáta

49.9 M Ft
4 szoba
140 m2
Eladó családi ház
Eladó családi ház

Nagykáta

56.99 M Ft
5 szoba
180 m2
Eladó családi ház
Eladó családi ház

Remeteszőlős

399.9 M Ft
5 + 2 szoba
260 m2
Eladó családi ház
Eladó családi ház

Tápiógyörgye

19.9 M Ft
3 szoba
65 m2
Eladó családi ház
Eladó családi ház

Nagykáta

65 M Ft
2 szoba
80 m2
Eladó családi ház
Eladó családi ház

Nagykáta

45 M Ft
3 szoba
130 m2
Eladó családi ház
Eladó családi ház

Nagykáta

19.9 M Ft
2 szoba
80 m2
Eladó családi ház
Eladó családi ház

Tápiószele

32.9 M Ft
4 szoba
200 m2
Eladó családi ház
Eladó családi ház

Nagykáta

130 M Ft
3 szoba
203 m2
Eladó családi ház
Eladó családi ház

Nagykáta

33.9 M Ft
2 szoba
70 m2
Eladó családi ház
Eladó családi ház

Tahitótfalu

188 M Ft
7 szoba
280 m2
Eladó családi ház
Eladó családi ház

Tápiószentmárton

7.9 M Ft
2 + 1 szoba
86 m2
Eladó családi ház
Eladó családi ház

Budakeszi, Budakeszi kertváros

140 M Ft
2 szoba
55 m2
Eladó családi ház
Eladó családi ház

Érd

164.9 M Ft
5 szoba
192 m2
Eladó családi ház
Eladó családi ház

Leányfalu

237 M Ft
9 szoba
800 m2
Eladó családi ház
Eladó családi ház

Budaörs, Városközpont utca

119.5 M Ft
5 + 1 szoba
140 m2
Eladó családi ház
Eladó családi ház

Nagykáta

59.99 M Ft
3 szoba
112 m2
Eladó családi ház
Eladó családi ház

Nagykáta, Munkácsy Mihály utca

29.9 M Ft
2 szoba
80 m2
Eladó családi ház
Eladó családi ház

Nagykáta

21.99 M Ft
3 + 1 szoba
96 m2
Eladó családi ház
Eladó családi ház

Nagykáta

33.9 M Ft
2 szoba
70 m2
Eladó családi ház
Eladó családi ház

Pécel, Reményik Sándor utca

296 M Ft
6 szoba
396 m2
Eladó családi ház
Eladó családi ház

Dunavarsány

69.9 M Ft
3 + 1 szoba
140 m2
Eladó családi ház
Eladó családi ház

Tápiószele

37.9 M Ft
4 szoba
141 m2

Falusi CSOK ingatlanok

Eladó családi ház
Eladó családi ház

Ágasegyháza

29.7 M Ft
3 szoba
75 m2
Eladó családi ház
Eladó családi ház

Gamás

49.9 M Ft
5 szoba
150 m2
Eladó családi ház
Eladó családi ház

Orgovány, Mátyás király utca

16 M Ft
2 szoba
60 m2
Eladó családi ház
Eladó családi ház

Kelebia

13 M Ft
3 szoba
76 m2
Eladó családi ház
Eladó családi ház

Ságvár

59.9 M Ft
3 szoba
87 m2
Eladó családi ház
Eladó családi ház

Magyarszék

48.5 M Ft
3 + 1 szoba
86 m2
Eladó téglalakás
Eladó téglalakás

Kőröshegy

64.9 M Ft
3 szoba
52 m2
Eladó családi ház
Eladó családi ház

Bábolna

90.3 M Ft
5 szoba
100 m2