Astora Olive Club House

Eladó családi ház
Nagykálló

+ 7 kép 1/10
45 000 000 Ft45 M Ft 692 308 Ft/m2
2 szoba
65 m2
építés éve:2000

Részletes adatok

Állapot: Felújított
Telekméret: 247 m2
Fűtés: Egyéb
Energetikai besorolás: Nem adta meg a hirdető

Az OTP Bank lakáshitel ajánlataFizetett hirdetés

+36 31 771
Huszár Gabriella
OTPIP Nyíregyháza Hunyadi u.

Érdekel az OTP Bank kedvezményes lakáshitel ajánlata? *

* A kérdésre „Igen” válasz bejelölése esetén, az „Üzenet küldése” gombra kattintva kijelentem, hogy az OTP Bank Nyrt. Adatkezelési tájékoztatójának tartalmát megismertem és tudomásul vettem.

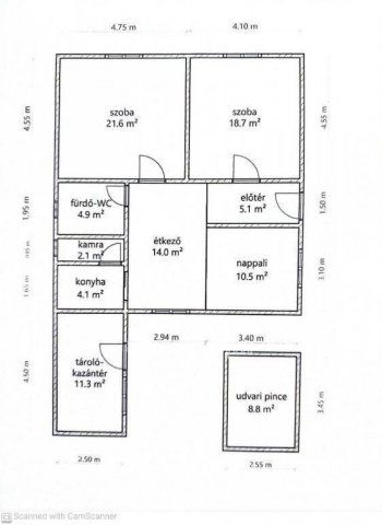
Eladó családi ház leírása

Nagykállóban eladó teljes körűen felújított családi ház!

Nagykálló központjához közel, jó megközelíthetőséggel kínálunk eladásra egy 65 nm alapterületű, téglaépítésű családi házat.

- Amerikai konyhás nappali + 2 külön nyíló szoba
- Új burkolatok, új fürdőszoba
- Teljesen felújított víz- és villanyhálózat
- Műanyag nyílászárók, redőnnyel felszerelve
- Kandallós fűtés
- Tágas, világos, jó elosztás

A ház mellett található egy 2 állásos, egy éve épült, teljesen új garázs, amely Hörmann elektromos kapuval, műanyag nyílászárókkal, vízzel és villannyal felszerelt, így akár vállalkozásra is kiválóan alkalmas.

Központi elhelyezkedése miatt minden könnyen elérhető!

Amennyiben az ingatlan vásárláshoz Otthon Start Hitelt, Babaváró támogatást, CSOK Pluszt vagy hitelt szeretne felvenni ingyenes tanácsadással segítjük ÖNT!

Hirdetés feltöltve: 2025. 11. 25. Utoljára módosítva: 2025. 11. 25.

2 szobás családi házak ára Nagykállóban

Ebből az összehasonlításból megtudhatod, hogyan viszonyul a lakás ára a környékbeli családi házak átlagos árához. Ez nem azt jelenti, hogy ennyivel olcsóbb vagy drágább, mint amennyit a lakás ér, hanem hogy ennyivel tér el a környékbeli átlagtól.

Ennek a m² ára
Nagykálló m² ár
692 e Ft
372 e Ft -86%
Ennek az ára
Nagykálló átlagár
45 M Ft m Ft
27.9 m Ft -61%

Az ingatlan elhelyezkedése

Cím: Nagykálló

Eladó családi házak a környékről

Eladó családi ház
Eladó családi ház

Nagykálló

38 M Ft
4 + 1 szoba
240 m2
Eladó családi ház
Eladó családi ház

Nyíregyháza

41.99 M Ft
2 szoba
60 m2
Eladó családi ház
Eladó családi ház

Nagykálló

28.5 M Ft
2 szoba
70 m2
Eladó családi ház
Eladó családi ház

Nyíregyháza

85 M Ft
3 szoba
170 m2
Eladó családi ház
Eladó családi ház

Nagykálló

28.5 M Ft
3 szoba
70 m2
Eladó családi ház
Eladó családi ház

Nyíregyháza

92 M Ft
3 szoba
161 m2
Eladó családi ház
Eladó családi ház

Nyíregyháza

120 M Ft
5 szoba
203 m2
Eladó családi ház
Eladó családi ház

Nyíregyháza, Oros, Oros

55 M Ft
4 szoba
100 m2
Eladó családi ház
Eladó családi ház

Nagykálló

40 M Ft
4 + 1 szoba
136 m2
Eladó családi ház
Eladó családi ház

Nyírtelek

10.9 M Ft
2 szoba
55 m2
Eladó családi ház
Eladó családi ház

Nagykálló, Debreceni út

31.99 M Ft
3 szoba
84 m2
Eladó családi ház
Eladó családi ház

Nyíregyháza

199.9 M Ft
6 szoba
500 m2
Eladó családi ház
Eladó családi ház

Nagykálló

28.5 M Ft
3 szoba
70 m2
Eladó családi ház
Eladó családi ház

Nyíregyháza

250 M Ft
4 szoba
440 m2
Eladó családi ház
Eladó családi ház

Újfehértó

22.9 M Ft
2 szoba
60 m2
Eladó családi ház
Eladó családi ház

Nyíregyháza

92.8 M Ft
5 szoba
240 m2
Eladó családi ház
Eladó családi ház

Nagykálló

55 M Ft
4 szoba
230 m2
Eladó családi ház
Eladó családi ház

Nagykálló

69.9 M Ft
2 + 1 szoba
150 m2
Eladó családi ház
Eladó családi ház

Nyíregyháza

240 M Ft
3 szoba
204 m2
Eladó családi ház
Eladó családi ház

Nyíregyháza

75.9 M Ft
6 szoba
240 m2
Eladó családi ház
Eladó családi ház

Nagykálló

28.5 M Ft
2 szoba
70 m2
Eladó családi ház
Eladó családi ház

Nagykálló

45 M Ft
4 szoba
118 m2
Eladó családi ház
Eladó családi ház

Nagykálló

45 M Ft
4 szoba
168 m2
Eladó családi ház
Eladó családi ház

Nagykálló

45 M Ft
4 + 1 szoba
140 m2

Falusi CSOK ingatlanok

Eladó családi ház
Eladó családi ház

Elek

21.5 M Ft
2 szoba
76 m2
Eladó családi ház
Eladó családi ház

Miháld

18 M Ft
3 szoba
102 m2
Eladó családi ház
Eladó családi ház

Ráksi

69.9 M Ft
4 szoba
139 m2
Eladó családi ház
Eladó családi ház

Tésenfa, Kossuth utca 23/a

5.55 M Ft
1 + 1 szoba
109 m2
Eladó családi ház
Eladó családi ház

Szarvaskend

26.9 M Ft
2 szoba
83 m2
Eladó családi ház
Eladó családi ház

Vasvár

64.9 M Ft
3 szoba
91 m2
Eladó családi ház
Eladó családi ház

Marcaltő

20.9 M Ft
3 + 1 szoba
90 m2
Eladó családi ház
Eladó családi ház

Pannonhalma

159 M Ft
5 szoba
240 m2