Avico Greentop

Eladó családi ház
Mikepércs

Figyelem!

Ez az ingatlan a 2019.07.01-től induló falusi CSOK által támogatott településen található

+ 17 kép 1/20
87 000 000 Ft87 M Ft 537 037 Ft/m2
6 + 1 szoba
162 m²
építés éve:1986

Részletes adatok

Állapot: Átlagos
Telekméret: 746 m2
Fűtés: Gázkazán
Energetikai besorolás: Nem adta meg a hirdető

Az OTP Bank lakáshitel ajánlataFizetett hirdetés

+36 30 419
Balla László
OTP Ingatlanpont

Érdekel az OTP Bank kedvezményes lakáshitel ajánlata? *

* A kérdésre „Igen” válasz bejelölése esetén, az „Üzenet küldése” gombra kattintva kijelentem, hogy az OTP Bank Nyrt. Adatkezelési tájékoztatójának tartalmát megismertem és tudomásul vettem.

Eladó családi ház leírása

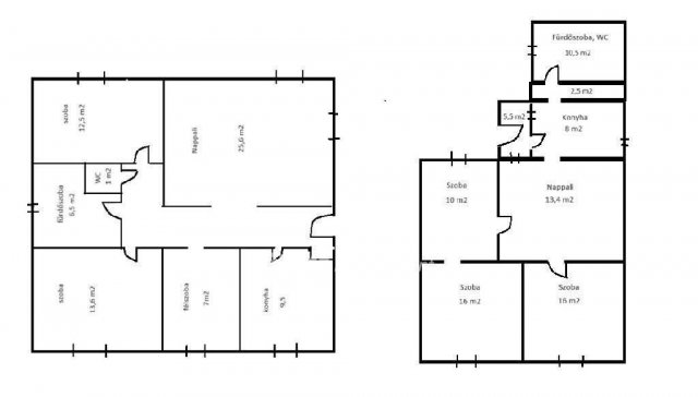
Mikepércs központi részén eladó egy sarki telken található, 2 családi ház.
Az egyik újabb építésű, beton alapra épült tégla falazattal, cserép tetővel, gáz kazános fűtéssel. Itt 2+1 fél szoba , illetve nagy nappali és konyha fürdőszoba található.
A másik ház az korábban épült, vegyes falazattal, pala fedéssel, itt szinten 2+1 szoba, nappali, konyha és fürdőszoba található. Szintén gázfűtéssel rendelkezik, illetve egy tárolásra alkalmas melléképülethez kapcsolódik.
Tetszés szerint modernizálható de nagyon sok lehetőség van benne. Elhelyezkedésének köszönhetően kiválóan alkalmas 2 generációs család számára is, vagy akár vállalkozásra is kimondottan jó adottságokkal rendelkezik. Minden szükséges létesítmény, boltok, orvosi rendelő, busz állomás, gyógyszertár, posta, 5 perc alatt sétálva is elérhető.
További információért hívjon bizalommal akár hétvégén is. Megtekintésre telefonos egyeztetés alapján van lehetőség.
Kedvezményes kamatozású lakásvásárlási és felújítási hitelek az OTP hátterével irodánkban, valamint teljeskörű adásvétellel kapcsolatos ügyintézés.

Az energetikai tanúsítvány készítése folyamatban van, amint rendelkezésre áll, úgy azzal a hirdetés frissítésre kerül.

Érd.Balla László +36 30 419 5022

Referencia szám: M285426

Hirdetés feltöltve: 2026. 04. 20. Utoljára módosítva: 2026. 05. 11.

Az ingatlan elhelyezkedése

Cím: Mikepércs

Eladó családi házak a környékről

Debrecen
Eladó családi ház

Debrecen

150 M Ft
4 szoba
318 m²
Mikepércs
Eladó családi ház

Mikepércs

210 M Ft
5 szoba
160 m²
Mikepércs
Eladó családi ház

Mikepércs

219 M Ft
5 szoba
160 m²
Mikepércs
Eladó családi ház

Mikepércs

59 M Ft
2 szoba
80 m²
Szentpéterszeg
Eladó családi ház

Szentpéterszeg

47 M Ft
3 szoba
92 m²
Mikepércs
Eladó családi ház

Mikepércs

44.9 M Ft
3 szoba
80 m²
Mikepércs
Eladó családi ház

Mikepércs

77.1 M Ft
3 szoba
95 m²
Mikepércs
Eladó családi ház

Mikepércs

128.9 M Ft
4 szoba
134 m²
Hajdúszoboszló
Eladó családi ház

Hajdúszoboszló

175 M Ft
7 szoba
415 m²
Mikepércs
Eladó családi ház

Mikepércs

210 M Ft
5 szoba
160 m²
Mikepércs
Eladó családi ház

Mikepércs

210 M Ft
5 szoba
160 m²
Mikepércs
Eladó családi ház

Mikepércs

59 M Ft
2 szoba
80 m²
Mikepércs
Eladó családi ház

Mikepércs

59 M Ft
2 szoba
80 m²
Debrecen
Eladó családi ház

Debrecen

139 M Ft
6 szoba
240 m²
Mikepércs
Eladó családi ház

Mikepércs

94 M Ft
4 + 1 szoba
125 m²
Debrecen
Eladó családi ház

Debrecen

79.99 M Ft
4 szoba
69 m²
Mikepércs
Eladó családi ház

Mikepércs

109 M Ft
2 + 2 szoba
135 m²
Mikepércs
Eladó családi ház

Mikepércs

56 M Ft
3 + 1 szoba
87 m²
Nádudvar, Alkotmány utca
Eladó családi ház

Nádudvar

12.5 M Ft
1 szoba
35 m²
Mikepércs
Eladó családi ház

Mikepércs

87 M Ft
6 + 1 szoba
162 m²
Mikepércs
Eladó családi ház

Mikepércs

56 M Ft
3 + 1 szoba
87 m²
Püspökladány
Eladó családi ház

Püspökladány

49.8 M Ft
5 szoba
150 m²
Hajdúböszörmény
Eladó családi ház

Hajdúböszörmény

137 M Ft
6 szoba
240 m²
Debrecen, Kertváros, Kosztolányi Dezső utca
Eladó családi ház

Debrecen

220 M Ft
7 szoba
210 m²

Falusi CSOK ingatlanok

Badacsonytomaj
Eladó családi ház

Badacsonytomaj

285 M Ft
4 szoba
230 m²
Kunadacs
Eladó családi ház

Kunadacs

80 M Ft
4 szoba
148 m²
Szigliget, Soponyai út
Eladó ikerház

Szigliget

429 M Ft
7 + 2 szoba
212 m²
Marcalgergelyi
Eladó családi ház

Marcalgergelyi

31 M Ft
2 + 1 szoba
120 m²
Csurgó
Eladó családi ház

Csurgó

29 M Ft
3 szoba
80 m²
Egerbakta
Eladó családi ház

Egerbakta

43.9 M Ft
5 + 1 szoba
160 m²
Kondoros
Eladó családi ház

Kondoros

25 M Ft
4 szoba
150 m²
Zsombó
Eladó családi ház

Zsombó

29.9 M Ft
2 szoba
55 m²

Falusi CSOK ingatlanok

Levelek
Eladó családi ház

Levelek

74 M Ft
6 + 1 szoba
190 m²
Győrság
Eladó családi ház

Győrság

79.9 M Ft
4 szoba
92 m²
Zsombó
Eladó családi ház

Zsombó

29.9 M Ft
2 szoba
55 m²
Hahót
Eladó családi ház

Hahót

48 M Ft
4 + 1 szoba
110 m²
Nagykarácsony
Eladó családi ház

Nagykarácsony

34.9 M Ft
3 szoba
112 m²
Kiszombor, Óbébai utca
Eladó családi ház

Kiszombor

32.9 M Ft
4 szoba
140 m²
Márianosztra
Eladó családi ház

Márianosztra

38 M Ft
4 szoba
75 m²
Bag
Eladó családi ház

Bag

16.9 M Ft
6 szoba
160 m²