Aerogate Homes

Eladó családi ház
Mezőkövesd

+ 14 kép 1/17
19 900 000 Ft19.9 M Ft 261 842 Ft/m2
2 szoba
76 m²
építés éve:1960

Részletes adatok

Állapot: Átlagos
Telekméret: 791 m2
Fűtés: Gázkonvektor
Energetikai besorolás: Nem adta meg a hirdető

Az OTP Bank lakáshitel ajánlataFizetett hirdetés

+36 20 361
Spéth Gábor György
OTP Ingatlanpont Miskolc Szemere

Érdekel az OTP Bank kedvezményes lakáshitel ajánlata? *

* A kérdésre „Igen” válasz bejelölése esetén, az „Üzenet küldése” gombra kattintva kijelentem, hogy az OTP Bank Nyrt. Adatkezelési tájékoztatójának tartalmát megismertem és tudomásul vettem.

Eladó családi ház leírása

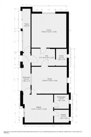
Eladásra kínálok egy 76 m2 alapterületű, 2 szobás, hagyományos hosszú parasztház jellegű ingatlant, amely egy 791 m2-es telken helyezkedik el.

Az épület falazata vályog és tégla, stabil szerkezeti alapokkal. A villamos hálózat részben felújításra került, a vezetékek műanyag védőcsövekben kerültek elhelyezésre a falakban, ami a további korszerűsítést is megkönnyíti.

Fűtése konvektorral megoldott. Az ingatlan korszerűsítést igényel, ugyanakkor méretének és adottságainak köszönhetően kiváló alap lehet egy saját igényekre szabott otthon kialakításához.

A 791 m2-es telek ideális kert, veteményes, pihenőkert vagy akár további fejlesztési lehetőségek kialakítására is.

Ajánlott mindazok számára, akik értéket látnak a hagyományos parasztház hangulatban, és egy jó adottságú ingatlant keresnek elérhető áron.

OTP Banki hátterünknek köszönhetően finanszírozási igényekben (pl. Otthon Start Program, Babaváró, Falusi CSOK, CSOK Plusz, Lakáshitel, Személyi kölcsön stb.), illetve biztosítások tekintetében is díjmentesen, soron kívüli ügyintézéssel segítem ügyfeleim! Referenciaszám: M322999

Hirdetés feltöltve: 2026. 04. 01.

2 szobás családi házak ára Mezőkövesden

Ebből az összehasonlításból megtudhatod, hogyan viszonyul a lakás ára a környékbeli családi házak átlagos árához. Ez nem azt jelenti, hogy ennyivel olcsóbb vagy drágább, mint amennyit a lakás ér, hanem hogy ennyivel tér el a környékbeli átlagtól.

Ennek a m² ára
Mezőkövesd m² ár
262 e Ft
331 e Ft 21%
Ennek az ára
Mezőkövesd átlagár
19.9 M Ft m Ft
22.4 m Ft 11%

Az ingatlan elhelyezkedése

Cím: Mezőkövesd

Eladó családi házak a környékről

Mezőkövesd
Eladó családi ház

Mezőkövesd

69.5 M Ft
3 szoba
85 m²
Mezőkövesd
Eladó családi ház

Mezőkövesd

34.99 M Ft
2 + 1 szoba
91 m²
Mezőkövesd
Eladó családi ház

Mezőkövesd

79 M Ft
3 + 2 szoba
130 m²
Mezőkövesd
Eladó családi ház

Mezőkövesd

59 M Ft
5 szoba
212 m²
Mezőkövesd
Eladó családi ház

Mezőkövesd

44.8 M Ft
3 szoba
70 m²
Tiszalúc
Eladó családi ház

Tiszalúc

19.9 M Ft
4 szoba
180 m²
Miskolc
Eladó családi ház

Miskolc

110 M Ft
6 szoba
199 m²
Mezőkövesd
Eladó családi ház

Mezőkövesd

34.99 M Ft
2 + 1 szoba
91 m²
Mezőkövesd
Eladó családi ház

Mezőkövesd

20.5 M Ft
2 szoba
50 m²
Rudabánya
Eladó családi ház

Rudabánya

19.9 M Ft
5 szoba
140 m²
Miskolc
Eladó családi ház

Miskolc

25.9 M Ft
4 szoba
148 m²
Mezőkövesd
Eladó családi ház

Mezőkövesd

67.5 M Ft
3 szoba
130 m²
Mezőkövesd
Eladó családi ház

Mezőkövesd

34.99 M Ft
2 + 1 szoba
91 m²
Taktaszada, Thököly utca
Eladó családi ház

Taktaszada

37 M Ft
4 + 1 szoba
190 m²
Putnok
Eladó családi ház

Putnok

11 M Ft
3 szoba
79 m²
Miskolc
Eladó családi ház

Miskolc

149 M Ft
4 szoba
463 m²
Mezőkövesd
Eladó családi ház

Mezőkövesd

34.99 M Ft
2 + 1 szoba
91 m²
Mezőkövesd
Eladó családi ház

Mezőkövesd

34.99 M Ft
2 + 1 szoba
91 m²
Miskolc
Eladó családi ház

Miskolc

54.99 M Ft
4 szoba
103 m²
Gönc
Eladó családi ház

Gönc

20.5 M Ft
2 szoba
80 m²
Mezőkövesd
Eladó családi ház

Mezőkövesd

20.5 M Ft
2 szoba
50 m²
Mezőkövesd
Eladó családi ház

Mezőkövesd

20.5 M Ft
2 szoba
50 m²
Mezőkövesd
Eladó családi ház

Mezőkövesd

44.8 M Ft
3 szoba
70 m²
Miskolc
Eladó családi ház

Miskolc

25.9 M Ft
4 szoba
148 m²

Falusi CSOK ingatlanok

Kenyeri
Eladó családi ház

Kenyeri

39.9 M Ft
3 szoba
94 m²
Szob
Eladó sorház

Szob

16 M Ft
2 szoba
45 m²
Bakonycsernye
Eladó családi ház

Bakonycsernye

39 M Ft
3 szoba
350 m²
Tápióbicske, Nagykátai út
Eladó családi ház

Tápióbicske

14.9 M Ft
3 szoba
70 m²
Tápiógyörgye
Eladó családi ház

Tápiógyörgye

24.99 M Ft
6 + 1 szoba
153 m²
Tápióság
Eladó családi ház

Tápióság

59.9 M Ft
4 szoba
99 m²
Tápióbicske
Eladó ikerház

Tápióbicske

93.5 M Ft
7 szoba
136 m²
Farmos
Eladó családi ház

Farmos

59.9 M Ft
4 szoba
90 m²