Eladó családi ház
Maglód

+ 4 kép 1/7
145 000 000 Ft145 M Ft 929 487 Ft/m2
4 szoba
156 m2
építés éve:2025

Részletes adatok

Telekméret: 950 m2
Fűtés: Egyéb
Energetikai besorolás: Nem adta meg a hirdető

Az OTP Bank lakáshitel ajánlataFizetett hirdetés

+36 1 690
Drong Sándor
referens

Érdekel az OTP Bank kedvezményes lakáshitel ajánlata? *

* A kérdésre „Igen” válasz bejelölése esetén, az „Üzenet küldése” gombra kattintva kijelentem, hogy az OTP Bank Nyrt. Adatkezelési tájékoztatójának tartalmát megismertem és tudomásul vettem.

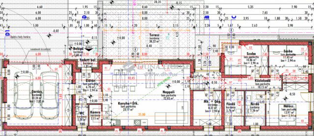
Eladó családi ház leírása

Új építésű, önálló 156 nm családi házat kínálunk eladásra 950 négyzetméteres telken Maglód közkedvelt részén, családi házas környezetben a Klenovatelepen.
Az ingatlan belső elrendezése kifogástalan, a tervezés során kiemelt figyelmet fordítottak a térkihasználás optimalizálására és az élhetőség maximalizálására.
A nappali és amerikai konyhás étkező belmagassága 2,94 méter, ami pedig tágasabb érzetet kölcsönöz.

Főbb paraméterek:
Nappali, konyha + étkező, kamra
3 tágas szoba, melyből kettő terasz kapcsolatos
2 fürdő, külön vendég mosdó
mosókonyha és gépház
két terasz
dupla garázs

Minőségi burkolatok és szaniterek - igény szerint választhatóak még

Padlófűtés + hőszivattyús hűtés-fűtés rendszer

Motoros redőnyök

Buszmegálló sétatávra, közelben iskola, óvoda, bevásárlási lehetőségek .
Érd: 06 30 386 50 54

Referencia szám: HZ040998

Hirdetés feltöltve: 2025. 09. 13. Utoljára módosítva: 2025. 09. 17.

4 szobás családi házak ára Maglódon

Ebből az összehasonlításból megtudhatod, hogyan viszonyul a lakás ára a környékbeli családi házak átlagos árához. Ez nem azt jelenti, hogy ennyivel olcsóbb vagy drágább, mint amennyit a lakás ér, hanem hogy ennyivel tér el a környékbeli átlagtól.

Ennek a m² ára
Maglód m² ár
929 e Ft
786 e Ft -18%
Ennek az ára
Maglód átlagár
145 M Ft m Ft
122.5 m Ft -18%

Az ingatlan elhelyezkedése

Cím: Maglód

Eladó családi házak a környékről

Eladó családi ház
Eladó családi ház

Budaörs, Városközpont utca

119.5 M Ft
5 + 1 szoba
140 m2
Eladó családi ház
Eladó családi ház

Maglód

109.99 M Ft
6 szoba
179 m2
Eladó családi ház
Eladó családi ház

Érd

382 M Ft
6 szoba
420 m2
Eladó családi ház
Eladó családi ház

Dunavarsány

46.9 M Ft
3 + 2 szoba
130 m2
Eladó családi ház
Eladó családi ház

Maglód

82.99 M Ft
5 szoba
150 m2
Eladó családi ház
Eladó családi ház

Budakeszi, Budakeszi kertváros

140 M Ft
2 szoba
55 m2
Eladó családi ház
Eladó családi ház

Maglód

134.9 M Ft
4 szoba
193 m2
Eladó családi ház
Eladó családi ház

Maglód

109.9 M Ft
3 + 2 szoba
132 m2
Eladó családi ház
Eladó családi ház

Maglód, Irányi Dániel utca

114.99 M Ft
5 szoba
117 m2
Eladó családi ház
Eladó családi ház

Kerepes

199 M Ft
6 szoba
360 m2
Eladó családi ház
Eladó családi ház

Tápiószele

37.9 M Ft
4 szoba
141 m2
Eladó családi ház
Eladó családi ház

Érd

164.9 M Ft
5 szoba
192 m2
Eladó családi ház
Eladó családi ház

Maglód

109.9 M Ft
3 + 2 szoba
132 m2
Eladó családi ház
Eladó családi ház

Maglód

134.9 M Ft
4 szoba
193 m2
Eladó családi ház
Eladó családi ház

Maglód

335 M Ft
7 szoba
245 m2
Eladó családi ház
Eladó családi ház

Tápiószentmárton

7.9 M Ft
2 + 1 szoba
86 m2
Eladó családi ház
Eladó családi ház

Szigetszentmiklós, Városközpont, Tököli út közeli utca

120 M Ft
7 szoba
525 m2
Eladó családi ház
Eladó családi ház

Tápiógyörgye

19.9 M Ft
3 szoba
65 m2
Eladó családi ház
Eladó családi ház

Dunakeszi

250 M Ft
4 szoba
180 m2
Eladó családi ház
Eladó családi ház

Dunavarsány

69.9 M Ft
3 + 1 szoba
140 m2
Eladó családi ház
Eladó családi ház

Maglód

59 M Ft
2 szoba
70 m2
Eladó családi ház
Eladó családi ház

Budakeszi, Makkosmária

100 M Ft
1 szoba
10 m2
Eladó családi ház
Eladó családi ház

Maglód

95.5 M Ft
3 szoba
106 m2
Eladó családi ház
Eladó családi ház

Pécel, Reményik Sándor utca

296 M Ft
6 szoba
396 m2

Falusi CSOK ingatlanok

Eladó családi ház
Eladó családi ház

Szil

25 M Ft
2 szoba
90 m2
Eladó sorház
Eladó sorház

Szob

16 M Ft
2 szoba
45 m2
Eladó családi ház
Eladó családi ház

Tápiószőlős

34 M Ft
1 + 2 szoba
85 m2
Eladó családi ház
Eladó családi ház

Vásárosdombó

14.99 M Ft
2 szoba
69 m2
Eladó családi ház
Eladó családi ház

Szerecseny, Petőfi Sándor

25.9 M Ft
3 szoba
92 m2
Eladó családi ház
Eladó családi ház

Kislőd

44.9 M Ft
3 szoba
115 m2
Eladó családi ház
Eladó családi ház

Szilvágy

49.99 M Ft
3 szoba
90 m2
Eladó családi ház
Eladó családi ház

Tüskevár

19.9 M Ft
4 szoba
95 m2