City Pearl

Eladó családi ház
Levelek

Figyelem!

Ez az ingatlan a 2019.07.01-től induló falusi CSOK által támogatott településen található

+ 17 kép 1/20
39 000 000 Ft39 M Ft 423 913 Ft/m2
4 szoba
92 m²
építés éve:1995

Részletes adatok

Állapot: Felújítandó
Telekméret: 1301 m2
Fűtés: Gázkonvektor
Energetikai besorolás: D

Az OTP Bank lakáshitel ajánlataFizetett hirdetés

+36 30 864
Pristyákné Petneházi Éva Zsuzsanna
referens

Érdekel az OTP Bank kedvezményes lakáshitel ajánlata? *

* A kérdésre „Igen” válasz bejelölése esetén, az „Üzenet küldése” gombra kattintva kijelentem, hogy az OTP Bank Nyrt. Adatkezelési tájékoztatójának tartalmát megismertem és tudomásul vettem.

Eladó családi ház leírása

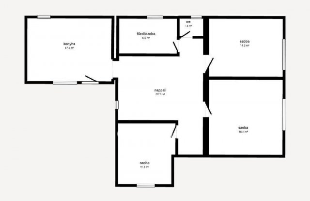
Leveleken eladó egy 92 nm-es, földszintes családi ház, amely 1995-ben épült, szilikát falazattal.
Az ingatlan a település egyik legkedveltebb, csendes és rendezett utcájában található, barátságos szomszédságban. Kiváló elhelyezkedésének köszönhetően minden fontos szolgáltatás könnyen elérhető. A ház egyik legnagyobb előnye a jól átgondolt, praktikus elrendezés.
A tágas konyha-étkező mellett egy 22,7 nm-es nappali kapott helyet, amelyből három külön nyíló, kényelmes méretű szoba érhető el. A fürdőszoba és a WC külön helyiségben található.
Az ingatlan néhány éve új lemeztetőt kapott, így ezzel már nem lesz teendője az új tulajdonosnak. A fűtést gázkonvektorok biztosítják. A nyílászárók részben fából készültek, a bejárati ajtó modern műanyag.
A 1301 nm-es telken egy tágas garázs, valamint két fedett terasz is helyet kapott, ideális lehetőséget nyújtva pihenésre vagy akár nagyobb családi összejövetelek lebonyolítására.
A közelben található a leveleki tó, amely számos kikapcsolódási és szabadidős lehetőséget kínál.
Az ingatlan kisebb ráfordítással igazi otthonná varázsolható. Nyíregyháza mindössze 20 km-re található, így a város könnyen és gyorsan megközelíthető.

OTP Banki hátterünknek köszönhetően finanszírozási igényekben (pl. Otthon Start Hitelprogram, Babaváró, Falusi CSOK, CSOK Plusz, Lakáshitel, Személyi kölcsön stb.), illetve biztosítások tekintetében is díjmentesen, soron kívüli ügyintézéssel segítem ügyfeleim! Referenciaszám: M326527

Virtuális séta:

Hirdetés feltöltve: 2026. 04. 25. Utoljára módosítva: 2026. 04. 25.

Az ingatlan elhelyezkedése

Cím: Levelek

Eladó családi házak a környékről

Nyírtelek
Eladó családi ház

Nyírtelek

130 M Ft
3 szoba
159 m²
Nyíregyháza
Eladó családi ház

Nyíregyháza

63.9 M Ft
2 + 1 szoba
100 m²
Nyíregyháza
Eladó családi ház

Nyíregyháza

69.9 M Ft
3 szoba
140 m²
Nyíregyháza
Eladó családi ház

Nyíregyháza

100 M Ft
4 szoba
220 m²
Levelek
Eladó családi ház

Levelek

47.5 M Ft
1 szoba
48 m²
Levelek
Eladó családi ház

Levelek

15.5 M Ft
1 + 1 szoba
61 m²
Nyíregyháza
Eladó családi ház

Nyíregyháza

140 M Ft
3 szoba
190 m²
Nyíregyháza
Eladó családi ház

Nyíregyháza

150 M Ft
2 szoba
120 m²
Levelek
Eladó családi ház

Levelek

140 M Ft
4 szoba
240 m²
Levelek
Eladó családi ház

Levelek

73 M Ft
5 szoba
220 m²
Nagyhalász
Eladó családi ház

Nagyhalász

20 M Ft
2 szoba
57 m²
Levelek
Eladó családi ház

Levelek

15.5 M Ft
1 + 1 szoba
61 m²
Nyíregyháza
Eladó családi ház

Nyíregyháza

90 M Ft
3 szoba
170 m²
Levelek
Eladó családi ház

Levelek

15.5 M Ft
1 + 1 szoba
61 m²
Napkor
Eladó családi ház

Napkor

115 M Ft
5 szoba
292 m²
Levelek
Eladó családi ház

Levelek

40 M Ft
1 + 1 szoba
168 m²
Nyíregyháza
Eladó családi ház

Nyíregyháza

190 M Ft
4 szoba
230 m²
Levelek
Eladó családi ház

Levelek

15.5 M Ft
1 + 1 szoba
61 m²
Levelek
Eladó családi ház

Levelek

15.5 M Ft
1 + 1 szoba
61 m²
Levelek
Eladó családi ház

Levelek

30 M Ft
3 szoba
130 m²
Nyíregyháza
Eladó családi ház

Nyíregyháza

90 M Ft
5 szoba
210 m²
Kemecse
Eladó családi ház

Kemecse

34.9 M Ft
2 szoba
100 m²
Levelek
Eladó családi ház

Levelek

39 M Ft
3 szoba
86 m²
Nyíregyháza
Eladó családi ház

Nyíregyháza

98 M Ft
4 szoba
125 m²

Falusi CSOK ingatlanok

Badacsonytördemic
Eladó családi ház

Badacsonytördemic

86 M Ft
4 szoba
110 m²
Tibolddaróc
Eladó családi ház

Tibolddaróc

12 M Ft
2 szoba
56 m²
Balatonőszöd
Eladó téglalakás

Balatonőszöd

167 M Ft
4 szoba
81 m²
Sárosd
Eladó családi ház

Sárosd

21.9 M Ft
3 szoba
86 m²
Balatonszárszó
Eladó családi ház

Balatonszárszó

30 M Ft
3 szoba
45 m²
Bükkszék
Eladó családi ház

Bükkszék

78.9 M Ft
2 + 1 szoba
160 m²
Enese
Eladó családi ház

Enese

94.99 M Ft
3 + 1 szoba
124 m²
Felsőlajos
Eladó családi ház

Felsőlajos

100 M Ft
4 szoba
140 m²

Falusi CSOK ingatlanok

Badacsonytomaj
Eladó családi ház

Badacsonytomaj

285 M Ft
4 szoba
230 m²
Taszár
Eladó családi ház

Taszár

58.9 M Ft
2 + 1 szoba
91 m²
Apaj
Eladó családi ház

Apaj

52.9 M Ft
3 szoba
70 m²
Hosszúhetény, Petőfi Sándor utca 10
Eladó családi ház

Hosszúhetény

20.65 M Ft
4 + 2 szoba
133 m²
Bázakerettye
Eladó ikerház

Bázakerettye

30 M Ft
3 + 1 szoba
55 m²
Galgahévíz
Eladó családi ház

Galgahévíz

135 M Ft
26 szoba
1091 m²
Szarvaskő, Rózsa utca
Eladó családi ház

Szarvaskő

54.9 M Ft
1 + 3 szoba
140 m²
Hegyeshalom, Margaréta utca 12
Eladó téglalakás

Hegyeshalom

35.92 M Ft
1 szoba
31 m²