Pesti Házak

Eladó családi ház
Lakitelek

+ 4 kép 1/7
28 900 000 Ft28.9 M Ft 825 714 Ft/m2
3 szoba
35 m2

Részletes adatok

Állapot: Átlagos
Telekméret: 396 m2
Fűtés: Gázkonvektor
Energetikai besorolás: Nem adta meg a hirdető

Az OTP Bank lakáshitel ajánlataFizetett hirdetés

+36 70 798
Seres Alexandra
HOUSE36 Ingatlanbázis Kft.

Érdekel az OTP Bank kedvezményes lakáshitel ajánlata? *

* A kérdésre „Igen” válasz bejelölése esetén, az „Üzenet küldése” gombra kattintva kijelentem, hogy az OTP Bank Nyrt. Adatkezelési tájékoztatójának tartalmát megismertem és tudomásul vettem.

Eladó családi ház leírása

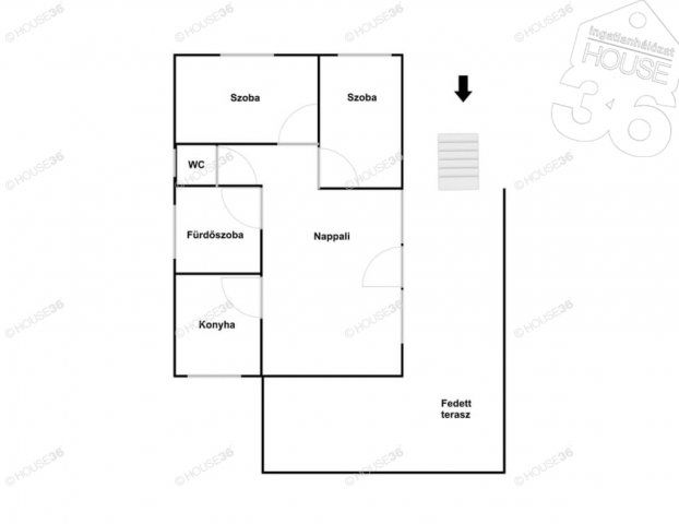
Eladó hétvégi ház Lakitelek-Tőserdő központjában!
Lakitelek közkedvelt részén, Tőserdő központjában eladó egy tégla építésű, nappali + 2 félszobás hétvégi ház, amely fűtött, így akár lakóingatlannak is kiválóan alkalmas. A 396 m2-es telken elhelyezkedő ingatlan 35 m2-es lakóteret, valamint 15 m2 fedett teraszt és pincét kínál, kellemes, gondozott környezetben.

Főbb jellemzők:
- Tégla építésű, jó állapotú ház
- Nappali + 2 félszoba elosztás
- Konvektoros fűtés
- Fa nyílászárók szúnyoghálóval
- 15 m2 fedett terasz
- Pince és kerti sütögető
- 396 m2-es telek
- közművek: villany, gáz, városi víz, fúrt kút

Az ingatlan „hétvégi ház” megjelölésű, ezért lakáshitelre nem alkalmas.

Képzelje el, ahogy Tőserdő csendes, zöld környezetében pihen, mindössze néhány lépésre a központtól, mégis természetközelben. Ez a hangulatos, tégla építésű hétvégi ház nemcsak nyaralásra, hanem akár egész éves lakhatásra is alkalmas – ahol a nyugalom és a kényelem találkozik.

Ne maradjon le erről a ritka lehetőségről! Ha Ön is egy rendezett, jól megközelíthető, de mégis természetközeli ingatlant keres Lakiteleken, keressen bizalommal, és tekintse meg személyesen ezt a bájos házat Tőserdő szívében.

Figyelem az adatlap megbízónktól kapott adatok alapján készült, pontosságáért felelősséget nem tudunk vállalni!
​Amennyiben eladó-kiadó ingatlana van, vagy finanszírozási megoldást keres, hívjon, megtaláljuk a legjobb lehetőséget önnek!
A HOUSE36 kínálatában található összes ingatlannal kapcsolatban tudok felvilágosítást nyújtani!
Hívjon bizalommal!
Szolgáltatásaink Kereső ügyfeleink számára INGYENESEK!
Az iroda legfrissebb, aktuális kínálatát a HOUSE36 saját weboldalán találja!

Hirdetés feltöltve: 2025. 11. 11. Utoljára módosítva: 2025. 11. 11.

3 szobás családi házak ára Lakitelken

Ebből az összehasonlításból megtudhatod, hogyan viszonyul a lakás ára a környékbeli családi házak átlagos árához. Ez nem azt jelenti, hogy ennyivel olcsóbb vagy drágább, mint amennyit a lakás ér, hanem hogy ennyivel tér el a környékbeli átlagtól.

Ennek a m² ára
Lakitelek m² ár
826 e Ft
414 e Ft -100%
Ennek az ára
Lakitelek átlagár
28.9 M Ft m Ft
39.1 m Ft 26%

Az ingatlan elhelyezkedése

Cím: Lakitelek

Eladó családi házak a környékről

Eladó családi ház
Eladó családi ház

Kecskemét

9.9 M Ft
2 szoba
30 m2
Eladó családi ház
Eladó családi ház

Lakitelek

36.9 M Ft
3 szoba
80 m2
Eladó családi ház
Eladó családi ház

Lakitelek

48.5 M Ft
5 szoba
150 m2
Eladó családi ház
Eladó családi ház

Dunavecse

88.49 M Ft
8 szoba
378 m2
Eladó családi ház
Eladó családi ház

Lakitelek

279 M Ft
4 szoba
140 m2
Eladó családi ház
Eladó családi ház

Lakitelek

44.9 M Ft
4 szoba
75 m2
Eladó családi ház
Eladó családi ház

Lakitelek

120.5 M Ft
3 szoba
178 m2
Eladó családi ház
Eladó családi ház

Fajsz

12 M Ft
4 szoba
129 m2
Eladó családi ház
Eladó családi ház

Kunadacs

210 M Ft
14 szoba
920 m2
Eladó családi ház
Eladó családi ház

Lakitelek

279 M Ft
4 szoba
140 m2
Eladó családi ház
Eladó családi ház

Kecskemét

93 M Ft
3 szoba
140 m2
Eladó családi ház
Eladó családi ház

Lakitelek

53 M Ft
3 + 2 szoba
150 m2
Eladó családi ház
Eladó családi ház

Lakitelek

61 M Ft
3 + 1 szoba
155 m2
Eladó családi ház
Eladó családi ház

Kecskemét

135 M Ft
5 szoba
220 m2
Eladó családi ház
Eladó családi ház

Lakitelek

53 M Ft
3 + 2 szoba
150 m2
Eladó családi ház
Eladó családi ház

Kecskemét

129.8 M Ft
5 szoba
138 m2
Eladó családi ház
Eladó családi ház

Tiszakécske, Kolozsvári utca

17.9 M Ft
3 szoba
95 m2
Eladó családi ház
Eladó családi ház

Kecskemét, Alsószéktó, Alsószéktó 138

58 M Ft
5 szoba
92 m2
Eladó családi ház
Eladó családi ház

Kecskemét, Alsószéktó, Alsószéktó 138

55 M Ft
5 szoba
91 m2
Eladó családi ház
Eladó családi ház

Bugac

9.8 M Ft
4 szoba
67 m2
Eladó családi ház
Eladó családi ház

Kecskemét, Alsószéktó, Alsószéktó 138

65 M Ft
5 szoba
98 m2
Eladó családi ház
Eladó családi ház

Kiskunmajsa, 1

60.9 M Ft
6 szoba
220 m2
Eladó családi ház
Eladó családi ház

Fajsz

12 M Ft
3 szoba
128 m2
Eladó családi ház
Eladó családi ház

Kiskunhalas

47 M Ft
12428 m²
183 m2

Falusi CSOK ingatlanok

Eladó családi ház
Eladó családi ház

Pannonhalma

76.4 M Ft
4 szoba
97 m2
Eladó téglalakás
Eladó téglalakás

Balatonszemes

110.9 M Ft
2 szoba
60 m2
Eladó családi ház
Eladó családi ház

Akasztó

13.9 M Ft
3 szoba
103 m2
Eladó családi ház
Eladó családi ház

Kemeneshőgyész

6.9 M Ft
3 szoba
124 m2
Eladó családi ház
Eladó családi ház

Kemence, Fő utca

25 M Ft
3 szoba
91 m2
Eladó családi ház
Eladó családi ház

Karád

29.9 M Ft
4 szoba
150 m2
Eladó családi ház
Eladó családi ház

Csengőd, Tompa Mihály utca

34 M Ft
2 szoba
81 m2
Eladó családi ház
Eladó családi ház

Bősárkány

46.99 M Ft
3 szoba
86 m2