Aerogate Homes

Eladó családi ház
Kulcs

79 900 000 Ft79.9 M Ft 682 906 Ft/m2
4 szoba
117 m²
építés éve:2026

Részletes adatok

Telekméret: 1422 m2
Fűtés: Egyéb
Energetikai besorolás: Nem adta meg a hirdető

Az OTP Bank lakáshitel ajánlataFizetett hirdetés

+36 70 599
Marczi Aletta
Szigetszentmiklós OTP Ip

Érdekel az OTP Bank kedvezményes lakáshitel ajánlata? *

* A kérdésre „Igen” válasz bejelölése esetén, az „Üzenet küldése” gombra kattintva kijelentem, hogy az OTP Bank Nyrt. Adatkezelési tájékoztatójának tartalmát megismertem és tudomásul vettem.

Eladó családi ház leírása

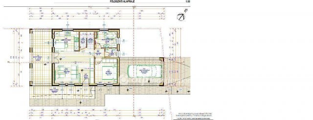
Kulcson, Fejér vármegyében kínálunk eladásra egy modern, új építésű, 117 nm-es családi házat, amely egy 1422 nm-es, tágas telken található. Az épület borovi fenyő falvázzal és betonalappal készül, 15 cm-es kőzetgyapot szigeteléssel, így kimagasló energetikai hatékonyságot biztosít. A ház fűtéséről és hűtéséről hőszivattyús klímák gondoskodnak majd, valamint egy 5 kW teljesítményű napelemrendszer is telepítésre kerül, amely tovább csökkenti a rezsiköltségeket.
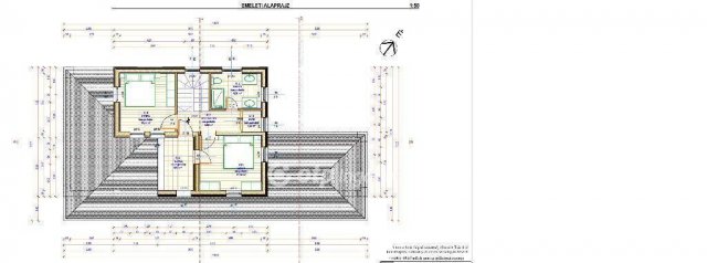
A földszinten egy előtér, hálószoba, fürdő, külön WC, valamint egy tágas, amerikai konyhás nappali-étkező kerül kialakításra. Az emeletre vezető lépcső egy kényelmes, világos térbe vezet majd, ahol két hálószoba, egy dolgozószoba, egy gardrób és egy fürdőszoba kap helyet. Az emeleti szobákhoz közös terasz is tartozik, amely tökéletes helyszín a pihenéshez és kikapcsolódáshoz.
Az ingatlan ideális választás mindazok számára, akik Kulcs kedvelt részén keresnek új építésű, környezettudatos, kényelmes otthont. A ház építése során a minőségi anyaghasználat és az átgondolt tervezés volt a fő szempont, így egy modern, időtálló otthon várja új tulajdonosát.

Az energetikai tanúsítvány készítése folyamatban van, amint rendelkezésre áll, úgy azzal a hirdetés frissítésre kerül.

Hirdetés feltöltve: 2026. 04. 08. Utoljára módosítva: 2026. 05. 10.

Az ingatlan elhelyezkedése

Cím: Kulcs

Eladó családi házak a környékről

Pusztaszabolcs
Eladó családi ház

Pusztaszabolcs

143.9 M Ft
4 szoba
149 m²
Felcsút, Rákóczi Ferenc utca
Eladó családi ház

Felcsút

32 M Ft
2 + 1 szoba
55 m²
Kulcs
Eladó családi ház

Kulcs

20.8 M Ft
2 szoba
45 m²
Kulcs
Eladó családi ház

Kulcs

20.8 M Ft
2 szoba
45 m²
Velence, Liget utca
Eladó családi ház

Velence

149 M Ft
2 + 2 szoba
150 m²
Mány
Eladó családi ház

Mány

18.5 M Ft
3 szoba
70 m²
Kulcs
Eladó családi ház

Kulcs

64.9 M Ft
5 szoba
166 m²
Székesfehérvár
Eladó családi ház

Székesfehérvár

59 M Ft
3 szoba
100 m²
Kulcs
Eladó családi ház

Kulcs

20.8 M Ft
2 szoba
45 m²
Csákvár
Eladó családi ház

Csákvár

29.9 M Ft
4 szoba
120 m²
Kulcs
Eladó családi ház

Kulcs

72 M Ft
4 szoba
117 m²
Gánt, Gánti út
Eladó családi ház

Gánt

29.9 M Ft
2 + 1 szoba
40 m²
Etyek
Eladó családi ház

Etyek

160 M Ft
6 szoba
228 m²
Kulcs
Eladó családi ház

Kulcs

180 M Ft
8 szoba
167 m²
Kulcs
Eladó családi ház

Kulcs

64.9 M Ft
5 szoba
166 m²
Kulcs
Eladó családi ház

Kulcs

31.9 M Ft
2 szoba
50 m²
Kulcs
Eladó családi ház

Kulcs

180 M Ft
8 szoba
167 m²
Kulcs
Eladó családi ház

Kulcs

64.9 M Ft
5 szoba
166 m²
Adony
Eladó családi ház

Adony

8 M Ft
2 szoba
30 m²
Kulcs
Eladó családi ház

Kulcs

190 M Ft
4 szoba
236 m²
Mór
Eladó családi ház

Mór

110 M Ft
12 szoba
340 m²
Alcsútdoboz, Szabadság utca
Eladó családi ház

Alcsútdoboz

320 M Ft
12 szoba
620 m²
Kulcs
Eladó családi ház

Kulcs

25 M Ft
4 szoba
40 m²
Kulcs
Eladó családi ház

Kulcs

60 M Ft
2 szoba
50 m²

Falusi CSOK ingatlanok

Bak
Eladó családi ház

Bak

49.9 M Ft
5 szoba
140 m²
Halimba
Eladó családi ház

Halimba

59.9 M Ft
6 szoba
182 m²
Segesd
Eladó családi ház

Segesd

79.9 M Ft
8 szoba
500 m²
Berzence
Eladó családi ház

Berzence

14.9 M Ft
4 szoba
132 m²
Balatonszemes
Eladó téglalakás

Balatonszemes

125.2 M Ft
2 szoba
50 m²
Tápiógyörgye
Eladó családi ház

Tápiógyörgye

22.5 M Ft
3 + 1 szoba
83 m²
Nagykarácsony
Eladó családi ház

Nagykarácsony

34.9 M Ft
3 szoba
112 m²
Igal
Eladó családi ház

Igal

45.9 M Ft
5 szoba
280 m²