Aerogate Homes

Eladó családi ház
Kölesd

Figyelem!

Ez az ingatlan a 2019.07.01-től induló falusi CSOK által támogatott településen található

+ 16 kép 1/19
12 320 000 Ft12.32 M Ft 141 609 Ft/m2
3 szoba
87 m²
építés éve:1970

Részletes adatok

Állapot: Felújítandó
Telekméret: 1226 m2
Fűtés: Egyéb
Parkolás: Kocsibeálló
Közmű: Víz, Gáz, Villany
Energetikai besorolás: G

Az OTP Bank lakáshitel ajánlataFizetett hirdetés

+36 30 509
Juhász Ingatlan
Juhász Ingatlan

Érdekel az OTP Bank kedvezményes lakáshitel ajánlata? *

* A kérdésre „Igen” válasz bejelölése esetén, az „Üzenet küldése” gombra kattintva kijelentem, hogy az OTP Bank Nyrt. Adatkezelési tájékoztatójának tartalmát megismertem és tudomásul vettem.

Eladó családi ház leírása

Tolna vármegye Kölesd településen részben felújított 87 m²-es családi ház eladó.
Ingatlan részletei:
Típus:Családi ház
Telek mérete:1226m²
Elhelyezkedés: Tolna vármegye, Kölesd
Alapterület: 87 m²
Szobák száma: 3
Konyha: 1
Fürdőszobák száma: 1
Falazat: Tégla és vályog
Ingatlan leírása:
Az ingatlan Kölesd központhoz közeli részén fekszik. Az ingatlan felújítandó, de a felújítások elkezdődtek. A házban 3 szoba konyha, fürdő, WC ,előszoba került kialakításra. A külső nyílászárók cserélve lettek műanyagra.Új víz és villany hálózat lett kiépítve.Falak és a mennyezet gipszkarton burkolatot kapott.Jelenleg nincs fűtés az ingatlanba, de gázfűtés kialakítására van lehetőség. Az alábbi közművekkel rendelkezik: víz, villany, gáz.
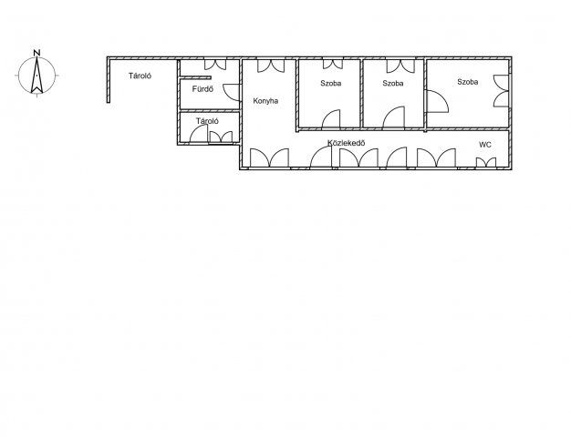
Helyiségek:
Szoba: 22 m²
Szoba: 12,3 m²
Szoba: 17,1 m²
Konyha: 15,2 m²
Fürdő:8 m²
WC:2,5 m²
Előszoba:10m²
Összesen:87m²
A telken található egy kamra illetve egy nyitott tároló .A terület be van kerítve.
Fűtés és meleg víz:
Az ingatlanban fűtés ,és meleg víz nincs.
Ár: 12.000.000 Ft
Ha érdekli az ingatlan, kérjük, lépjen kapcsolatba velünk az alábbi elérhetőségeken:
Elérhetőség:
Telefonszám: +36305090434
Email:juhaszk.ingatlan@gmail.com
· Whatsapp https://wa.me/36305090434 itt ingyenesen tud hívni illetve üzenetet küldeni!
Az ingatlan megtekintéséhez és további információkért hívjon bátran.

Hirdetés feltöltve: 2026. 03. 14. Utoljára módosítva: 2026. 04. 01.

Az ingatlan elhelyezkedése

Cím: Kölesd

Eladó ingatlanok a környékről

Paks
Eladó családi ház

Paks

20 M Ft
3 szoba
88 m²
Dombóvár
Eladó nyaraló

Dombóvár

18.9 M Ft
1 + 1 szoba
33 m²
Nagyszokoly
Eladó családi ház

Nagyszokoly

14.5 M Ft
3 szoba
80 m²
Kölesd
Eladó családi ház

Kölesd

11 M Ft
4 szoba
134 m²
Szekszárd
Eladó telek

Szekszárd

19.9 M Ft
2571 m²
0 m²
Paks
Eladó családi ház

Paks

21.9 M Ft
2 szoba
70 m²
Dombóvár
Eladó családi ház

Dombóvár

9.9 M Ft
3 szoba
70 m²
Bonyhád
Eladó családi ház

Bonyhád

119 M Ft
5 szoba
170 m²
Bonyhád, István utca
Eladó családi ház

Bonyhád

120 M Ft
1 szoba
210 m²
Szekszárd, Palánki út
Eladó telek

Szekszárd

72.48 M Ft
3624 m²
0 m²
Dombóvár, Zrínyi utca
Eladó családi ház

Dombóvár

24.5 M Ft
2 szoba
68 m²
Kalaznó
Eladó családi ház

Kalaznó

8.5 M Ft
2 szoba
85 m²
Dunaszentgyörgy
Eladó családi ház

Dunaszentgyörgy

10.8 M Ft
3 szoba
65 m²
Szekszárd, Bakta, Béri Balogh Ádám utca
Eladó panellakás

Szekszárd

32 M Ft
2 szoba
49 m²
Szekszárd, Belváros, Cinka
Eladó családi ház

Szekszárd

19.9 M Ft
2 szoba
41 m²
Szekszárd, Bakta, Ibolya utca
Eladó telek

Szekszárd

4.747 M Ft
101 m²
0 m²
Paks
Eladó családi ház

Paks

46.9 M Ft
3 szoba
81 m²
Paks
Eladó családi ház

Paks

21.9 M Ft
2 szoba
70 m²
Kölesd
Eladó családi ház

Kölesd

45.9 M Ft
8 szoba
300 m²
Szekszárd
Eladó téglalakás

Szekszárd

85 M Ft
3 szoba
95 m²
Nagykónyi, Temető utca
Eladó családi ház

Nagykónyi

8 M Ft
2 szoba
53 m²
Tolna
Eladó családi ház

Tolna

119 M Ft
3 szoba
130 m²
Szekszárd
Eladó családi ház

Szekszárd

12.5 M Ft
1 szoba
41 m²
Paks
Eladó családi ház

Paks

29.9 M Ft
3 szoba
90 m²

Falusi CSOK ingatlanok

Somogyszentpál
Eladó családi ház

Somogyszentpál

25.3 M Ft
3 szoba
80 m²
Recsk
Eladó családi ház

Recsk

40 M Ft
3 + 1 szoba
110 m²
Fonyód
Eladó téglalakás

Fonyód

175 M Ft
3 szoba
79 m²
Kőröshegy
Eladó családi ház

Kőröshegy

98.9 M Ft
5 szoba
104 m²
Dombrád, Rákóczi út 22
Eladó családi ház

Dombrád

12.74 M Ft
1 + 1 szoba
125 m²
Badacsonytördemic
Eladó családi ház

Badacsonytördemic

90 M Ft
3 szoba
130 m²
Nagykarácsony
Eladó családi ház

Nagykarácsony

34.9 M Ft
3 szoba
112 m²
Bag
Eladó ikerház

Bag

93 M Ft
3 szoba
67 m²

Falusi CSOK ingatlanok

Nagyszénás, Bajcsy-Zsilinszky utca 60
Eladó családi ház

Nagyszénás

11.7 M Ft
1 + 1 szoba
128 m²
Balatonfenyves
Eladó családi ház

Balatonfenyves

179.9 M Ft
5 szoba
210 m²
Apaj
Eladó családi ház

Apaj

52.9 M Ft
3 szoba
70 m²
Enese
Eladó családi ház

Enese

94.99 M Ft
3 + 1 szoba
124 m²
Tibolddaróc
Eladó családi ház

Tibolddaróc

12 M Ft
2 szoba
56 m²
Gölle
Eladó családi ház

Gölle

29.9 M Ft
2 szoba
60 m²
Vilonya
Eladó családi ház

Vilonya

125 M Ft
4 szoba
125 m²
Badacsonytomaj
Eladó családi ház

Badacsonytomaj

285 M Ft
4 szoba
230 m²