Eladó családi ház
Kóka

+ 17 kép 1/20
39 900 000 Ft39.9 M Ft 319 200 Ft/m2
4 + 1 szoba
125 m2
építés éve:2000

Részletes adatok

Állapot: Átlagos
Telekméret: 1517 m2
Fűtés: Gázkazán
Parkolás: Garázs
Energetikai besorolás: Nem adta meg a hirdető

Az OTP Bank lakáshitel ajánlataFizetett hirdetés

+36 70 786
Pröbsztl Gábor Zoltán
referens

Érdekel az OTP Bank kedvezményes lakáshitel ajánlata? *

* A kérdésre „Igen” válasz bejelölése esetén, az „Üzenet küldése” gombra kattintva kijelentem, hogy az OTP Bank Nyrt. Adatkezelési tájékoztatójának tartalmát megismertem és tudomásul vettem.

Eladó családi ház leírása

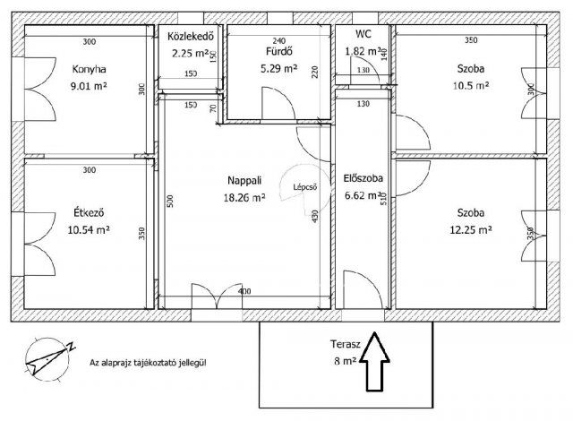
Eladó családi ház Kóka nyugodt csendes részén a központ szélén. A környék és a település is jól fejlődik, minden adott a nyugodt élethez. A hatalmas összközműves telken áll egy tágas emeletes ház amelyet 2000-ben építettek és egy garázs kis kazánházzal. Az épületet gázcirkóval és vegyes tüzeléssel is lehet fűteni radiátorral szerelt minden helyiség. A meleg vizet villanybojler szolgáltatja. Jó elosztása miatt egy illetve két generációnak is ajánlanám, az emeleten egy konyha kialakítható a kisebbik szobából. A ház esztétikailag megkopott és ráfér egy kisebb felújítás. Homlokzati szigetelése 10 cm-es akárcsak a tetőszigetelés. Minden nyílászáró fa kétrétegű üveggel. A fűtés jellemzően 25000 Ft körül alakult havonta. A telken fúrt kút is van annak, aki szeretne öntözni. Mivel jelenleg nem lakják, gyorsan használatba vehető. A ház szerintem sok lehetőséget hordoz magában jöjjön el és tekintse meg!

Teljes körű ügyintézéssel állunk az eladók és a vevők rendelkezésére! A kínálatunkból választott ingatlan finanszírozásához minősített fogyasztóbarát, piaci és kedvezményes hitel- és lízingkonstrukciókat kínálunk (Otthon Start Hitelprogram, lakásvásárlási hitel, szabad felhasználású hitel, babaváró hitel, CSOK Plusz intézés, Otthonfelújítási Támogatás, egyéb felújítási hitelek). Az adásvételi szerződés megkötéséhez igény szerint megbízható ügyvédi közreműködést biztosítunk, és segítséget nyújtunk az adásvételhez kapcsolódó egyéb ügyek intézéséhez.

Amennyiben felkeltettem érdeklődését, hívjon bizalommal! Kérdéseire az esti órákban és hétvégén is szívesen válaszolok! Ha az új ingatlana megvásárlásához a jelenlegi ingatlanát el kell adnia, abban is szívesen segítünk.

Hirdetés feltöltve: 2025. 08. 28. Utoljára módosítva: 2025. 10. 09.

5 szobás családi házak ára Kókán

Ebből az összehasonlításból megtudhatod, hogyan viszonyul a lakás ára a környékbeli családi házak átlagos árához. Ez nem azt jelenti, hogy ennyivel olcsóbb vagy drágább, mint amennyit a lakás ér, hanem hogy ennyivel tér el a környékbeli átlagtól.

Ennek a m² ára
Kóka m² ár
319 e Ft
455 e Ft 30%
Ennek az ára
Kóka átlagár
39.9 M Ft m Ft
68.6 m Ft 42%

Az ingatlan elhelyezkedése

Cím: Kóka

Eladó családi házak a környékről

Eladó családi ház
Eladó családi ház

Budakeszi, Makkosmária

100 M Ft
1 szoba
10 m2
Eladó családi ház
Eladó családi ház

Kóka

65 M Ft
5 szoba
131 m2
Eladó családi ház
Eladó családi ház

Tápiógyörgye

19.9 M Ft
3 szoba
65 m2
Eladó családi ház
Eladó családi ház

Dunavarsány

69.9 M Ft
3 + 1 szoba
140 m2
Eladó családi ház
Eladó családi ház

Kerepes

81.99 M Ft
5 szoba
102 m2
Eladó családi ház
Eladó családi ház

Kóka

41.9 M Ft
2 szoba
52 m2
Eladó családi ház
Eladó családi ház

Sződ, Rátóti utca

149.99 M Ft
11 szoba
270 m2
Eladó családi ház
Eladó családi ház

Kóka

65 M Ft
5 szoba
1424 m2
Eladó családi ház
Eladó családi ház

Kóka

67 M Ft
5 szoba
131 m2
Eladó családi ház
Eladó családi ház

Kóka

67 M Ft
5 szoba
131 m2
Eladó családi ház
Eladó családi ház

Leányfalu

237 M Ft
9 szoba
800 m2
Eladó családi ház
Eladó családi ház

Gyál, Gyál út

169.9 M Ft
2 szoba
90 m2
Eladó családi ház
Eladó családi ház

Kóka

39.9 M Ft
4 + 1 szoba
125 m2
Eladó családi ház
Eladó családi ház

Kóka, Rét utca

11.7 M Ft
4 szoba
112 m2
Eladó családi ház
Eladó családi ház

Kerepes

199 M Ft
6 szoba
360 m2
Eladó családi ház
Eladó családi ház

Kóka

65 M Ft
5 szoba
169 m2
Eladó családi ház
Eladó családi ház

Kóka, Kassai utca

49.9 M Ft
2 szoba
68 m2
Eladó családi ház
Eladó családi ház

Remeteszőlős

399.9 M Ft
5 + 2 szoba
260 m2
Eladó családi ház
Eladó családi ház

Érd

164.9 M Ft
5 szoba
192 m2
Eladó családi ház
Eladó családi ház

Kóka

36 M Ft
2 szoba
63 m2
Eladó családi ház
Eladó családi ház

Kóka, Tabán utca 9

22 M Ft
1 szoba
42 m2
Eladó családi ház
Eladó családi ház

Kóka

55 M Ft
4 szoba
93 m2
Eladó családi ház
Eladó családi ház

Pécel, Reményik Sándor utca

296 M Ft
6 szoba
396 m2
Eladó családi ház
Eladó családi ház

Kóka

31.9 M Ft
2 szoba
117 m2

Falusi CSOK ingatlanok

Eladó családi ház
Eladó családi ház

Újszilvás

14.9 M Ft
2 szoba
50 m2
Eladó családi ház
Eladó családi ház

Makád

140 M Ft
4 szoba
79 m2
Eladó családi ház
Eladó családi ház

Tápióbicske

24.9 M Ft
4 szoba
83 m2
Eladó családi ház
Eladó családi ház

Badacsonytomaj

199.8 M Ft
3 szoba
166 m2
Eladó családi ház
Eladó családi ház

Sárosd

34 M Ft
3 + 2 szoba
95 m2
Eladó családi ház
Eladó családi ház

Vásárosdombó

14.99 M Ft
2 szoba
69 m2
Eladó családi ház
Eladó családi ház

Som

42.9 M Ft
3 szoba
107 m2
Eladó családi ház
Eladó családi ház

Görbeháza

26 M Ft
2 + 1 szoba
90 m2