BAM Living

Eladó családi ház
Kecskemét

+ 12 kép 1/15
127 900 000 Ft127.9 M Ft 666 146 Ft/m2
7 szoba
192 m²
építés éve:1986

Részletes adatok

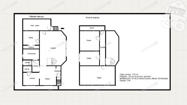
Telekméret: 715 m2
Fűtés: Gázkazán
Energetikai besorolás: Nem adta meg a hirdető

Az OTP Bank lakáshitel ajánlataFizetett hirdetés

+36 70 608
Dakó Ferenc András
HOUSE36 Ingatlanbázis Kft.

Érdekel az OTP Bank kedvezményes lakáshitel ajánlata? *

* A kérdésre „Igen” válasz bejelölése esetén, az „Üzenet küldése” gombra kattintva kijelentem, hogy az OTP Bank Nyrt. Adatkezelési tájékoztatójának tartalmát megismertem és tudomásul vettem.

Eladó családi ház leírása

Egyedi lehetőség családoknak és befektetőknek: galériás főépület + külön lakható melléképület 3 garázzsal és modern energiatakarékos megoldásokkal Kecskeméten a Petőfivárosban.

Főbb jellemzők:

715 m2-es telek, gondozott kerttel
Főépület (120 m2): nappali+4 szoba, étkező-konyha, kamra, 2 fürdőszoba, fedett terasz (20 m2) és erkély (5 m2)
Melléképület 72 m2: akár kiadásra is tökéletes
3 garázs: autóknak, tárolásra, műhelynek

Kényelem és energiahatékonyság:

7,22 kWp napelemrendszer - alacsony rezsi
Gázfűtés, vegyes tüzelésű kazán, kandalló a nappaliban, valamint hűtő - fűtő klíma
30 cm tetőszigetelés hőtükörrel
új tetőszerkezet, új külső szigetelés, és színezés, műanyag nyílászárók
fúrt kút (42 m) a kert öntözéséhez

Lokáció: csendes, kis forgalmú utca, mégis közel mindenhez.
Per és tehermentes, azonnal költözhető!
Ne hagyja ki ezt a páratlan lehetőséget - legyen Ön az új tulajdonosa ennek a különleges, alacsony rezsijű családi háznak Kecskemét egyik legjobb városrészében!

Figyelem, az adatlap kapott adatok alapján készült, pontosságáért felelősséget nem tudunk vállalni.
A tulajdonos kérésére az ingatlan bemutatása egy személyes konzultáció után történik, ahol részletes tájékoztatást kaphat az ingatlan paramétereiről és egyéb kényelmi szolgáltatásairól.
Amennyiben vásárlásához el kell adnia saját ingatlanát, szívesen segítek, forduljon hozzám bizalommal!

Az energetikai tanúsítvány készítése folyamatban van, amint rendelkezésre áll, úgy azzal a hirdetés frissítésre kerül.

127900000 Ft
Az iroda legfrissebb, aktuális kínálatát a HOUSE36 saját weboldalán találja!

Hirdetés feltöltve: 2026. 04. 17. Utoljára módosítva: 2026. 05. 10.

Az ingatlan elhelyezkedése

Cím: Kecskemét

Eladó családi házak a környékről

Kecskemét
Eladó családi ház

Kecskemét

93 M Ft
3 szoba
140 m²
Kecskemét
Eladó családi ház

Kecskemét

42 M Ft
4 szoba
180 m²
Kecskemét
Eladó családi ház

Kecskemét

219 M Ft
5 szoba
190 m²
Kecskemét, Alsószéktó, Alsószéktó 138
Eladó családi ház

Kecskemét

65 M Ft
5 szoba
98 m²
Bácsalmás
Eladó családi ház

Bácsalmás

25.5 M Ft
2 + 1 szoba
90 m²
Kecskemét
Eladó családi ház

Kecskemét

39.9 M Ft
2 szoba
110 m²
Fajsz
Eladó családi ház

Fajsz

12 M Ft
4 szoba
129 m²
Kecskemét
Eladó családi ház

Kecskemét

39.9 M Ft
2 szoba
110 m²
Kecskemét, Alsószéktó, Alsószéktó 138
Eladó családi ház

Kecskemét

58 M Ft
5 szoba
92 m²
Kecskemét
Eladó családi ház

Kecskemét

6.9 M Ft
1 szoba
30 m²
Kiskunhalas
Eladó családi ház

Kiskunhalas

47 M Ft
1.24 ha
183 m²
Kecskemét
Eladó családi ház

Kecskemét

300 M Ft
19 szoba
1100 m²
Kecskemét
Eladó családi ház

Kecskemét

300 M Ft
19 szoba
1100 m²
Kecskemét
Eladó családi ház

Kecskemét

259 M Ft
3 + 7 szoba
266 m²
Kecskemét
Eladó családi ház

Kecskemét

480 M Ft
6 szoba
1150 m²
Fülöpháza
Eladó családi ház

Fülöpháza

68 M Ft
6 szoba
250 m²
Kecskemét
Eladó családi ház

Kecskemét

215 M Ft
3 szoba
350 m²
Kecskemét
Eladó családi ház

Kecskemét

9.9 M Ft
2 szoba
30 m²
Kunadacs
Eladó családi ház

Kunadacs

210 M Ft
14 szoba
920 m²
Kecskemét, Alsószéktó, Alsószéktó 138
Eladó családi ház

Kecskemét

58 M Ft
5 szoba
92 m²
Kecskemét, Alsószéktó, Alsószéktó 138
Eladó családi ház

Kecskemét

55 M Ft
5 szoba
91 m²
Kecskemét
Eladó családi ház

Kecskemét

6.9 M Ft
1 szoba
30 m²
Kecskemét
Eladó családi ház

Kecskemét

135 M Ft
5 szoba
220 m²
Kecskemét
Eladó családi ház

Kecskemét

180 M Ft
8 szoba
689 m²

Falusi CSOK ingatlanok

Balatonkeresztúr
Eladó családi ház

Balatonkeresztúr

89 M Ft
3 szoba
63 m²
Levelek
Eladó családi ház

Levelek

73 M Ft
5 szoba
220 m²
Ásványráró
Eladó családi ház

Ásványráró

42.5 M Ft
703 m²
69 m²
Szentmártonkáta
Eladó családi ház

Szentmártonkáta

59.99 M Ft
6 szoba
117 m²
Fonyód, Rózsa utca
Eladó ikerház

Fonyód

105 M Ft
5 szoba
134 m²
Tápiószőlős
Eladó családi ház

Tápiószőlős

9.9 M Ft
3 szoba
65 m²
Fülöpszállás
Eladó családi ház

Fülöpszállás

69.9 M Ft
4 szoba
190 m²
Maráza
Eladó családi ház

Maráza

29.9 M Ft
3 szoba
96 m²