NapForrás 20 - Buda

Eladó családi ház
Kecskemét

+ 12 kép 1/15
127 900 000 Ft127.9 M Ft 666 146 Ft/m2
7 szoba
192 m²
építés éve:1986

Részletes adatok

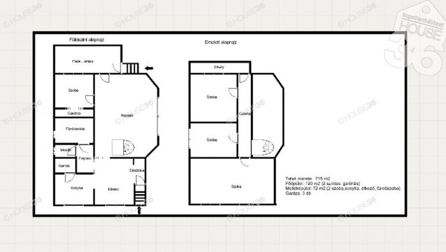
Telekméret: 715 m2
Fűtés: Gázkazán
Energetikai besorolás: A+

Az OTP Bank lakáshitel ajánlataFizetett hirdetés

+36 70 409
Kecskés Imola
HOUSE36 Ingatlanbázis Kft.

Érdekel az OTP Bank kedvezményes lakáshitel ajánlata? *

* A kérdésre „Igen” válasz bejelölése esetén, az „Üzenet küldése” gombra kattintva kijelentem, hogy az OTP Bank Nyrt. Adatkezelési tájékoztatójának tartalmát megismertem és tudomásul vettem.

Eladó családi ház leírása

Egyedi lehetőség családoknak és befektetőknek: galériás főépület + külön lakható melléképület 3 garázzsal és modern energiatakarékos megoldásokkal Kecskeméten a Petőfivárosban.

Főbb jellemzők:
- 715 m2-es telek, gondozott kerttel
- Főépület (120 m2): nappali+4 szoba, étkező-konyha, kamra, 2 fürdőszoba, fedett terasz (20 m2) és erkély (5 m2)
- Melléképület 72 m2: akár kiadásra is tökéletes
- 3 garázs: autóknak, tárolásra, műhelynek

Kényelem és energiahatékonyság:
- 7,22 kWp napelemrendszer - alacsony rezsi
- Gázfűtés, vegyes tüzelésű kazán, kandalló a nappaliban, valamint hűtő - fűtő klíma
- 30 cm tetőszigetelés hőtükörrel
- új tetőszerkezet, új külső szigetelés, és színezés, műanyag nyílászárók
- fúrt kút (42 m) a kert öntözéséhez

Lokáció: csendes, kis forgalmú utca, mégis közel mindenhez.
Per- és tehermentes, azonnal költözhető!
Ne hagyja ki ezt a páratlan lehetőséget - legyen Ön az új tulajdonosa ennek a különleges, alacsony rezsijű családi háznak Kecskemét egyik legjobb városrészében!

Figyelem, az adatlap kapott adatok alapján készült, pontosságáért felelősséget nem tudunk vállalni.
A tulajdonos kérésére az ingatlan bemutatása egy személyes konzultáció után történik, ahol részletes tájékoztatást kaphat az ingatlan paramétereiről és egyéb kényelmi szolgáltatásairól.
Amennyiben vásárlásához el kell adnia saját ingatlanát, szívesen segítek, forduljon hozzám bizalommal!
Az iroda legfrissebb, aktuális kínálatát a HOUSE36 saját weboldalán találja!

Hirdetés feltöltve: 2026. 04. 17. Utoljára módosítva: 2026. 04. 17.

Az ingatlan elhelyezkedése

Cím: Kecskemét

Eladó családi házak a környékről

Kecskemét
Eladó családi ház

Kecskemét

119.8 M Ft
5 szoba
138 m²
Kecskemét
Eladó családi ház

Kecskemét

45 M Ft
6 szoba
110 m²
Kecskemét
Eladó családi ház

Kecskemét

119.8 M Ft
5 szoba
138 m²
Kecskemét
Eladó családi ház

Kecskemét

165 M Ft
301 m²
200 m²
Kecskemét, Alsószéktó, Alsószéktó 138
Eladó családi ház

Kecskemét

65 M Ft
5 szoba
98 m²
Bugac
Eladó családi ház

Bugac

9.8 M Ft
4 szoba
67 m²
Kecskemét
Eladó családi ház

Kecskemét

219 M Ft
5 szoba
190 m²
Kecskemét
Eladó családi ház

Kecskemét

24.9 M Ft
3 szoba
62 m²
Dunapataj
Eladó családi ház

Dunapataj

15 M Ft
5 szoba
150 m²
Dunavecse
Eladó családi ház

Dunavecse

88.49 M Ft
8 szoba
378 m²
Kecskemét, Alsószéktó, Alsószéktó 138
Eladó családi ház

Kecskemét

58 M Ft
5 szoba
92 m²
Kecskemét
Eladó családi ház

Kecskemét

180 M Ft
8 szoba
689 m²
Kecskemét
Eladó családi ház

Kecskemét

42 M Ft
4 szoba
180 m²
Kecskemét, Alsószéktó, Alsószéktó 138
Eladó családi ház

Kecskemét

55 M Ft
5 szoba
91 m²
Kecskemét
Eladó családi ház

Kecskemét

224.9 M Ft
5 szoba
330 m²
Kiskunfélegyháza
Eladó családi ház

Kiskunfélegyháza

14.9 M Ft
3 szoba
70 m²
Kecskemét
Eladó családi ház

Kecskemét

39.9 M Ft
2 szoba
110 m²
Kecskemét
Eladó családi ház

Kecskemét

9.9 M Ft
2 szoba
30 m²
Kecskemét
Eladó családi ház

Kecskemét

135 M Ft
5 szoba
220 m²
Kecskemét, Alsószéktó, Alsószéktó 138
Eladó családi ház

Kecskemét

63 M Ft
5 szoba
91 m²
Kecskemét
Eladó családi ház

Kecskemét

85 M Ft
8 szoba
200 m²
Kecskemét, Alsószéktó, Alsószéktó 138
Eladó családi ház

Kecskemét

55 M Ft
5 szoba
91 m²
Kecskemét
Eladó családi ház

Kecskemét

24.9 M Ft
3 szoba
62 m²
Kecskemét
Eladó családi ház

Kecskemét

6.9 M Ft
1 szoba
30 m²

Falusi CSOK ingatlanok

Bag
Eladó családi ház

Bag

16.9 M Ft
6 szoba
160 m²
Földeák, Béke utca
Eladó családi ház

Földeák

59 M Ft
7 szoba
357 m²
Balatonederics
Eladó családi ház

Balatonederics

119 M Ft
3 szoba
140 m²
Zalalövő
Eladó családi ház

Zalalövő

47 M Ft
4 + 1 szoba
117 m²
Nyáregyháza
Eladó családi ház

Nyáregyháza

15.9 M Ft
2 szoba
39 m²
Bag
Eladó családi ház

Bag

16.9 M Ft
6 szoba
160 m²
Gönyű
Eladó családi ház

Gönyű

111.951 M Ft
5 szoba
105 m²
Bag
Eladó családi ház

Bag

110 M Ft
5 szoba
320 m²