BAM Living

Eladó családi ház
Kecskemét

65 000 000 Ft65 M Ft 812 500 Ft/m2
3 szoba
80 m2
építés éve:2026

Részletes adatok

Telekméret: 610 m2
Fűtés: Geotermikus
Parkolás: Garázs
Közmű: Víz, Villany, Csatorna
Energetikai besorolás: Nem adta meg a hirdető

Az OTP Bank lakáshitel ajánlataFizetett hirdetés

+36 70 269
Fekete Anikó
referens

Érdekel az OTP Bank kedvezményes lakáshitel ajánlata? *

* A kérdésre „Igen” válasz bejelölése esetén, az „Üzenet küldése” gombra kattintva kijelentem, hogy az OTP Bank Nyrt. Adatkezelési tájékoztatójának tartalmát megismertem és tudomásul vettem.

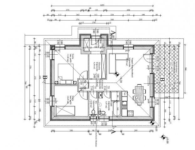
Eladó családi ház leírása

Kecskemét-Matkón újépítésű nappali+ 2 szobás 80 nm-es ház 610 nm-es telken eladó. Kultúrált lakóközösség, aszfaltos utcában.
Szerződéskötéstől számítottan 8-10 hónap kulcsrakész állapot, szakaszos fizetési ütemezéssel a készenléti szint alapján. Ez egy irányadó ajánlat, amely igény szerint rugalmasan alakítható.
Jellemzők:
- nappali+ 2 hálószoba
- nappali-étkező-konyha egy légétérben
- fürdőszobában kád és tusoló
- választható burkolatok
- választható szaniterek
- kíma kiépítés (beszerelés igény szerint)
- hőszivattyús fűtés
- padlófűtés
- extra hő és hangszigetelt 3 rétegű 6 légkamrás nyílászárók
- homlokzati szigetelés 15 cm
- betoncserép (szín választható)
- terasz 13 nm
- garázs (15 nm-es) opcionális

További részletekkel kapcsolatban keressen bizalommal. Tel: +36 70 2699392

Ingatlant Fortunától! Legyen hozzánk szerencséje!

Az ingatlan adatai megbízónktól kapott információk alapján lettek rögzítve, értük felelősséget nem tudunk vállalni!

Hirdetés feltöltve: 2025. 11. 25. Utoljára módosítva: 2025. 11. 26.

3 szobás családi házak ára Kecskeméten

Ebből az összehasonlításból megtudhatod, hogyan viszonyul a lakás ára a környékbeli családi házak átlagos árához. Ez nem azt jelenti, hogy ennyivel olcsóbb vagy drágább, mint amennyit a lakás ér, hanem hogy ennyivel tér el a környékbeli átlagtól.

Ennek a m² ára
Kecskemét m² ár
813 e Ft
683 e Ft -19%
Ennek az ára
Kecskemét átlagár
65 M Ft m Ft
73.1 m Ft 11%

Az ingatlan elhelyezkedése

Cím: Kecskemét

Eladó családi házak a környékről

Eladó családi ház
Eladó családi ház

Kecskemét, Alsószéktó, Alsószéktó 138

58 M Ft
5 szoba
92 m2
Eladó családi ház
Eladó családi ház

Bácsalmás

46.5 M Ft
5 szoba
232 m2
Eladó családi ház
Eladó családi ház

Bugac

9.8 M Ft
4 szoba
67 m2
Eladó családi ház
Eladó családi ház

Tiszakécske, Kolozsvári utca

17.9 M Ft
3 szoba
95 m2
Eladó családi ház
Eladó családi ház

Kecskemét, Alsószéktó, Alsószéktó 138

55 M Ft
5 szoba
91 m2
Eladó családi ház
Eladó családi ház

Kecskemét, Alsószéktó, Alsószéktó 138

63 M Ft
5 szoba
91 m2
Eladó családi ház
Eladó családi ház

Kecskemét

24.9 M Ft
3 szoba
62 m2
Eladó családi ház
Eladó családi ház

Kecskemét

6.9 M Ft
1 szoba
30 m2
Eladó családi ház
Eladó családi ház

Kecskemét

135 M Ft
5 szoba
220 m2
Eladó családi ház
Eladó családi ház

Kecskemét, Alsószéktó, Alsószéktó 138

58 M Ft
5 szoba
92 m2
Eladó családi ház
Eladó családi ház

Kecskemét

93 M Ft
3 szoba
140 m2
Eladó családi ház
Eladó családi ház

Kiskunmajsa, 1

60.9 M Ft
6 szoba
220 m2
Eladó családi ház
Eladó családi ház

Kecskemét

26 M Ft
3 szoba
110 m2
Eladó családi ház
Eladó családi ház

Kecskemét

120 M Ft
6 szoba
215 m2
Eladó családi ház
Eladó családi ház

Kecskemét, Alsószéktó, Alsószéktó 138

65 M Ft
5 szoba
98 m2
Eladó családi ház
Eladó családi ház

Kecskemét

9.9 M Ft
2 szoba
30 m2
Eladó családi ház
Eladó családi ház

Bácsalmás

25.5 M Ft
2 + 1 szoba
90 m2
Eladó családi ház
Eladó családi ház

Kunadacs

210 M Ft
14 szoba
920 m2
Eladó családi ház
Eladó családi ház

Kecskemét, Alsószéktó, Alsószéktó 138

55 M Ft
5 szoba
91 m2
Eladó családi ház
Eladó családi ház

Kiskunhalas

47 M Ft
12428 m²
183 m2
Eladó családi ház
Eladó családi ház

Kecskemét

150 M Ft
4 szoba
145 m2
Eladó családi ház
Eladó családi ház

Kecskemét

175.2 M Ft
5 szoba
218 m2
Eladó családi ház
Eladó családi ház

Kecskemét

120 M Ft
6 szoba
215 m2
Eladó családi ház
Eladó családi ház

Kecskemét

199 M Ft
5 szoba
350 m2

Falusi CSOK ingatlanok

Eladó családi ház
Eladó családi ház

Magyarpolány

25 M Ft
2 szoba
47 m2
Eladó családi ház
Eladó családi ház

Tapsony

23.8 M Ft
3 szoba
130 m2
Eladó családi ház
Eladó családi ház

Kenyeri

21.8 M Ft
2 szoba
75 m2
Eladó családi ház
Eladó családi ház

Farmos

38.9 M Ft
2 szoba
46 m2
Eladó családi ház
Eladó családi ház

Sarud

17 M Ft
3 szoba
94 m2
Eladó családi ház
Eladó családi ház

Ozora

24.5 M Ft
2 szoba
115 m2
Eladó családi ház
Eladó családi ház

Kaposkeresztúr

10 M Ft
2 szoba
50 m2
Eladó családi ház
Eladó családi ház

Magyarszék

48.5 M Ft
3 + 1 szoba
86 m2