NapForrás 20 - Buda

Eladó családi ház
Kecskemét

+ 1 kép 1/4
50 600 000 Ft50.6 M Ft 550 000 Ft/m2
4 szoba
92 m2
építés éve:2026

Részletes adatok

Fűtés: Elektromos
Energetikai besorolás: Nem adta meg a hirdető

Az OTP Bank lakáshitel ajánlataFizetett hirdetés

3676998501
Rigó Andor
Duna House - Kecskemét, Arany János utca

Érdekel az OTP Bank kedvezményes lakáshitel ajánlata? *

* A kérdésre „Igen” válasz bejelölése esetén, az „Üzenet küldése” gombra kattintva kijelentem, hogy az OTP Bank Nyrt. Adatkezelési tájékoztatójának tartalmát megismertem és tudomásul vettem.

Eladó családi ház leírása

Amennyiben kivitelezésben gondolkozik megtalálta a legideálisabb megoldást.

Megbízható kivitelezővel álomotthon, gyorsan és biztonságosan ENERGIA TAKARÉKOS könnyűszerkezetes technológiával!
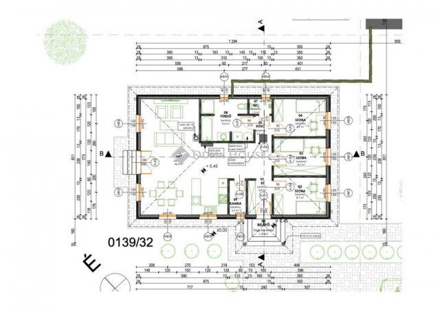
Ebben a 92nm-es családi házban minden megvan, amire egy kétgyermekes családnak csak szüksége lehet. A tágas, egybenyitott nappaliétkezőkonyha mellett jut hely kamrának és külön mosdónak is. A bejáratnál fedett terasz vár, ami praktikus megoldás esős napokra és nyári reggelekre egyaránt. Ideális választás, ha fontos, hogy a család életének központja egy nagy, közös élettér legyen.

A hirdetésban szereplő kivitelezési projekt egy 92nm-es kulcsrakész családi házra vonatkoznak. A projektben meghirdetett árak Bruttó árak, a telek árát nem tartalmazzák.
Válaszd tapasztalt, 25 éve a szakmában működő építőipari partnerünket, aki eddig több mint 400 elkészült projekttel és 15 000 m² átadott élettérrel bizonyította szakértelmét és megbízhatóságát. Referenciáink magukért beszélnek, ügyfeleink elégedettsége pedig a legjobb ajánlólevél számunkra.

Miért érdemes könnyűszerkezetes házat választani?
Gyors kivitelezés: akár néhány hónap alatt költözhető otthon.
Kiváló hőszigetelés: alacsony rezsiköltség, energiatakarékos megoldások.
Fenntartható technológia: környezetbarát, korszerű építési mód.
Rugalmas tervezhetőség: könnyen alakítható terek, modern megjelenés.
Tartósság és biztonság: bevált, időtálló szerkezet.

Személyre szabott tervezés kulcsrakész átadás!

Minden ügyfelünk egyedi igényei alapján készítjük el a terveket, és teljes körű szolgáltatást nyújtunk az első vonaltól az utolsó simításig.

Ha újépítésű projektben gondolkodsz, válaszd a tapasztalatot, a minőséget és a megbízhatóságot építsünk együtt olyan otthont, amelyben hosszú távon jól érzed majd magad!

A hirdetésen szereplő ingatlan fotók a már elkészült és átadott családi házak képei, ötletadó jelleggel.

Szolgáltatásaink:

- Ingyenes CSOK, babaváró és hitelügyintézés
- Megbízható ügyvédi háttér biztosítása
- Ingyenes ingatlan értékmeghatározás
- Energetikai tanúsítvány készítés
- Értékbecslés
- Házépítés megbízható generálkivitelezővel

Hirdetés feltöltve: 2025. 11. 19. Utoljára módosítva: 2025. 12. 02.

4 szobás családi házak ára Kecskeméten

Ebből az összehasonlításból megtudhatod, hogyan viszonyul a lakás ára a környékbeli családi házak átlagos árához. Ez nem azt jelenti, hogy ennyivel olcsóbb vagy drágább, mint amennyit a lakás ér, hanem hogy ennyivel tér el a környékbeli átlagtól.

Ennek a m² ára
Kecskemét m² ár
550 e Ft
818 e Ft 33%
Ennek az ára
Kecskemét átlagár
50.6 M Ft m Ft
111.5 m Ft 55%

Az ingatlan elhelyezkedése

Cím: Kecskemét

Eladó családi házak a környékről

Eladó családi ház
Eladó családi ház

Tiszakécske, Kolozsvári utca

17.9 M Ft
3 szoba
95 m2
Eladó családi ház
Eladó családi ház

Kecskemét, Alsószéktó, Alsószéktó 138

58 M Ft
5 szoba
92 m2
Eladó családi ház
Eladó családi ház

Kecskemét, Alsószéktó, Alsószéktó 138

55 M Ft
5 szoba
91 m2
Eladó családi ház
Eladó családi ház

Kiskunhalas

47 M Ft
12428 m²
183 m2
Eladó családi ház
Eladó családi ház

Bácsalmás

25.5 M Ft
2 + 1 szoba
90 m2
Eladó családi ház
Eladó családi ház

Kecskemét

135 M Ft
5 szoba
220 m2
Eladó családi ház
Eladó családi ház

Fajsz

12 M Ft
4 szoba
129 m2
Eladó családi ház
Eladó családi ház

Kecskemét

120 M Ft
6 szoba
215 m2
Eladó családi ház
Eladó családi ház

Fajsz

12 M Ft
3 szoba
128 m2
Eladó családi ház
Eladó családi ház

Kecskemét, Alsószéktó, Alsószéktó 138

65 M Ft
5 szoba
98 m2
Eladó családi ház
Eladó családi ház

Kiskunmajsa, 1

60.9 M Ft
6 szoba
220 m2
Eladó családi ház
Eladó családi ház

Kecskemét

199 M Ft
5 szoba
350 m2
Eladó családi ház
Eladó családi ház

Kecskemét

6.9 M Ft
1 szoba
30 m2
Eladó családi ház
Eladó családi ház

Kecskemét

93 M Ft
3 szoba
140 m2
Eladó családi ház
Eladó családi ház

Kecskemét

259 M Ft
3 + 7 szoba
266 m2
Eladó családi ház
Eladó családi ház

Kecskemét, Alsószéktó, Alsószéktó 138

58 M Ft
5 szoba
92 m2
Eladó családi ház
Eladó családi ház

Kecskemét, Alsószéktó, Alsószéktó 138

55 M Ft
5 szoba
91 m2
Eladó családi ház
Eladó családi ház

Kecskemét

175.2 M Ft
5 szoba
218 m2
Eladó családi ház
Eladó családi ház

Lajosmizse

59.45 M Ft
4 szoba
150 m2
Eladó családi ház
Eladó családi ház

Kecskemét

6.9 M Ft
1 szoba
30 m2
Eladó családi ház
Eladó családi ház

Kecskemét

215 M Ft
3 szoba
350 m2
Eladó családi ház
Eladó családi ház

Kelebia, Kossuth

29.5 M Ft
5 szoba
160 m2
Eladó családi ház
Eladó családi ház

Kiskunmajsa, Kiskunmajsa - Birtok

91.8 M Ft
5 szoba
170 m2
Eladó családi ház
Eladó családi ház

Kecskemét

219 M Ft
5 szoba
190 m2

Falusi CSOK ingatlanok

Eladó családi ház
Eladó családi ház

Zalacsány

75 M Ft
3 szoba
90 m2
Eladó családi ház
Eladó családi ház

Ceglédbercel

67 M Ft
3 szoba
173 m2
Eladó családi ház
Eladó családi ház

Ősi

55 M Ft
3 szoba
74 m2
Eladó családi ház
Eladó családi ház

Szenyér

6.5 M Ft
2 szoba
67 m2
Eladó családi ház
Eladó családi ház

Balatonfenyves

430 M Ft
4 szoba
274 m2
Eladó családi ház
Eladó családi ház

Hernádnémeti

18.9 M Ft
2 szoba
62 m2
Eladó családi ház
Eladó családi ház

Iváncsa

73.9 M Ft
1 + 3 szoba
97 m2
Eladó családi ház
Eladó családi ház

Elek

85.9 M Ft
5 szoba
274 m2