NapForrás 20 - Buda

Eladó családi ház
Kecskemét

+ 7 kép 1/10
246 000 000 Ft246 M Ft 1 366 667 Ft/m2
5 szoba
180 m2
építés éve:2025

Részletes adatok

Telekméret: 1000 m2
Fűtés: Egyéb
Energetikai besorolás: Nem adta meg a hirdető

Az OTP Bank lakáshitel ajánlataFizetett hirdetés

+36 30 161
Magyar Beáta
HOUSE36 Ingatlanbázis Kft.

Érdekel az OTP Bank kedvezményes lakáshitel ajánlata? *

* A kérdésre „Igen” válasz bejelölése esetén, az „Üzenet küldése” gombra kattintva kijelentem, hogy az OTP Bank Nyrt. Adatkezelési tájékoztatójának tartalmát megismertem és tudomásul vettem.

Eladó családi ház leírása

Önálló luxusvilla a belváros szívében - exkluzív élettér, prémium minőség!
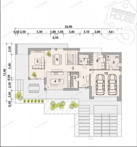
Eladó egy 180 m2-es, modern luxusvilla egy 1000 m2-es, parkosított telken, saját dupla garázzsal ( 40 m2).
A tágas nappali, 4 vagy 5 szoba, gardrób és mosókonyha tökéletes kényelmet nyújtanak.

Minőségi anyagok, elegáns dizájn, legmodernebb technológia - ez az ingatlan a luxus és a belvárosi életstílus tökéletes kombinációja.
Exkluzív lehetőség, amely ritkán adódik!
Hívjon és legyen az első, aki megtekinti!

Várható átadás szerződéskötéstől számított 12 hónap.

A képek az egyik referenciaházban készültek!!!

1-2 műszaki paraméter:

Wienerberger Porotherm X-Therm tégla (+ 40 % hőtartás)
15 cm szigetelés
1000 m2 -es összközműves telek
hőszivattyús fűtésrendszer
padlófűtés
prémium minőségű műanyag nyílászárók
szaniterek 1 millió forintig az árban
hideg - meleg burkolatok 8500.-/ m2
ár garancia
idő garancia

AZ ÁR AZ ÉPÍTÉSI TELEK ÁRÁT IS TARTALMAZZA!
Az ingatlant több mint 20 éves szakmai tapasztalattal rendelkező építőipari generálkivitelező cég végzi.
A terv az igényekhez mérten módosítható az alaprajz és a műszaki tartalom tekintetében is.

RÉGI MEGY, ÚJ JÖN? KERESSEN BIZALOMMAL!! SEGÍTEK MEGOLDANI!!

Figyelem, az adatlap megbízóinktól kapott adatok alapján készültek, pontosságáért felelősséget nem tudunk vállalni!
Az iroda legfrissebb, aktuális kínálatát a HOUSE36 saját weboldalán találja!

Hirdetés feltöltve: 2025. 09. 17. Utoljára módosítva: 2025. 11. 10.

5 szobás családi házak ára Kecskeméten

Ebből az összehasonlításból megtudhatod, hogyan viszonyul a lakás ára a környékbeli családi házak átlagos árához. Ez nem azt jelenti, hogy ennyivel olcsóbb vagy drágább, mint amennyit a lakás ér, hanem hogy ennyivel tér el a környékbeli átlagtól.

Ennek a m² ára
Kecskemét m² ár
1367 e Ft
696 e Ft -96%
Ennek az ára
Kecskemét átlagár
246 M Ft m Ft
148.5 m Ft -66%

Az ingatlan elhelyezkedése

Cím: Kecskemét

Eladó családi házak a környékről

Eladó családi ház
Eladó családi ház

Kecskemét

24.9 M Ft
3 szoba
62 m2
Eladó családi ház
Eladó családi ház

Kecskemét

6.9 M Ft
1 szoba
30 m2
Eladó családi ház
Eladó családi ház

Kecskemét

93 M Ft
3 szoba
140 m2
Eladó családi ház
Eladó családi ház

Tiszakécske, Rév utca

53 M Ft
3 szoba
100 m2
Eladó családi ház
Eladó családi ház

Kecskemét

219 M Ft
5 szoba
190 m2
Eladó családi ház
Eladó családi ház

Kecskemét

224.9 M Ft
5 szoba
330 m2
Eladó családi ház
Eladó családi ház

Kecskemét

45 M Ft
6 szoba
110 m2
Eladó családi ház
Eladó családi ház

Kecskemét

129.8 M Ft
5 szoba
138 m2
Eladó családi ház
Eladó családi ház

Kecskemét

120 M Ft
6 szoba
215 m2
Eladó családi ház
Eladó családi ház

Kiskunmajsa, Kiskunmajsa - Birtok

91.8 M Ft
5 szoba
170 m2
Eladó családi ház
Eladó családi ház

Bácsalmás

25.5 M Ft
2 + 1 szoba
90 m2
Eladó családi ház
Eladó családi ház

Kiskunmajsa, 1

60.9 M Ft
6 szoba
220 m2
Eladó családi ház
Eladó családi ház

Kecskemét

9.9 M Ft
2 szoba
30 m2
Eladó családi ház
Eladó családi ház

Kecskemét

9.9 M Ft
2 szoba
30 m2
Eladó családi ház
Eladó családi ház

Kecskemét

180 M Ft
8 szoba
689 m2
Eladó családi ház
Eladó családi ház

Kecskemét

8 M Ft
4 szoba
90 m2
Eladó családi ház
Eladó családi ház

Kecskemét, Alsószéktó, Alsószéktó 138

65 M Ft
5 szoba
98 m2
Eladó családi ház
Eladó családi ház

Kecskemét, Alsószéktó, Alsószéktó 138

58 M Ft
5 szoba
92 m2
Eladó családi ház
Eladó családi ház

Kelebia, Kossuth

29.5 M Ft
5 szoba
160 m2
Eladó családi ház
Eladó családi ház

Kunadacs

210 M Ft
14 szoba
920 m2
Eladó családi ház
Eladó családi ház

Dunavecse

88.49 M Ft
8 szoba
378 m2
Eladó családi ház
Eladó családi ház

Kecskemét, Alsószéktó, Alsószéktó 138

65 M Ft
5 szoba
98 m2
Eladó családi ház
Eladó családi ház

Kecskemét

135 M Ft
5 szoba
220 m2
Eladó családi ház
Eladó családi ház

Kecskemét, Alsószéktó, Alsószéktó 138

55 M Ft
5 szoba
91 m2

Falusi CSOK ingatlanok

Eladó ikerház
Eladó ikerház

Seregélyes

39.9 M Ft
4 szoba
150 m2
Eladó családi ház
Eladó családi ház

Andornaktálya

65 M Ft
3 szoba
80 m2
Eladó családi ház
Eladó családi ház

Zalatárnok

30.9 M Ft
4 szoba
67 m2
Eladó családi ház
Eladó családi ház

Tápiószőlős

3.5 M Ft
1 szoba
75 m2
Eladó családi ház
Eladó családi ház

Kocsér

19.9 M Ft
1 + 2 szoba
73 m2
Eladó családi ház
Eladó családi ház

Gávavencsellő

6 M Ft
2 szoba
55 m2
Eladó családi ház
Eladó családi ház

Jakabszállás

69.99 M Ft
1 + 4 szoba
91 m2
Eladó családi ház
Eladó családi ház

Lőkösháza

12.5 M Ft
2 szoba
63 m2