Eladó családi ház
Kecskemét

+ 1 kép 1/4
80 000 000 Ft80 M Ft 533 333 Ft/m2
4 szoba
150 m2
építés éve:2026

Részletes adatok

Telekméret: 500 m2
Fűtés: Egyéb
Energetikai besorolás: Nem adta meg a hirdető

Az OTP Bank lakáshitel ajánlataFizetett hirdetés

+36 70 199
Bézsenyi Tamás
HOUSE36 Ingatlanbázis Kft.

Érdekel az OTP Bank kedvezményes lakáshitel ajánlata? *

* A kérdésre „Igen” válasz bejelölése esetén, az „Üzenet küldése” gombra kattintva kijelentem, hogy az OTP Bank Nyrt. Adatkezelési tájékoztatójának tartalmát megismertem és tudomásul vettem.

Eladó családi ház leírása

​​Kecskeméten az egész család számára tökéletes kényelmet biztosító, remek elrendezésű, új építésű családi ház csak önre vár.

A garázsból rögtön a lakásba léphet be.
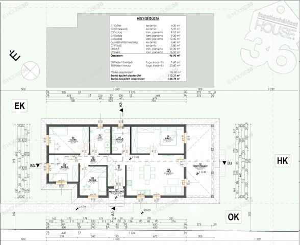
A 4 szoba minden családtagnak biztosít egy kis elvonulási lehetőséget.
A kényelmes, tágas nappaliból és a hálószobából is a fedett teraszra léphet ki.
- 150,3 m2 nettó lakótér
+ 18,2 m2 garázs
+ 1,6 m2 fedett belépő
+ 24,4 m2 fedett terasz

- garázs
- hőszivattyú
- padlófűtés
- 4 szoba
- gardrób
- nagy nappali konyhával,étkezővel
- háztartási helyiség
- plusz külön wc
- energia takarékos
- 2026 év végi átadás

Választható burkolatok, színek, nyílászárók, szaniterek.
Hívjon.Nézzük meg a minta házakat akár hétvégén is.
A HOUSE36 kínálatában lévő összes ingatlannal kapcsolatban tudok felvilágosítást nyújtani.
Szolgáltatásaink kereső ügyfeleink részére ingyenesek.
Az iroda legfrissebb, aktuális kínálatát a HOUSE36 saját weboldalán találja!

Hirdetés feltöltve: 2025. 09. 12. Utoljára módosítva: 2025. 10. 18.

4 szobás családi házak ára Kecskeméten

Ebből az összehasonlításból megtudhatod, hogyan viszonyul a lakás ára a környékbeli családi házak átlagos árához. Ez nem azt jelenti, hogy ennyivel olcsóbb vagy drágább, mint amennyit a lakás ér, hanem hogy ennyivel tér el a környékbeli átlagtól.

Ennek a m² ára
Kecskemét m² ár
533 e Ft
781 e Ft 32%
Ennek az ára
Kecskemét átlagár
80 M Ft m Ft
106.2 m Ft 25%

Az ingatlan elhelyezkedése

Cím: Kecskemét

Eladó családi házak a környékről

Eladó családi ház
Eladó családi ház

Dunavecse

88.49 M Ft
8 szoba
378 m2
Eladó családi ház
Eladó családi ház

Kecskemét

93 M Ft
3 szoba
140 m2
Eladó családi ház
Eladó családi ház

Kecskemét, Alsószéktó, Alsószéktó 138

58 M Ft
5 szoba
92 m2
Eladó családi ház
Eladó családi ház

Kecskemét

120 M Ft
6 szoba
215 m2
Eladó családi ház
Eladó családi ház

Kecskemét

9.9 M Ft
2 szoba
30 m2
Eladó családi ház
Eladó családi ház

Tiszakécske, Bajza utca

52.5 M Ft
3 szoba
110 m2
Eladó családi ház
Eladó családi ház

Kecskemét, Alsószéktó, Alsószéktó 138

63 M Ft
5 szoba
91 m2
Eladó családi ház
Eladó családi ház

Kecskemét

14.9 M Ft
2 szoba
80 m2
Eladó családi ház
Eladó családi ház

Kecskemét

219 M Ft
5 szoba
190 m2
Eladó családi ház
Eladó családi ház

Bácsalmás

25.5 M Ft
2 + 1 szoba
90 m2
Eladó családi ház
Eladó családi ház

Kecskemét

26 M Ft
3 szoba
110 m2
Eladó családi ház
Eladó családi ház

Kiskunmajsa, Kiskunmajsa - Birtok

91.8 M Ft
5 szoba
170 m2
Eladó családi ház
Eladó családi ház

Ballószög

75 M Ft
5 szoba
180 m2
Eladó családi ház
Eladó családi ház

Kecskemét, Alsószéktó, Alsószéktó 138

65 M Ft
5 szoba
98 m2
Eladó családi ház
Eladó családi ház

Kecskemét, Alsószéktó, Alsószéktó 138

63 M Ft
5 szoba
91 m2
Eladó családi ház
Eladó családi ház

Kecskemét

94 M Ft
4 szoba
133 m2
Eladó családi ház
Eladó családi ház

Kecskemét

135 M Ft
5 szoba
220 m2
Eladó családi ház
Eladó családi ház

Kecskemét

199 M Ft
5 szoba
350 m2
Eladó családi ház
Eladó családi ház

Kecskemét, Alsószéktó, Alsószéktó 138

65 M Ft
5 szoba
98 m2
Eladó családi ház
Eladó családi ház

Kecskemét

8 M Ft
4 szoba
90 m2
Eladó családi ház
Eladó családi ház

Kiskunmajsa, 1

60.9 M Ft
6 szoba
220 m2
Eladó családi ház
Eladó családi ház

Kecskemét

215 M Ft
3 szoba
350 m2
Eladó családi ház
Eladó családi ház

Kecskemét

120 M Ft
6 szoba
215 m2
Eladó családi ház
Eladó családi ház

Kelebia, Kossuth

29.5 M Ft
5 szoba
160 m2

Falusi CSOK ingatlanok

Eladó családi ház
Eladó családi ház

Kétegyháza

34.9 M Ft
3 szoba
125 m2
Eladó családi ház
Eladó családi ház

Szil

25 M Ft
2 szoba
90 m2
Eladó családi ház
Eladó családi ház

Bag

86 M Ft
3 szoba
86 m2
Eladó családi ház
Eladó családi ház

Majs

28.5 M Ft
3 szoba
160 m2
Eladó családi ház
Eladó családi ház

Sárosd

37.5 M Ft
2 szoba
78 m2
Eladó családi ház
Eladó családi ház

Gyönk, Petőfi Sándor utca 344

7.06 M Ft
1 + 1 szoba
139 m2
Eladó családi ház
Eladó családi ház

Gáborjánháza

23 M Ft
2 szoba
117 m2
Eladó családi ház
Eladó családi ház

Tök

96.2 M Ft
4 szoba
104 m2