City Pearl

Eladó családi ház
Kálmánháza

Figyelem!

Ez az ingatlan a 2019.07.01-től induló falusi CSOK által támogatott településen található

+ 17 kép 1/20
72 000 000 Ft72 M Ft 476 821 Ft/m2
3 + 1 szoba
151 m2
építés éve:1988

Részletes adatok

Telekméret: 1591 m2
Fűtés: Gázkazán
Energetikai besorolás: Nem adta meg a hirdető

Az OTP Bank lakáshitel ajánlataFizetett hirdetés

+36 30 167
Balázscsikné Hanzel Renáta
OTPIP Nyíregyháza Hunyadi u.

Érdekel az OTP Bank kedvezményes lakáshitel ajánlata? *

* A kérdésre „Igen” válasz bejelölése esetén, az „Üzenet küldése” gombra kattintva kijelentem, hogy az OTP Bank Nyrt. Adatkezelési tájékoztatójának tartalmát megismertem és tudomásul vettem.

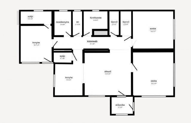
Eladó családi ház leírása

Kiváló állapotú, duplakomfortos, napelemes családi ház eladó Kálmánházán - gazdálkodásra, vállalkozásra és nagycsaládosoknak is tökéletes választás!

Eladásra kínálom ezt a szigetelt, korszerű és rendkívül jól felszerelt családi házat, amely egyaránt ideális állandó lakhatásra, többgenerációs életformára, vagy akár gazdasági, vállalkozási célokra is.

A csendes, jól megközelíthető környéken található ingatlan nemcsak otthonként, hanem lehetőségként is megállja a helyét.

Főbb jellemzők:
Telek mérete: 1591 nm szépen karbantartott, gondozott udvarral.
Lakóház: 151 nm szigetelt, jó állapotú.
Duplakomfortos kialakítás, 3 fürdőszoba, kényelmes belső elrendezés.
Fűtés: gázkazán és vegyestüzelésű kazán egyaránt rendelkezésre áll.
Napelemes rendszer -alacsony fenntartási költségek önfenntartó ház.
4 db hűtő-fűtő klímák.
Garázs és 60 nm-es, több helységes száraz pince.
Kerekes kút - öntözéshez, gazdasági használatra ideális.

Belső elrendezés:
Földszint: nappali, konyha, 2 szoba, fürdőszoba és külön mosókonyha. Lejárat a pincébe, illetve feljárat az emeletre.

Emelet: 2 különnyíló hálószoba, gardróbszoba, fürdőszoba.

Gazdálkodásra és vállalkozásra alkalmas melléképületek:
Hűtőház - kiváló kereskedelmi vagy háztáji célokra, Füstölő - házi húsfeldolgozáshoz.

Több melléképület, melyek állattartásra alkalmas állapotban.

Óriási, könnyűszerkezetes tárolócsarnok - akár traktor vagy nagyobb mezőgazdasági gépek elhelyezésére is megfelelő.

Kinek ajánlom?
Olyan vevőnek, aki a kényelmet, a praktikumot és a gazdasági lehetőségeket egyszerre keresi. Nagycsaládosoknak vagy több generáció együttélésére. Gazdálkodóknak, vállalkozóknak. Akik egy minden szempontból jól felszerelt, önellátásra is alkalmas otthont keresnek.

Ez az ingatlan többet nyújt, mint egy egyszerű otthon - valódi érték, hosszú távú lehetőségekkel!
Hívjon bizalommal vagy írjon üzenetet a megtekintéshez!
OTP Ingatlanpont - megbízhat bennünk.

OTP Banki hátterünknek köszönhetően finanszírozási igényekben (pl. Otthon Start Hitelprogram , Babaváró, Falusi CSOK, CSOK Plusz, Lakáshitel, Személyi kölcsön stb.), illetve biztosítások tekintetében is díjmentesen, soron kívüli ügyintézéssel segítem ügyfeleim! Referenciaszám: M308022

Hirdetés feltöltve: 2025. 12. 09. Utoljára módosítva: 2025. 12. 09.

Az ingatlan elhelyezkedése

Cím: Kálmánháza

Eladó családi házak a környékről

Eladó családi ház
Eladó családi ház

Kálmánháza

72 M Ft
3 + 1 szoba
151 m2
Eladó családi ház
Eladó családi ház

Nyíregyháza

250 M Ft
4 szoba
440 m2
Eladó családi ház
Eladó családi ház

Nyírtelek

10.9 M Ft
2 szoba
55 m2
Eladó családi ház
Eladó családi ház

Nyíregyháza

60 M Ft
3 szoba
100 m2
Eladó családi ház
Eladó családi ház

Nyíregyháza

240 M Ft
3 szoba
204 m2
Eladó családi ház
Eladó családi ház

Nyíregyháza

44.9 M Ft
1 szoba
51 m2
Eladó családi ház
Eladó családi ház

Nyíregyháza

150 M Ft
2 szoba
120 m2
Eladó családi ház
Eladó családi ház

Nyíregyháza

75.9 M Ft
6 szoba
240 m2
Eladó családi ház
Eladó családi ház

Kálmánháza

42.5 M Ft
3 szoba
114 m2
Eladó családi ház
Eladó családi ház

Kálmánháza

42.5 M Ft
3 szoba
114 m2
Eladó családi ház
Eladó családi ház

Kálmánháza

72 M Ft
3 + 1 szoba
151 m2
Eladó családi ház
Eladó családi ház

Kálmánháza, Kossuth utca

72 M Ft
3 + 1 szoba
151 m2
Eladó családi ház
Eladó családi ház

Nyíregyháza

199.9 M Ft
6 szoba
500 m2
Eladó családi ház
Eladó családi ház

Kálmánháza

72 M Ft
3 + 1 szoba
151 m2
Eladó családi ház
Eladó családi ház

Nyíregyháza

89.9 M Ft
5 szoba
274 m2
Eladó családi ház
Eladó családi ház

Kálmánháza, Petőfi Sándor utca

29.9 M Ft
2 szoba
80 m2
Eladó családi ház
Eladó családi ház

Nyírtelek

130 M Ft
3 szoba
159 m2
Eladó családi ház
Eladó családi ház

Kálmánháza

83 M Ft
4 + 1 szoba
225 m2
Eladó családi ház
Eladó családi ház

Kálmánháza

72 M Ft
3 + 1 szoba
151 m2
Eladó családi ház
Eladó családi ház

Kálmánháza

42.5 M Ft
3 szoba
114 m2
Eladó családi ház
Eladó családi ház

Kálmánháza

79.9 M Ft
5 szoba
137 m2
Eladó családi ház
Eladó családi ház

Nyíregyháza

92 M Ft
3 szoba
161 m2
Eladó családi ház
Eladó családi ház

Kálmánháza

72 M Ft
3 + 1 szoba
151 m2
Eladó családi ház
Eladó családi ház

Kálmánháza

83 M Ft
4 + 1 szoba
225 m2

Falusi CSOK ingatlanok

Eladó családi ház
Eladó családi ház

Balatonfenyves

430 M Ft
4 szoba
274 m2
Eladó családi ház
Eladó családi ház

Hövej

119.9 M Ft
3 szoba
75 m2
Eladó családi ház
Eladó családi ház

Tiszatenyő

13.99 M Ft
2 szoba
63 m2
Eladó családi ház
Eladó családi ház

Tápiógyörgye

14.9 M Ft
2 szoba
67 m2
Eladó családi ház
Eladó családi ház

Doboz

11.99 M Ft
2 + 1 szoba
89 m2
Eladó családi ház
Eladó családi ház

Nemesbőd

87 M Ft
5 szoba
120 m2
Eladó családi ház
Eladó családi ház

Jakabszállás

69.99 M Ft
1 + 4 szoba
91 m2
Eladó családi ház
Eladó családi ház

Varsány

39.9 M Ft
6 szoba
160 m2

Falusi CSOK ingatlanok

Eladó családi ház
Eladó családi ház

Táborfalva

59.9 M Ft
3 szoba
84 m2
Eladó családi ház
Eladó családi ház

Hövej

149.9 M Ft
4 szoba
115 m2
Eladó családi ház
Eladó családi ház

Iváncsa

73.9 M Ft
1 + 3 szoba
97 m2
Eladó családi ház
Eladó családi ház

Magyarszék

48.5 M Ft
3 + 1 szoba
86 m2
Eladó családi ház
Eladó családi ház

Petrivente, Kossuth Lajos utca

31.9 M Ft
3 szoba
127 m2
Eladó családi ház
Eladó családi ház

Bábolna

74.9 M Ft
5 szoba
172 m2
Eladó családi ház
Eladó családi ház

Kaposgyarmat

695 M Ft
6 szoba
610 m2
Eladó családi ház
Eladó családi ház

Pannonhalma

83.9 M Ft
4 szoba
97 m2