Astora Olive Club House

Eladó családi ház
Jászfényszaru

+ 14 kép 1/17
64 900 000 Ft64.9 M Ft 295 000 Ft/m2
3 szoba
220 m2
építés éve:1980

Részletes adatok

Állapot: Átlagos
Telekméret: 840 m2
Fűtés: Gázkazán
Parkolás: Garázs
Energetikai besorolás: Nem adta meg a hirdető

Az OTP Bank lakáshitel ajánlataFizetett hirdetés

+36 70 601
Tamus Angéla Erzsébet
referens

Érdekel az OTP Bank kedvezményes lakáshitel ajánlata? *

* A kérdésre „Igen” válasz bejelölése esetén, az „Üzenet küldése” gombra kattintva kijelentem, hogy az OTP Bank Nyrt. Adatkezelési tájékoztatójának tartalmát megismertem és tudomásul vettem.

Eladó családi ház leírása

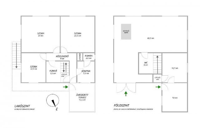
Jász-Nagykun-Szolnok vármegye, Jászfényszaru - kétszintes, részben felújított családi ház eladó!

Jászfényszaru központi, mégis csendes utcájában kínálok megvételre egy 110 nm-es, kétszintes, tégla építésű családi házat, amely rengeteg lehetőséget rejt magában. Az emeleti lakótérben három kényelmes szoba, konyha, kamra, fürdőszoba, közlekedő és egy hangulatos fedett terasz található. A földszinti rész jelenleg műhelyként és garázsként funkcionál, azonban kialakításának köszönhetően könnyedén átalakítható külön bejáratú lakássá, irodává vagy akár üzlethelyiséggé is.

Az ingatlan 10 cm-es hőszigeteléssel rendelkezik, tetőszerkezete cserép borítású. Az elmúlt években több ponton megújult: új tetőszerkezetet, külső szigetelést és modern nyílászárókat kapott, továbbá új villamos hálózat, ipari áram és térkövezett udvar is növeli értékét. A fűtésről gázkazán, vegyestüzelésű kazán és hűtő-fűtő klíma gondoskodik, így az otthon minden évszakban kellemes hőmérsékletet biztosít.

Ez a ház tökéletes választás mindazoknak, akik tágas, jól alakítható otthont keresnek nyugodt környezetben, ugyanakkor céges hasznosításra is kiválóan alkalmas.

Ingatlanvásárláshoz az OTP Bank kedvező hitelkonstrukcióit ajánlom.
Kérem, hívjon bizalommal - készséggel tájékoztatom a részletekről!

Hirdetés feltöltve: 2025. 11. 14. Utoljára módosítva: 2026. 01. 13.

3 szobás családi házak ára Jászfényszarun

Ebből az összehasonlításból megtudhatod, hogyan viszonyul a lakás ára a környékbeli családi házak átlagos árához. Ez nem azt jelenti, hogy ennyivel olcsóbb vagy drágább, mint amennyit a lakás ér, hanem hogy ennyivel tér el a környékbeli átlagtól.

Ennek a m² ára
Jászfényszaru m² ár
295 e Ft
371 e Ft 20%
Ennek az ára
Jászfényszaru átlagár
64.9 M Ft m Ft
45.3 m Ft -43%

Az ingatlan elhelyezkedése

Cím: Jászfényszaru

Eladó családi házak a környékről

Eladó családi ház
Eladó családi ház

Jászfényszaru

49.5 M Ft
3 szoba
120 m2
Eladó családi ház
Eladó családi ház

Szolnok

20.5 M Ft
2 szoba
78 m2
Eladó családi ház
Eladó családi ház

Szászberek

88 M Ft
5 szoba
150 m2
Eladó családi ház
Eladó családi ház

Szászberek

88 M Ft
5 szoba
150 m2
Eladó családi ház
Eladó családi ház

Újszász

39.7 M Ft
2 + 2 szoba
180 m2
Eladó családi ház
Eladó családi ház

Jászberény, Tőtevény tanya

99.9 M Ft
6 szoba
229 m2
Eladó családi ház
Eladó családi ház

Jászfényszaru

13.9 M Ft
2 szoba
52 m2
Eladó családi ház
Eladó családi ház

Jászfényszaru

59.9 M Ft
3 szoba
167 m2
Eladó családi ház
Eladó családi ház

Jászfényszaru

34.9 M Ft
4 szoba
103 m2
Eladó családi ház
Eladó családi ház

Jászfényszaru

34.9 M Ft
4 szoba
103 m2
Eladó családi ház
Eladó családi ház

Jászfényszaru

49.5 M Ft
3 szoba
120 m2
Eladó családi ház
Eladó családi ház

Jászfényszaru

13.9 M Ft
2 szoba
52 m2
Eladó családi ház
Eladó családi ház

Cibakháza

2.5 M Ft
2 szoba
75 m2
Eladó családi ház
Eladó családi ház

Újszász

24.9 M Ft
3 szoba
90 m2
Eladó családi ház
Eladó családi ház

Jászárokszállás

21.5 M Ft
2 szoba
45 m2
Eladó családi ház
Eladó családi ház

Jászfényszaru

64.9 M Ft
5 szoba
95 m2
Eladó családi ház
Eladó családi ház

Jászladány, Liszt Ferenc utca

35 M Ft
2 + 2 szoba
120 m2
Eladó családi ház
Eladó családi ház

Szolnok

20 M Ft
1 + 2 szoba
62 m2
Eladó családi ház
Eladó családi ház

Szolnok

30 M Ft
2 szoba
70 m2
Eladó családi ház
Eladó családi ház

Jászfényszaru

17.2 M Ft
2 szoba
53 m2
Eladó családi ház
Eladó családi ház

Jászfényszaru

50 M Ft
5 szoba
150 m2
Eladó családi ház
Eladó családi ház

Cibakháza

12.9 M Ft
4 szoba
111 m2
Eladó családi ház
Eladó családi ház

Jászfényszaru

36.9 M Ft
1080 m²
80 m2
Eladó családi ház
Eladó családi ház

Jászjákóhalma

25 M Ft
4 + 1 szoba
200 m2

Falusi CSOK ingatlanok

Eladó családi ház
Eladó családi ház

Nagyhegyes

80 M Ft
2 szoba
94 m2
Eladó családi ház
Eladó családi ház

Somogyszil

27.9 M Ft
3 szoba
140 m2
Eladó családi ház
Eladó családi ház

Balatonfőkajár

38.5 M Ft
2 szoba
64 m2
Eladó családi ház
Eladó családi ház

Jakabszállás

69.99 M Ft
1 + 4 szoba
91 m2
Eladó családi ház
Eladó családi ház

Sárosd

21.9 M Ft
3 szoba
86 m2
Eladó családi ház
Eladó családi ház

Kislippó

16 M Ft
3 szoba
100 m2
Eladó családi ház
Eladó családi ház

Szabadbattyán

163.99 M Ft
5 szoba
255 m2
Eladó családi ház
Eladó családi ház

Bugac

34.4 M Ft
3 szoba
70 m2