Astora Márvány8

Eladó családi ház
Jánossomorja

+ 1 kép 1/4
82 500 000 Ft82.5 M Ft 743 243 Ft/m2
4 szoba
111 m²
építés éve:2027

Részletes adatok

Telekméret: 607 m2
Fűtés: Egyéb
Komfort: Összkomfortos
Energetikai besorolás: B

Az OTP Bank lakáshitel ajánlataFizetett hirdetés

+36 30 650
Vörös Brigitta
referens

Érdekel az OTP Bank kedvezményes lakáshitel ajánlata? *

* A kérdésre „Igen” válasz bejelölése esetén, az „Üzenet küldése” gombra kattintva kijelentem, hogy az OTP Bank Nyrt. Adatkezelési tájékoztatójának tartalmát megismertem és tudomásul vettem.

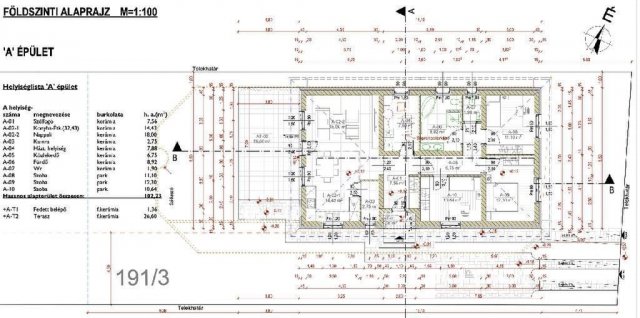
Eladó családi ház leírása

Eladó Jánossomorján egy modern, energiatakarékos, új építésű családi ház!
A 102 m2-es, egyszintes otthon kiváló elrendezésű: tágas nappali-étkező-konyha egy légtérben, három külön nyíló hálószoba, kamra, háztartási helyiség és külön WC szolgálja a kényelmet. A nappaliból egy 26,6 m2-es teraszra léphetünk, amely tökéletes helyszín a pihenéshez.
A fűtést hőszivattyú biztosítja padlófűtéssel, klíma és napelem előkészítéssel, így a ház alacsony fenntartású és megfelel a közel nulla energiaigény követelményeinek. A kivitelezés során minőségi anyagok kerülnek beépítésre: Porotherm falazat, 15 cm grafitos hőszigetelés, 3 rétegű antracit nyílászárók és Terrán Zenit Carbon tetőcserép.
A 1094 m2-es telek több mint fele zöldfelület, parkolás telken belül megoldott. Csendes, rendezett környék, teljes közmű, kiváló elhelyezkedés. Ideális választás családoknak, akik modern, energiatakarékos otthont keresnek.
Az ár szerkezetkész állapotra vonatkozik!

Amennyiben felkeltettem érdeklődését, hívjon bátran!

Referenciaszám: M325495

Hirdetés feltöltve: 2026. 04. 17. Utoljára módosítva: 2026. 05. 27.

Az ingatlan elhelyezkedése

Cím: Jánossomorja

Eladó családi házak a környékről

Sopron
Eladó családi ház

Sopron

189.9 M Ft
8 szoba
280 m²
Harka
Eladó családi ház

Harka

60.9 M Ft
3 + 1 szoba
67 m²
Gönyű
Eladó családi ház

Gönyű

111.951 M Ft
5 szoba
105 m²
Harka
Eladó családi ház

Harka

99 M Ft
4 szoba
103 m²
Hegyeshalom
Eladó családi ház

Hegyeshalom

190 M Ft
2 szoba
120 m²
Jánossomorja
Eladó családi ház

Jánossomorja

84.99 M Ft
4 szoba
95 m²
Harka
Eladó családi ház

Harka

95.9 M Ft
4 szoba
90 m²
Rábacsanak
Eladó családi ház

Rábacsanak

30 M Ft
2 szoba
107 m²
Nagycenk
Eladó családi ház

Nagycenk

89.9 M Ft
4 szoba
90 m²
Jánossomorja
Eladó családi ház

Jánossomorja

76.9 M Ft
3 szoba
86 m²
Jánossomorja
Eladó családi ház

Jánossomorja

67 M Ft
4 + 1 szoba
145 m²
Jánossomorja
Eladó családi ház

Jánossomorja

46.5 M Ft
3 szoba
77 m²
Zsira
Eladó családi ház

Zsira

110.9 M Ft
8 szoba
200 m²
Ásványráró
Eladó családi ház

Ásványráró

399 M Ft
8 szoba
200 m²
Harka
Eladó családi ház

Harka

86.7 M Ft
3 szoba
102 m²
Nagycenk
Eladó családi ház

Nagycenk

80.6 M Ft
4 szoba
106 m²
Jánossomorja
Eladó családi ház

Jánossomorja

50 M Ft
3 szoba
100 m²
Jánossomorja
Eladó családi ház

Jánossomorja

735.629 M Ft
6 szoba
399 m²
Jánossomorja
Eladó családi ház

Jánossomorja

82.5 M Ft
4 szoba
102 m²
Fertőszéplak
Eladó családi ház

Fertőszéplak

102 M Ft
4 szoba
98 m²
Lébény
Eladó családi ház

Lébény

62.99 M Ft
4 szoba
90 m²
Jánossomorja
Eladó családi ház

Jánossomorja

82.5 M Ft
4 szoba
102 m²
Jánossomorja
Eladó családi ház

Jánossomorja

169.99 M Ft
4 szoba
180 m²
Dunakiliti
Eladó családi ház

Dunakiliti

116.785 M Ft
3 + 1 szoba
140 m²

Falusi CSOK ingatlanok

Andornaktálya
Eladó családi ház

Andornaktálya

84.9 M Ft
4 szoba
88 m²
Szentmártonkáta
Eladó családi ház

Szentmártonkáta

53 M Ft
2 szoba
120 m²
Balatonederics
Eladó családi ház

Balatonederics

119 M Ft
3 szoba
140 m²
Nagyharsány
Eladó téglalakás

Nagyharsány

22.5 M Ft
3 szoba
71 m²
Törtel
Eladó családi ház

Törtel

31 M Ft
3 szoba
66 m²
Rétság
Eladó téglalakás

Rétság

34.9 M Ft
2 szoba
55 m²
Vasboldogasszony
Eladó családi ház

Vasboldogasszony

85 M Ft
6 szoba
180 m²
Hegyeshalom, Margaréta utca 12
Eladó téglalakás

Hegyeshalom

50.09 M Ft
2 szoba
43 m²