Avico Greentop

Eladó családi ház
Jánossomorja

+ 1 kép 1/4
82 500 000 Ft82.5 M Ft 808 824 Ft/m2
4 szoba
102 m²
építés éve:2027

Részletes adatok

Telekméret: 607 m2
Fűtés: Egyéb
Parkolás: Kocsibeálló
Energetikai besorolás: B

Az OTP Bank lakáshitel ajánlataFizetett hirdetés

+36 70 250
Péter Richárd
OTPip - Győr Bajcsy-Zsilinszky út 27 - OTP Ingatlanpont Iroda

Érdekel az OTP Bank kedvezményes lakáshitel ajánlata? *

* A kérdésre „Igen” válasz bejelölése esetén, az „Üzenet küldése” gombra kattintva kijelentem, hogy az OTP Bank Nyrt. Adatkezelési tájékoztatójának tartalmát megismertem és tudomásul vettem.

Eladó családi ház leírása

Eladó Jánossomorján egy modern, energiatakarékos, új építésű családi ház!
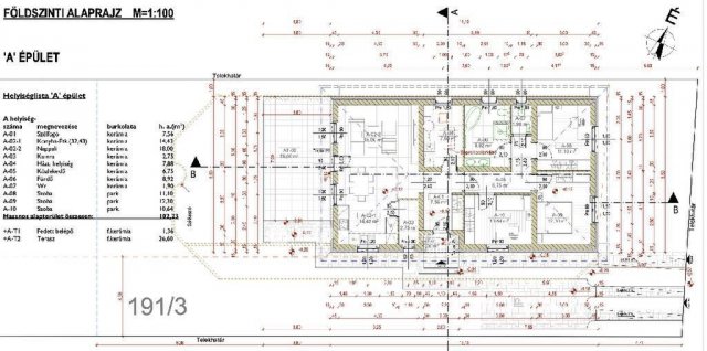
A 102 m2-es, egyszintes otthon kiváló elrendezésű: tágas nappali-étkező-konyha egy légtérben, három külön nyíló hálószoba, kamra, háztartási helyiség és külön WC szolgálja a kényelmet. A nappaliból egy 26,6 m2-es teraszra léphetünk, amely tökéletes helyszín a pihenéshez.
A fűtést hőszivattyú biztosítja padlófűtéssel, klíma és napelem előkészítéssel, így a ház alacsony fenntartású és megfelel a közel nulla energiaigény követelményeinek. A kivitelezés során minőségi anyagok kerülnek beépítésre: Porotherm falazat, 15 cm grafitos hőszigetelés, 3 rétegű antracit nyílászárók és Terrán Zenit Carbon tetőcserép.
A 1094 m2-es telek több mint fele zöldfelület, parkolás telken belül megoldott. Csendes, rendezett környék, teljes közmű, kiváló elhelyezkedés. Ideális választás családoknak, akik modern, energiatakarékos otthont keresnek.
Az ár szerkezetkész állapotra vonatkozik!

Amennyiben felkeltettem érdeklődését, hívjon bátran!

Referenciaszám: M325495

Hirdetés feltöltve: 2026. 04. 01. Utoljára módosítva: 2026. 04. 01.

Az ingatlan elhelyezkedése

Cím: Jánossomorja

Eladó családi házak a környékről

Jánossomorja
Eladó családi ház

Jánossomorja

82 M Ft
7 szoba
160 m²
Kapuvár
Eladó családi ház

Kapuvár

115 M Ft
5 szoba
222 m²
Győrság
Eladó családi ház

Győrság

93.45 M Ft
4 szoba
96 m²
Nagycenk
Eladó családi ház

Nagycenk

80.6 M Ft
4 szoba
106 m²
Győr
Eladó családi ház

Győr

325 M Ft
6 szoba
365 m²
Jánossomorja
Eladó családi ház

Jánossomorja

84.99 M Ft
4 szoba
95 m²
Kapuvár
Eladó családi ház

Kapuvár

22.99 M Ft
1 + 1 szoba
65 m²
Jánossomorja
Eladó családi ház

Jánossomorja

113.9 M Ft
7 szoba
240 m²
Jánossomorja
Eladó családi ház

Jánossomorja

230 M Ft
5 + 1 szoba
345 m²
Kóny
Eladó családi ház

Kóny

147 M Ft
3 + 1 szoba
155 m²
Jánossomorja
Eladó családi ház

Jánossomorja

64.9 M Ft
7 szoba
198 m²
Rábacsanak
Eladó családi ház

Rábacsanak

30 M Ft
2 szoba
107 m²
Jánossomorja
Eladó családi ház

Jánossomorja

71.5 M Ft
4 szoba
82 m²
Fertőszéplak
Eladó családi ház

Fertőszéplak

99 M Ft
4 szoba
98 m²
Jánossomorja
Eladó családi ház

Jánossomorja

47.9 M Ft
3 szoba
75 m²
Nagycenk
Eladó családi ház

Nagycenk

64.8 M Ft
3 + 1 szoba
76 m²
Harka
Eladó családi ház

Harka

60.9 M Ft
3 + 1 szoba
67 m²
Sopron
Eladó családi ház

Sopron

189.9 M Ft
8 szoba
280 m²
Sopron
Eladó családi ház

Sopron

130 M Ft
3 szoba
140 m²
Gönyű
Eladó családi ház

Gönyű

111.951 M Ft
5 szoba
105 m²
Zsira
Eladó családi ház

Zsira

110.9 M Ft
8 szoba
200 m²
Sopron
Eladó családi ház

Sopron

170 M Ft
4 szoba
122 m²
Jánossomorja
Eladó családi ház

Jánossomorja

52.9 M Ft
4 szoba
100 m²
Harka
Eladó családi ház

Harka

99 M Ft
4 szoba
103 m²

Falusi CSOK ingatlanok

Ságvár
Eladó családi ház

Ságvár

53.9 M Ft
3 szoba
75 m²
Újlengyel
Eladó ikerház

Újlengyel

78 M Ft
4 szoba
88 m²
Tóalmás
Eladó családi ház

Tóalmás

31.5 M Ft
2 szoba
43 m²
Csemő
Eladó családi ház

Csemő

61.9 M Ft
3 szoba
88 m²
Tápiógyörgye
Eladó családi ház

Tápiógyörgye

24.99 M Ft
6 + 1 szoba
153 m²
Kenderes
Eladó családi ház

Kenderes

130 M Ft
6 + 2 szoba
420 m²
Cece
Eladó családi ház

Cece

69.8 M Ft
4 szoba
215 m²
Újszilvás
Eladó családi ház

Újszilvás

49.9 M Ft
8 szoba
310 m²