Astora Art House

Eladó családi ház
Jánoshalma

+ 13 kép 1/16
8 213 205 Ft8.213 M Ft 120 782 Ft/m2
3 szoba
68 m²
építés éve:1975

Részletes adatok

Állapot: Átlagos
Telekméret: 2651 m2
Fűtés: Egyéb
Közmű: Víz, Villany, Csatorna
Energetikai besorolás: G

Az OTP Bank lakáshitel ajánlataFizetett hirdetés

Hitelösszeg 10 millió Ft
Futamidő 20 év
Induló törlesztőrészlet 67 508 Ft
Törlesztőrészlet a 13. hónaptól 86 071 Ft
THM 8,6 %

A tájékoztatás nem teljes körű és nem minősül ajánlattételnek. Az OTP Évnyerő Lakáshitelei 1 éves türelmi idős kölcsönök, amellyel az első 12 hónapban alacsonyabb a havi törlesztőrészlet. A tőke törlesztését a 13. hónaptól kell megkezdeni.

    Részletes kalkuláció
    +36 30 509
    Juhász Ingatlan
    Juhász Ingatlan

    Érdekel az OTP Bank kedvezményes lakáshitel ajánlata? *

    * A kérdésre „Igen” válasz bejelölése esetén, az „Üzenet küldése” gombra kattintva kijelentem, hogy az OTP Bank Nyrt. Adatkezelési tájékoztatójának tartalmát megismertem és tudomásul vettem.

    Eladó családi ház leírása

    ÁRCSÖKKENÉS MÁR CSAK 8M!!
    Bács-Kiskun vármegye Jánoshalma településen felújított 68 m²-es családi ház eladó.
    Ingatlan részletei:
    Típus:Családi ház
    Telek mérete: 2651m²
    Elhelyezkedés: Bács-Kiskun vármegye Jánoshalma
    Alapterület: 68m²
    Szobák száma: 3
    Konyha: 1
    Fürdőszobák száma: 1
    Falazat: vegyes tégla és vályog
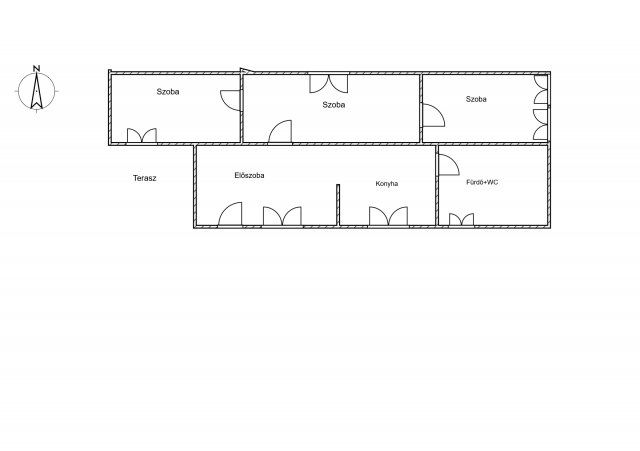
    Ingatlan leírása:
    Az ingatlan Jánoshalma városszélén található. Az ingatlan részben felújított . A házban három szoba konyha, fürdőszoba+WC ,közlekedő került kialakításra. Padlóburkolatok laminált padló és járólap.Az ingatlanban víz és villany található meg gáz.Az ingatlan hátsó terasszal lett ellátva mely 16 m2.
    Ajtó és az ablakok műanyagra lettek cserélve.
    Épület:
    Szoba: 19,8m²
    Szoba: 12,7 m²
    Szoba. 16m²
    Szoba: 12,9m²
    Konyha: 7,2 m²
    Fürdő+WC:4,9 m²
    Közlekedő:8m²
    Összesen:68m²
    A telken csak az ingatlan található.A terület be van kerítve.
    Fűtés és meleg víz:
    Az ingatlan fűtését kályha biztosítja. Meleg vizet villanybojler szolgáltatja !Az ingatlanon a tető meg lett igazítva.Új külső színt kapott. Az udvar jelenleg is rendezés alatt áll.Parkolás az udvarban történik.
    Irányár: 8.000.000 Ft
    Ez egy kiváló lehetőség egyedülállók vagy fiatal párok számára. Ha érdekli az ingatlan, kérjük, lépjen kapcsolatba velünk az alábbi elérhetőségeken:
    Elérhetőség:
    +36 30 509 0434
    juhaszk.ingatlan@gmail.com
    WhatsApp: [https://wa.me/36305090434](https://wa.me/36305090434)
    Keress bátran, ha érdekel vagy szeretnéd megnézni!

    Hirdetés feltöltve: 2026. 03. 14. Utoljára módosítva: 2026. 04. 26.

    3 szobás családi házak ára Jánoshalmán

    Ebből az összehasonlításból megtudhatod, hogyan viszonyul a lakás ára a környékbeli családi házak átlagos árához. Ez nem azt jelenti, hogy ennyivel olcsóbb vagy drágább, mint amennyit a lakás ér, hanem hogy ennyivel tér el a környékbeli átlagtól.

    Ennek a m² ára
    Jánoshalma m² ár
    121 e Ft
    102 e Ft -18%
    Ennek az ára
    Jánoshalma átlagár
    8.213 M Ft m Ft
    11.6 m Ft 29%

    Az ingatlan elhelyezkedése

    Cím: Jánoshalma

    Eladó családi házak a környékről

    Kecskemét
    Eladó családi ház

    Kecskemét

    259 M Ft
    3 + 7 szoba
    266 m²
    Kecskemét
    Eladó családi ház

    Kecskemét

    224.9 M Ft
    5 szoba
    330 m²
    Jánoshalma
    Eladó családi ház

    Jánoshalma

    14.9 M Ft
    2 + 1 szoba
    92 m²
    Kecskemét, Alsószéktó, Alsószéktó 138
    Eladó családi ház

    Kecskemét

    65 M Ft
    5 szoba
    98 m²
    Jánoshalma
    Eladó családi ház

    Jánoshalma

    15.9 M Ft
    2 szoba
    58 m²
    Kecskemét
    Eladó családi ház

    Kecskemét

    39.9 M Ft
    2 szoba
    110 m²
    Fülöpháza
    Eladó családi ház

    Fülöpháza

    68 M Ft
    6 szoba
    250 m²
    Kiskunhalas
    Eladó családi ház

    Kiskunhalas

    47 M Ft
    1.24 ha
    183 m²
    Kecskemét, Alsószéktó, Alsószéktó 138
    Eladó családi ház

    Kecskemét

    63 M Ft
    5 szoba
    91 m²
    Jánoshalma
    Eladó családi ház

    Jánoshalma

    13.5 M Ft
    3 szoba
    86 m²
    Jánoshalma
    Eladó családi ház

    Jánoshalma

    2.5 M Ft
    2 szoba
    95 m²
    Kecskemét, Alsószéktó, Alsószéktó 138
    Eladó családi ház

    Kecskemét

    55 M Ft
    5 szoba
    91 m²
    Jánoshalma
    Eladó családi ház

    Jánoshalma

    17.9 M Ft
    2 szoba
    83 m²
    Jánoshalma
    Eladó családi ház

    Jánoshalma

    9.99 M Ft
    2 + 1 szoba
    85 m²
    Kecskemét
    Eladó családi ház

    Kecskemét

    93 M Ft
    3 szoba
    140 m²
    Dunavecse
    Eladó családi ház

    Dunavecse

    88.49 M Ft
    8 szoba
    378 m²
    Kiskunmajsa, 1
    Eladó családi ház

    Kiskunmajsa

    60.9 M Ft
    6 szoba
    220 m²
    Kunadacs
    Eladó családi ház

    Kunadacs

    210 M Ft
    14 szoba
    920 m²
    Jánoshalma, Kiss Ernő utca
    Eladó családi ház

    Jánoshalma

    34.5 M Ft
    3 szoba
    106 m²
    Jánoshalma, Zenta utca 14
    Eladó családi ház

    Jánoshalma

    4.9 M Ft
    1 + 1 szoba
    51 m²
    Kiskunmajsa
    Eladó családi ház

    Kiskunmajsa

    40 M Ft
    5 szoba
    95 m²
    Jánoshalma
    Eladó családi ház

    Jánoshalma

    15.9 M Ft
    2 szoba
    58 m²
    Fajsz
    Eladó családi ház

    Fajsz

    12 M Ft
    4 szoba
    129 m²
    Jánoshalma
    Eladó családi ház

    Jánoshalma

    5.3 M Ft
    2 szoba
    75 m²

    Falusi CSOK ingatlanok

    Nagyberki
    Eladó családi ház

    Nagyberki

    39.9 M Ft
    5 szoba
    170 m²
    Balatonkenese
    Eladó családi ház

    Balatonkenese

    170 M Ft
    4 szoba
    140 m²
    Gádoros
    Eladó családi ház

    Gádoros

    25.5 M Ft
    4 szoba
    140 m²
    Szigetbecse
    Eladó családi ház

    Szigetbecse

    59 M Ft
    3 szoba
    70 m²
    Öreglak
    Eladó családi ház

    Öreglak

    110 M Ft
    8 szoba
    205 m²
    Tornyiszentmiklós
    Eladó családi ház

    Tornyiszentmiklós

    29.9 M Ft
    3 szoba
    110 m²
    Jászkarajenő
    Eladó családi ház

    Jászkarajenő

    17.5 M Ft
    2 + 1 szoba
    47 m²
    Pécsvárad
    Eladó családi ház

    Pécsvárad

    140 M Ft
    4 + 1 szoba
    119 m²