River Life

Eladó családi ház
Iregszemcse

Figyelem!

Ez az ingatlan a 2019.07.01-től induló falusi CSOK által támogatott településen található

+ 11 kép 1/14
13 400 000 Ft13.4 M Ft 181 081 Ft/m2
3 szoba
74 m2
építés éve:1940

Részletes adatok

Állapot: Felújítandó
Telekméret: 869 m2
Fűtés: Egyéb
Energetikai besorolás: Nem adta meg a hirdető

Az OTP Bank lakáshitel ajánlataFizetett hirdetés

+36 70 377
Kránicz Éva
OTP Ingatlanpont Siófok

Érdekel az OTP Bank kedvezményes lakáshitel ajánlata? *

* A kérdésre „Igen” válasz bejelölése esetén, az „Üzenet küldése” gombra kattintva kijelentem, hogy az OTP Bank Nyrt. Adatkezelési tájékoztatójának tartalmát megismertem és tudomásul vettem.

Eladó családi ház leírása

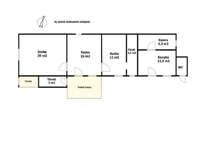
Iregszemcse csendes, nyugodt utcájában kínálok megvételre egy 74 m2-es, vegyes falazatú (tömés és tégla) családi házat, 869 m2-es telken.
Az ingatlan felújítást igényel, de stabil szerkezetű, rendezett tulajdoni viszonyokkal rendelkezik, tehermentes, és azonnal birtokba vehető.
A házban 3 jelenleg szobaként használt helyiség és fürdőszoba található, valamint kb.10 évvel ezelőtt egy külön bejáratú, téglafalazatú konyha és kamra épületrész került kialakításra, valamint egy kis tárolóhelyiség is a ház részét képezi.
A fűtés kályhával történik, a nyílászárók fából készültek, a bejárati ajtó viszonylag új.
A kis tornác és a fedett terasz kellemes vidéki hangulatot áraszt, ideális helyet biztosít a pihenésre.
A tágas, 869 m2-es udvaron több gyümölcsfa, valamint állattartásra alkalmas melléképületek is megtalálhatók, így a telek kertészkedésre vagy gazdálkodásra is kiválóan alkalmas.
Az ingatlan megfelel az Otthon Start program feltételeinek.

Hirdetés feltöltve: 2025. 10. 28. Utoljára módosítva: 2025. 12. 07.

Az ingatlan elhelyezkedése

Cím: Iregszemcse

Eladó családi házak a környékről

Eladó családi ház
Eladó családi ház

Bikács, Kossuth Lajos utca

129.776 M Ft
6 szoba
450 m2
Eladó családi ház
Eladó családi ház

Iregszemcse

38.9 M Ft
3 + 1 szoba
110 m2
Eladó családi ház
Eladó családi ház

Paks

220 M Ft
5 szoba
264 m2
Eladó családi ház
Eladó családi ház

Iregszemcse

19.9 M Ft
3 szoba
89 m2
Eladó családi ház
Eladó családi ház

Bátaszék, Deák Ferenc utca

40 M Ft
8 szoba
271 m2
Eladó családi ház
Eladó családi ház

Iregszemcse

19.9 M Ft
2 szoba
65 m2
Eladó családi ház
Eladó családi ház

Iregszemcse

37 M Ft
6 szoba
200 m2
Eladó családi ház
Eladó családi ház

Iregszemcse

19.99 M Ft
2 szoba
68 m2
Eladó családi ház
Eladó családi ház

Iregszemcse

26.5 M Ft
2 szoba
86 m2
Eladó családi ház
Eladó családi ház

Iregszemcse

13.4 M Ft
3 szoba
74 m2
Eladó családi ház
Eladó családi ház

Iregszemcse

19.99 M Ft
2 szoba
68 m2
Eladó családi ház
Eladó családi ház

Iregszemcse

37 M Ft
6 szoba
200 m2
Eladó családi ház
Eladó családi ház

Paks

65 M Ft
4 szoba
159 m2
Eladó családi ház
Eladó családi ház

Iregszemcse

24.8 M Ft
3 szoba
76 m2
Eladó családi ház
Eladó családi ház

Iregszemcse

19.99 M Ft
2 szoba
68 m2
Eladó családi ház
Eladó családi ház

Dunaszentgyörgy

13.7 M Ft
3 szoba
65 m2
Eladó családi ház
Eladó családi ház

Paks

20 M Ft
3 szoba
88 m2
Eladó családi ház
Eladó családi ház

Paks, Hidegvölgy utca

26.9 M Ft
3 szoba
89 m2
Eladó családi ház
Eladó családi ház

Dunaföldvár

53 M Ft
2 + 1 szoba
118 m2
Eladó családi ház
Eladó családi ház

Iregszemcse

19.9 M Ft
3 szoba
89 m2
Eladó családi ház
Eladó családi ház

Iregszemcse

24.9 M Ft
4 szoba
120 m2
Eladó családi ház
Eladó családi ház

Iregszemcse

28.9 M Ft
3 szoba
85 m2
Eladó családi ház
Eladó családi ház

Iregszemcse

28 M Ft
0 + 3 szoba
60 m2
Eladó családi ház
Eladó családi ház

Paks, Ezredvég utca

399 M Ft
5 + 1 szoba
400 m2

Falusi CSOK ingatlanok

Eladó családi ház
Eladó családi ház

Somogyaszaló

59.9 M Ft
3 szoba
180 m2
Eladó családi ház
Eladó családi ház

Balatonkeresztúr

119 M Ft
6 szoba
180 m2
Eladó családi ház
Eladó családi ház

Szulok

37.9 M Ft
3 szoba
175 m2
Eladó családi ház
Eladó családi ház

Palkonya

137 M Ft
6 szoba
160 m2
Eladó családi ház
Eladó családi ház

Kenyeri

21.8 M Ft
2 szoba
75 m2
Eladó családi ház
Eladó családi ház

Darnózseli

79.9 M Ft
4 szoba
104 m2
Eladó családi ház
Eladó családi ház

Szentkirályszabadja

135.9 M Ft
4 szoba
150 m2
Eladó családi ház
Eladó családi ház

Hegyeshalom

85 M Ft
4 + 1 szoba
123 m2

Falusi CSOK ingatlanok

Eladó családi ház
Eladó családi ház

Palkonya

137 M Ft
6 szoba
160 m2
Eladó téglalakás
Eladó téglalakás

Nagyharsány

22.5 M Ft
3 szoba
71 m2
Eladó családi ház
Eladó családi ház

Tápióbicske

38 M Ft
3 szoba
50 m2
Eladó családi ház
Eladó családi ház

Úrkút

94.9 M Ft
4 szoba
186 m2
Eladó családi ház
Eladó családi ház

Magyarszék

48.5 M Ft
3 + 1 szoba
86 m2
Eladó családi ház
Eladó családi ház

Somogyaszaló

59.9 M Ft
3 szoba
180 m2
Eladó családi ház
Eladó családi ház

Kenyeri

39.9 M Ft
3 szoba
94 m2
Eladó családi ház
Eladó családi ház

Hegyeshalom

85 M Ft
4 + 1 szoba
123 m2