Kedves Felhasználónk! Rendszerfrissítés miatt az oldalunk 2026. február 9-én 12 órától várhatóan 20 óráig nem lesz elérhető. Köszönjük megértésed!
Metrodom

Eladó családi ház
Hatvan

+ 18 kép 1/20
69 900 000 Ft69.9 M Ft 582 500 Ft/m2
3 + 1 szoba
120 m2
építés éve:2006

Részletes adatok

Állapot: Átlagos
Telekméret: 1265 m2
Fűtés: Gázkazán
Energetikai besorolás: Nem adta meg a hirdető

Az OTP Bank lakáshitel ajánlataFizetett hirdetés

+36 20 426
Gulyás Gáborné
referens

Érdekel az OTP Bank kedvezményes lakáshitel ajánlata? *

* A kérdésre „Igen” válasz bejelölése esetén, az „Üzenet küldése” gombra kattintva kijelentem, hogy az OTP Bank Nyrt. Adatkezelési tájékoztatójának tartalmát megismertem és tudomásul vettem.

Eladó családi ház leírása

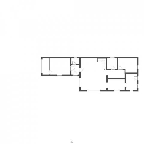
Tágas, jó állapotú családi ház eladó, Heves megye, Hatvan csendes utcájában, nagy telekkel, remek elosztással, kiváló közlekedéssel Budapest felé! Hatvan egyik nyugodt, családi házas övezetében kínálunk megvételre egy két szintes, 120 m2-es, 2006-ban épült, jó állapotban lévő családi házat, amely B30-as Porotherm téglából készült, így kiváló hőszigetelési tulajdonságokkal rendelkezik. Az ingatlan kiváló elosztású, praktikus kialakításának köszönhetően nagyobb család számára is kényelmes életteret biztosít. A földszinten egy világos nappali, étkezővel egybenyitott konyha, kamra, fürdőszoba, hálószoba és egy terasz kapott helyet, míg az emeleten két különálló hálószoba, melyből az egyik igény szerint kétfelé is osztható és egy második fürdőszoba található. A ház részeként eredetileg kialakított garázs jelenleg szobaként funkcionál, de egyszerűen visszaalakítható garázzsá, így akár vállalkozásnak, akár többgenerációs együttélésnek is ideális lehet. A telek mérete 1265 m2, ami bőven elegendő kertészkedéshez, pihenéshez vagy akár további fejlesztésekhez. A fűtésről gázcirkó rendszer gondoskodik, az ingatlan 3 fázissal (ipari áram), műanyag nyílászárókkal és redőnyökkel felszerelt, tehát a korszerű műszaki feltételek is adottak. Hatvan Budapesttől mindössze 60 km-re helyezkedik el, így az M3-as autópályán autóval kb. 40 perc alatt elérhető a főváros, de vasúti közlekedése is kiváló, a Budapest-Miskolc vonalon rendszeres, gyorsjáratú vonatok közlekednek, így ideális választás lehet azoknak is, akik naponta ingáznak a fővárosba. Hatvan dinamikusan fejlődő város, kiváló infrastruktúrával, iskolákkal, bevásárlási lehetőségekkel és munkahelyekkel, így nem csupán nyugodt otthont, hanem hosszú távon is biztos hátteret kínál családok számára. Jöjjön, tekintse meg! Ingatlanirodánk ügyvédi háttérrel, CSOK, babaváró hitel, "Otthon Start Hitelprogram", valamint kamatkedvezményes hitel ügyintézésével támogatja ügyfelei ingatlanvásárlását. Ingyenes banki segítség! Hívjon bizalommal! INGATLANSÉTA : http://webseta.hu/r2544331

Hirdetés feltöltve: 2025. 10. 15. Utoljára módosítva: 2026. 02. 05.

4 szobás családi házak ára Hatvanban

Ebből az összehasonlításból megtudhatod, hogyan viszonyul a lakás ára a környékbeli családi házak átlagos árához. Ez nem azt jelenti, hogy ennyivel olcsóbb vagy drágább, mint amennyit a lakás ér, hanem hogy ennyivel tér el a környékbeli átlagtól.

Ennek a m² ára
Hatvan m² ár
583 e Ft
587 e Ft 1%
Ennek az ára
Hatvan átlagár
69.9 M Ft m Ft
76 m Ft 8%

Sétálja körbe az ingatlant 3D-ben

Az ingatlan elhelyezkedése

Cím: Hatvan

Eladó családi házak a környékről

Eladó családi ház
Eladó családi ház

Hatvan

14 M Ft
2 szoba
55 m2
Eladó családi ház
Eladó családi ház

Ostoros

94.5 M Ft
3 szoba
96 m2
Eladó családi ház
Eladó családi ház

Ostoros

94.5 M Ft
3 szoba
96 m2
Eladó családi ház
Eladó családi ház

Szarvaskő

230 M Ft
5 szoba
424 m2
Eladó családi ház
Eladó családi ház

Bükkszék

44.9 M Ft
3 + 2 szoba
114 m2
Eladó családi ház
Eladó családi ház

Parád

33.9 M Ft
3 szoba
118 m2
Eladó családi ház
Eladó családi ház

Szilvásvárad

92 M Ft
4 + 1 szoba
220 m2
Eladó családi ház
Eladó családi ház

Hatvan

97.95 M Ft
5 + 2 szoba
253 m2
Eladó családi ház
Eladó családi ház

Karácsond

29.5 M Ft
3 szoba
112 m2
Eladó családi ház
Eladó családi ház

Bükkszék

44.9 M Ft
3 + 2 szoba
114 m2
Eladó családi ház
Eladó családi ház

Recsk

21 M Ft
4 szoba
220 m2
Eladó családi ház
Eladó családi ház

Hatvan

36.9 M Ft
2 + 1 szoba
69 m2
Eladó családi ház
Eladó családi ház

Hatvan

63.9 M Ft
3 + 1 szoba
107 m2
Eladó családi ház
Eladó családi ház

Hatvan

11.2 M Ft
1 szoba
40 m2
Eladó családi ház
Eladó családi ház

Hatvan, Rákóczi út

95 M Ft
4 szoba
100 m2
Eladó családi ház
Eladó családi ház

Bükkszék

78.9 M Ft
2 + 1 szoba
160 m2
Eladó családi ház
Eladó családi ház

Hatvan

14 M Ft
2 szoba
55 m2
Eladó családi ház
Eladó családi ház

Hatvan

83 M Ft
4 szoba
125 m2
Eladó családi ház
Eladó családi ház

Hatvan

45 M Ft
3 + 1 szoba
134 m2
Eladó családi ház
Eladó családi ház

Mátraderecske

74 M Ft
4 szoba
200 m2
Eladó családi ház
Eladó családi ház

Hatvan

75 M Ft
3 szoba
100 m2
Eladó családi ház
Eladó családi ház

Ostoros

94.5 M Ft
3 szoba
96 m2
Eladó családi ház
Eladó családi ház

Hatvan

83 M Ft
4 szoba
125 m2
Eladó családi ház
Eladó családi ház

Ostoros

94.5 M Ft
3 szoba
96 m2

Falusi CSOK ingatlanok

Eladó családi ház
Eladó családi ház

Beremend, 7827 Beremend, Petőfi Sándor utca 10

11.95 M Ft
1 + 1 szoba
124 m2
Eladó családi ház
Eladó családi ház

Szigliget

299 M Ft
3 szoba
95 m2
Eladó családi ház
Eladó családi ház

Seregélyes

73.9 M Ft
4 szoba
110 m2
Eladó téglalakás
Eladó téglalakás

Balatonszemes

123.3 M Ft
2 szoba
70 m2
Eladó családi ház
Eladó családi ház

Csátalja, Dózsa György utca

36 M Ft
3 szoba
110 m2
Eladó családi ház
Eladó családi ház

Újlengyel

59.9 M Ft
3 szoba
73 m2
Eladó családi ház
Eladó családi ház

Ádánd

69.9 M Ft
6 szoba
251 m2
Eladó téglalakás
Eladó téglalakás

Felsőszentiván, Jókai Mór u 9 fszt 2

17.56 M Ft
1 + 1 szoba
90 m2