BAM Living

Eladó családi ház
Győr

+ 5 kép 1/8
69 900 000 Ft69.9 M Ft 785 393 Ft/m2
3 szoba
89 m2
építés éve:1968

Részletes adatok

Állapot: Felújítandó
Telekméret: 597 m2
Fűtés: Gázkazán
Energetikai besorolás: Nem adta meg a hirdető

Az OTP Bank lakáshitel ajánlataFizetett hirdetés

+36 70 250
Péter Richárd
OTPip - Győr Bajcsy-Zsilinszky út 27 - OTP Ingatlanpont Iroda

Érdekel az OTP Bank kedvezményes lakáshitel ajánlata? *

* A kérdésre „Igen” válasz bejelölése esetén, az „Üzenet küldése” gombra kattintva kijelentem, hogy az OTP Bank Nyrt. Adatkezelési tájékoztatójának tartalmát megismertem és tudomásul vettem.

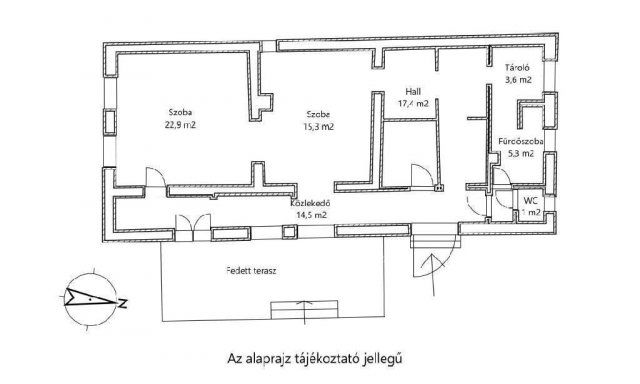
Eladó családi ház leírása

Fedezd fel Győr egyik legjobb lehetőségét!

Eladó egy téglaépítésű, saját ízlés szerint alakítható családi ház a nyugalmas Liget utcában, mindössze néhány percre a központtól! 89 nm-es otthon, terasszal és zárt, közel 600 nm-es udvarral ideális befektetés, családoknak vagy vállalkozóknak egyaránt. Hozd ki a maximumot ebből a remek helyből, változtasd álmaid otthonává vagy legyen ez a következő jövedelemező projekted!

Ne hagyd elúszni ezt a remek lehetőséget!

Referenciaszám: M317258

69900000 Ft

Hirdetés feltöltve: 2025. 11. 16. Utoljára módosítva: 2026. 01. 15.

3 szobás családi házak ára Győrött

Ebből az összehasonlításból megtudhatod, hogyan viszonyul a lakás ára a környékbeli családi házak átlagos árához. Ez nem azt jelenti, hogy ennyivel olcsóbb vagy drágább, mint amennyit a lakás ér, hanem hogy ennyivel tér el a környékbeli átlagtól.

Ennek a m² ára
Győr m² ár
785 e Ft
818 e Ft 4%
Ennek az ára
Győr átlagár
69.9 M Ft m Ft
87.3 m Ft 20%

Az ingatlan elhelyezkedése

Cím: Győr

Eladó családi házak a környékről

Eladó családi ház
Eladó családi ház

Lébény

62.99 M Ft
4 szoba
90 m2
Eladó családi ház
Eladó családi ház

Győrújbarát

154.5 M Ft
4 szoba
230 m2
Eladó családi ház
Eladó családi ház

Enese

64.664 M Ft
3 szoba
75 m2
Eladó családi ház
Eladó családi ház

Győrújbarát

135.9 M Ft
4 szoba
148 m2
Eladó családi ház
Eladó családi ház

Győr

95 M Ft
2 + 1 szoba
400 m2
Eladó családi ház
Eladó családi ház

Győr, Gyárváros, Pesti út

159.9 M Ft
8 szoba
256 m2
Eladó családi ház
Eladó családi ház

Győr

183.5 M Ft
4 szoba
230 m2
Eladó családi ház
Eladó családi ház

Győrszemere

90.588 M Ft
5 szoba
95 m2
Eladó családi ház
Eladó családi ház

Jánossomorja

613.661 M Ft
12 szoba
405 m2
Eladó családi ház
Eladó családi ház

Harka

60.9 M Ft
3 + 1 szoba
67 m2
Eladó családi ház
Eladó családi ház

Kapuvár

115 M Ft
5 szoba
222 m2
Eladó családi ház
Eladó családi ház

Győr, Likócs, Török utca

149.8 M Ft
5 szoba
207 m2
Eladó családi ház
Eladó családi ház

Gönyű

111.951 M Ft
4 szoba
105 m2
Eladó családi ház
Eladó családi ház

Győr

220 M Ft
5 szoba
279 m2
Eladó családi ház
Eladó családi ház

Győr

160 M Ft
14 szoba
280 m2
Eladó családi ház
Eladó családi ház

Győr

279 M Ft
5 szoba
155 m2
Eladó családi ház
Eladó családi ház

Győr, Szabadhegy, Jáki utca

204.527 M Ft
6 szoba
285 m2
Eladó családi ház
Eladó családi ház

Harka

99 M Ft
4 szoba
103 m2
Eladó családi ház
Eladó családi ház

Győr, Nagyhegy utca

63 M Ft
4 szoba
73 m2
Eladó családi ház
Eladó családi ház

Győr

279 M Ft
5 szoba
155 m2
Eladó családi ház
Eladó családi ház

Győr

771.8 M Ft
5649 m²
510 m2
Eladó családi ház
Eladó családi ház

Nagycenk

102.5 M Ft
4 szoba
98 m2
Eladó családi ház
Eladó családi ház

Zsira

110.9 M Ft
8 szoba
200 m2
Eladó családi ház
Eladó családi ház

Sopron

130 M Ft
3 szoba
140 m2

Falusi CSOK ingatlanok

Eladó családi ház
Eladó családi ház

Dombrád

8 M Ft
2 szoba
85 m2
Eladó családi ház
Eladó családi ház

Somogygeszti

38.6 M Ft
3 + 1 szoba
98 m2
Eladó családi ház
Eladó családi ház

Szabadbattyán

67.5 M Ft
5 szoba
180 m2
Eladó családi ház
Eladó családi ház

Nagyiván, Rákóczi Ferenc út 17

4.99 M Ft
2 szoba
50 m2
Eladó családi ház
Eladó családi ház

Érsekcsanád

68.8 M Ft
3 szoba
120 m2
Eladó családi ház
Eladó családi ház

Kölked

42 M Ft
3 szoba
100 m2
Eladó családi ház
Eladó családi ház

Őriszentpéter

29.8 M Ft
1 szoba
44 m2
Eladó családi ház
Eladó családi ház

Somogyhárságy

111.65 M Ft
4 szoba
330 m2